Rare listed renovation opportunity in a picturesque North Devon village near schools and parks.
Grade II listed mid-16th century thatched cottage
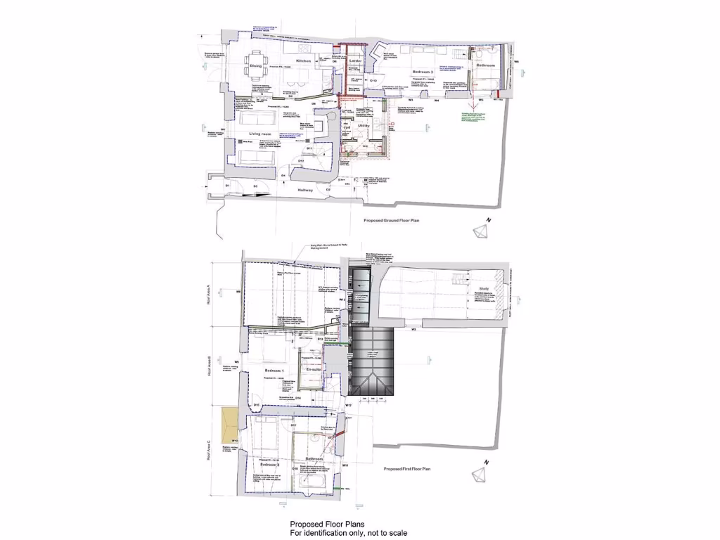
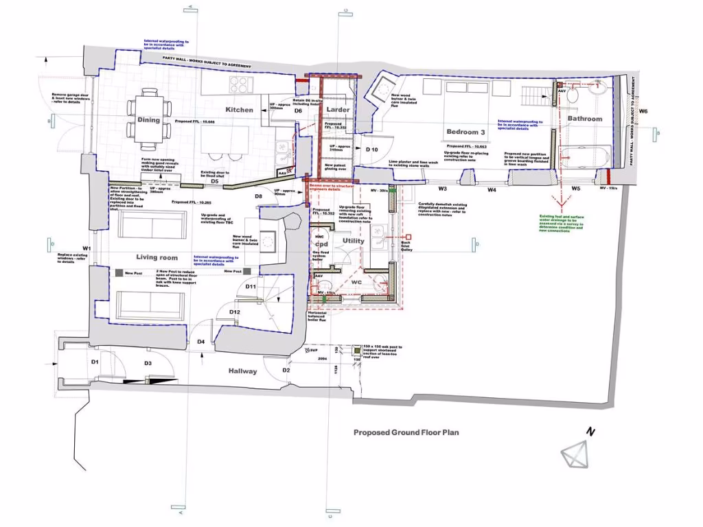
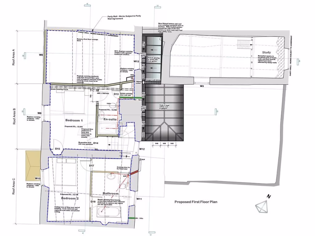
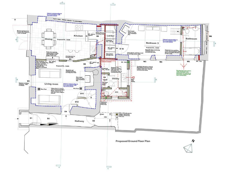
Planning permission and listed consent in place (Refs 73180, 73181)
Consent for garage/shippon conversion to ancillary accommodation
Enclosed walled rear garden; small private outdoor space
Requires complete renovation and specialist thatch maintenance
Stone walls likely uninsulated — thermal upgrades needed
On-street/unrestricted parking to the village Square
EPC Band G; main heating via room heaters and wood logs
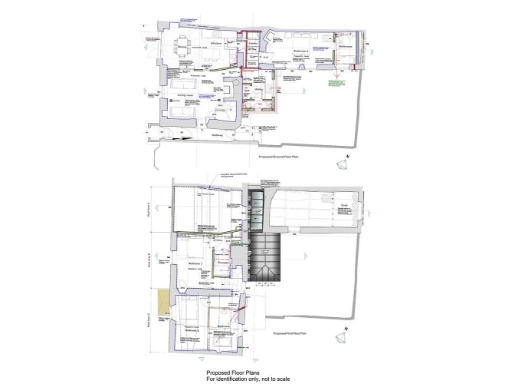
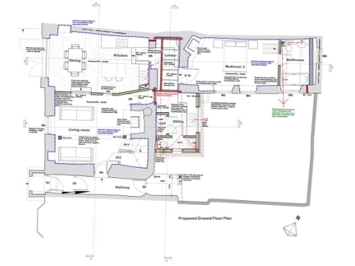
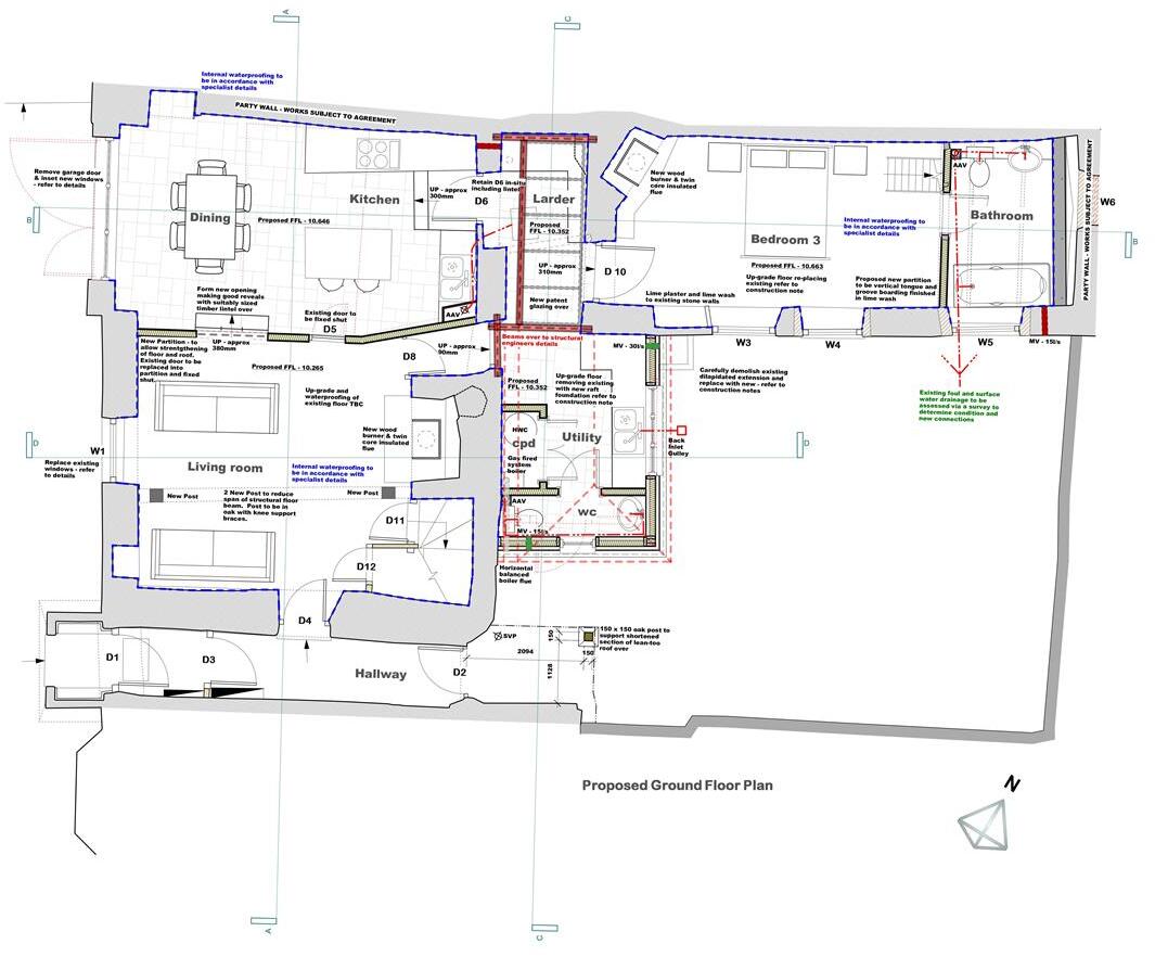
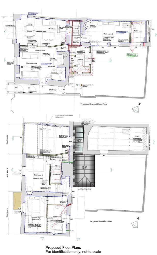
Ardlui is a Grade II listed mid-16th century thatched cottage set on the eastern side of Chittlehampton’s historic Square. The house retains strong period character — smoke-blackened thatch, a winder staircase and a rear gallery — and benefits from planning permission and listed building consent for extensive remodelling and an annexe conversion.
The consented scheme delivers an open-plan kitchen/dining area, living room with inglenook fireplace, a ground-floor double bedroom with mezzanine study, and three ensuite bedrooms overall, plus conversion of the garage/shippon to ancillary accommodation. The property sits on a small plot with an enclosed walled rear garden and unrestricted village-square parking to the front.
This is a substantial renovation project rather than a move-in home. The cottage requires complete completion of the approved works, specialist thatch maintenance and likely thermal upgrading (stone walls currently without insulation assumed). Listed status brings both protection and added regulatory complexity when carrying out works. Services are currently connected and the location offers village amenities, good local schools and easy access to nearby towns and national parks.
3 bedroom terraced house for sale in Chittlehampton, EX37 — £175,000 • 3 bed • 2 bath • 2013 ft²
3 bedroom semi-detached house for sale in Kewsland, Bishops Tawton, Barnstaple, EX32 — £250,000 • 3 bed • 1 bath • 860 ft²
3 bedroom semi-detached house for sale in Kewsland, Bishops Tawton, Barnstaple, EX32 — £350,000 • 3 bed • 1 bath • 1552 ft²
3 bedroom semi-detached house for sale in Hillside, Chittlehampton, EX37 — £345,000 • 3 bed • 2 bath • 1555 ft²
3 bedroom terraced house for sale in Goodleigh, Barnstaple, EX32 — £500,000 • 3 bed • 2 bath • 1282 ft²
3 bedroom detached house for sale in Tawstock, Barnstaple, EX31 — £550,000 • 3 bed • 2 bath • 2266 ft²


















































































