Extended 3-bed semi with large garden, garage and driveway in sought-after Thorpe St Andrew.
Extended three-bedroom semi-detached house with conservatory
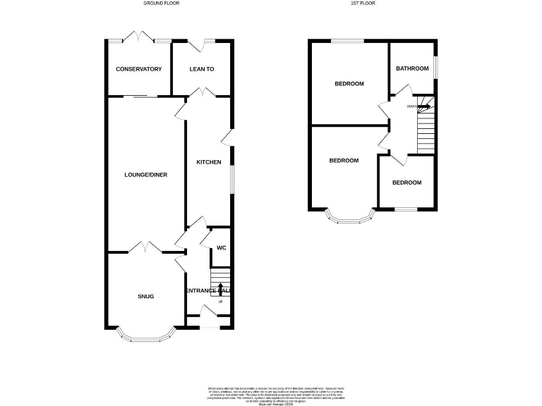
Set on a large plot in sought-after Thorpe St Andrew, this extended three-bedroom semi-detached house combines period-style features with practical family living. The property offers a bay-front snug, a generous lounge/diner that opens to a conservatory, an extended kitchen with lean-to utility space and a ground-floor WC. Outside there is a paved front garden, driveway leading to a single garage with workshop, and an extensive rear lawn with patio — ideal for children and alfresco entertaining.
The home benefits from double glazing, mains gas central heating and fast full-fibre broadband, all helpful for modern family life and working from home. The accommodation is well presented overall, so it will suit buyers seeking a comfortable, ready-to-live-in house with scope to personalise over time. Council Tax Band C and Freehold tenure add to the practical appeal.
Notable points to consider: the living room fireplace and some fittings reflect older styling and would benefit from updating for buyers wanting a fully modern interior. There are standard-height ceilings and an average overall room size, so those wanting high-ceilinged or very large rooms should view to check suitability. The property sits in a low-crime, very affluent area with excellent mobile signal and good local schools, making it especially attractive to families and professionals.
 3 bedroom semi-detached house for sale in Belmore Road, Norwich, Norfolk, NR7 — £350,000 • 3 bed • 1 bath • 915 ft²
 3 bedroom semi-detached house for sale in Belmore Road, Norwich, Norfolk, NR7 — £350,000 • 3 bed • 1 bath • 915 ft² 3 bedroom semi-detached house for sale in Plumstead Road East, Norwich, Norfolk, NR7 — £375,000 • 3 bed • 1 bath • 1292 ft²
 3 bedroom semi-detached house for sale in Plumstead Road East, Norwich, Norfolk, NR7 — £375,000 • 3 bed • 1 bath • 1292 ft² 3 bedroom semi-detached house for sale in Gargle Hill, Thorpe St Andrew, NR7 — £280,000 • 3 bed • 2 bath • 1174 ft²
 3 bedroom semi-detached house for sale in Gargle Hill, Thorpe St Andrew, NR7 — £280,000 • 3 bed • 2 bath • 1174 ft² 3 bedroom semi-detached house for sale in Dalbier Close, Dussindale, Norwich, Norfolk, NR7 — £270,000 • 3 bed • 2 bath • 662 ft²
 3 bedroom semi-detached house for sale in Dalbier Close, Dussindale, Norwich, Norfolk, NR7 — £270,000 • 3 bed • 2 bath • 662 ft² 3 bedroom detached house for sale in South Avenue, Thorpe St Andrew, NR7 — £475,000 • 3 bed • 3 bath • 986 ft²
 3 bedroom detached house for sale in South Avenue, Thorpe St Andrew, NR7 — £475,000 • 3 bed • 3 bath • 986 ft² 3 bedroom semi-detached house for sale in Furze Road, Thorpe St Andrew, NR7 — £300,000 • 3 bed • 1 bath • 779 ft²
 3 bedroom semi-detached house for sale in Furze Road, Thorpe St Andrew, NR7 — £300,000 • 3 bed • 1 bath • 779 ft²














































































