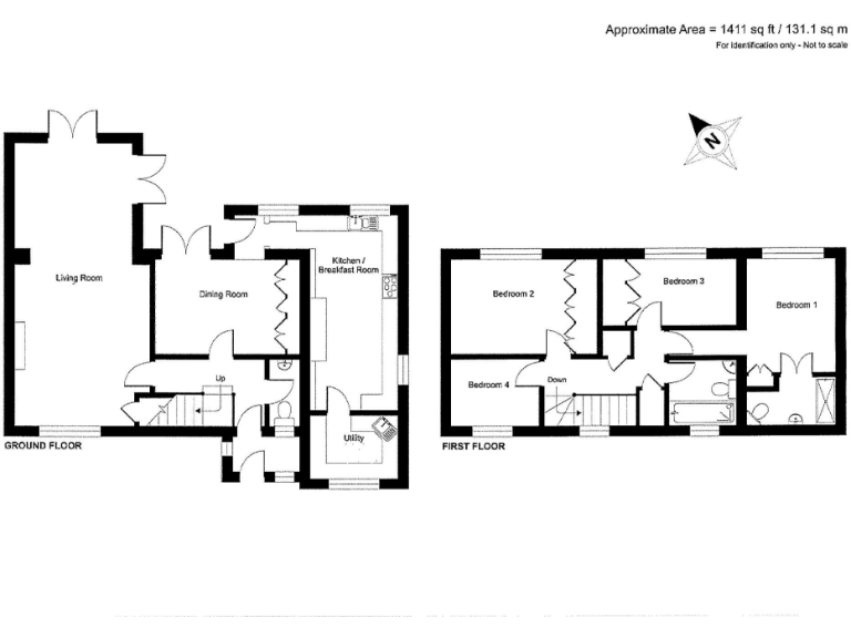
Spacious extended family home with large living room, garden and off-street parking..
26'7" triple-aspect extended living room with French doors to garden
Extended 18' kitchen plus utility room with solar panel inverter
Master bedroom with ensuite shower; three further bedrooms
Block-paved driveway for two cars; decent rear garden with patio
Double glazing installed post-2002; mains gas boiler and radiators
EPC C; property constructed 1983–1990 — may need modernising
Council Tax Band F — higher ongoing running costs
Well presented but potential for personalisation and updates
Set in a sought-after private close in Lindford, this extended four-bedroom detached house offers generous living space and practical family-focused features. A 26'7" triple-aspect living room and separate dining room give flexible reception space, while the 18' extended kitchen and adjoining utility room support everyday family life. The property benefits from solar panel inverter, water softener and recent double glazing.
The master bedroom includes an ensuite shower room and there are three further bedrooms served by a family bathroom. Outside, a decent plot provides a block-paved patio, lawn and artificial turf area, plus off-street parking for two cars. The layout and room sizes suit growing families who need adaptable living zones and outdoor space.
Practical considerations: the house dates from the 1980s (1983–1990 construction), has an EPC rating of C and falls in Council Tax Band F, which should be factored into running costs. The home is described as well presented, but buyers looking for fully modernised finishes may want to update some fixtures and personalise to taste.
Local amenities include nearby primary and secondary schools (mixed Ofsted outcomes), bus services, playgrounds and leisure facilities. Broadband and mobile signals are strong, and the area is affluent and residential, appealing to buyers seeking a quiet suburban setting within reach of town facilities.
4 bedroom house for sale in Azalea Avenue, Lindford, GU35 — £615,000 • 4 bed • 2 bath • 1321 ft²
4 bedroom detached house for sale in Mallow Close, Lindford, Hampshire, GU35 — £525,000 • 4 bed • 1 bath • 1392 ft²
4 bedroom detached house for sale in Grayshott Laurels, Lindford, Hampshire, GU35 — £665,000 • 4 bed • 2 bath • 2078 ft²
5 bedroom detached house for sale in Grayshott Laurels, Lindford, GU35 — £695,000 • 5 bed • 1 bath • 2176 ft²
4 bedroom detached house for sale in Grayshott Laurels, Lindford, Hampshire, GU35 — £620,000 • 4 bed • 2 bath • 1394 ft²
5 bedroom detached house for sale in Rowan Road, Lindford, Hampshire, GU35 — £560,000 • 5 bed • 3 bath • 1813 ft²


















































































