**Standout Features:**
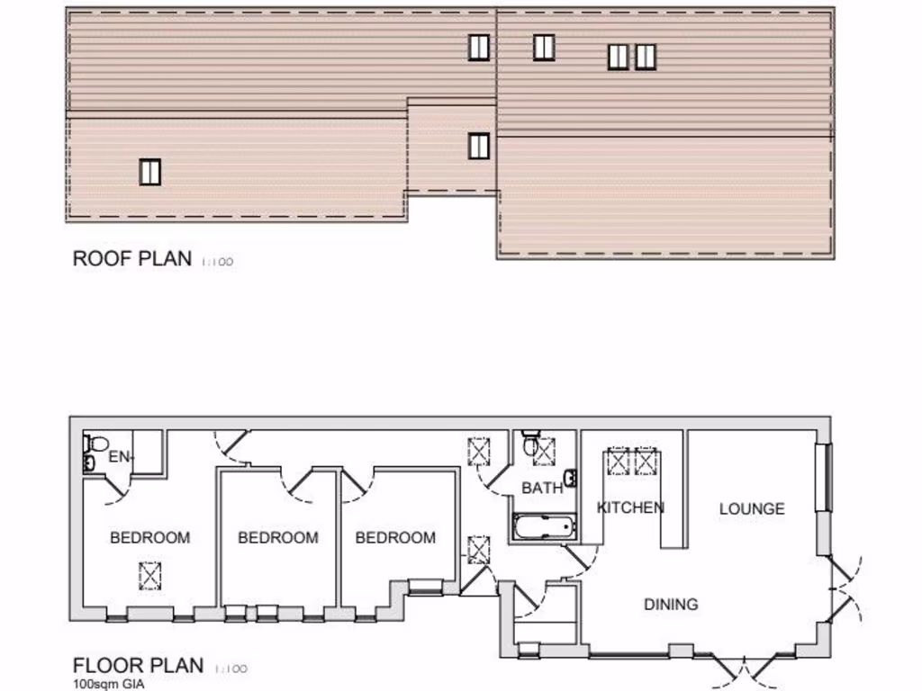
- Planning permission granted for a 100sqm, three-bedroom bungalow.
- Existing triple garage on site, approximately 58sqm.
- Situated in the picturesque New Forest National Park.
- Secluded plot with shared driveway access.
- Freehold ownership, ensuring long-term investment stability.
**Summary:**
Discover a rare opportunity to create your dream home in the heart of the New Forest village of Brockenhurst. This sizeable building plot offers approved planning for a modern, detached single-storey dwelling, providing the perfect canvas to design a cozy retreat surrounded by nature. Enjoy the tranquility of a rural setting, with a spacious garden and existing triple garage, enhancing the property’s appeal for future residents or investors.
While the area is beautiful and affluent, keep in mind that mobile signal may be nonexistent, which could impact daily communication. However, fast broadband is available, ensuring connectivity for your lifestyle needs. Take advantage of nearby amenities and excellent local schools, making this an ideal spot for families seeking a peaceful life in a vibrant community. Don't miss this extraordinary chance—properties like this, with granted planning permission, are rare and won’t last long on the market. Envision your future here!
Plot for sale in Busketts Way, Ashurst, Southampton, SO40 — £600,000 • 4 bed • 3 bath • 2544 ft²
3 bedroom detached house for sale in Aldridge Hill, Brockenhurst, SO42 — £895,000 • 3 bed • 2 bath • 1313 ft²
3 bedroom detached house for sale in Bramshaw, Lyndhurst, SO43 — £795,000 • 3 bed • 2 bath • 1012 ft²
Detached house for sale in Linford Road, Shobley, Ringwood, BH24 — £295,000 • 1 bed • 1 bath
3 bedroom house for sale in Careys Cottages, Brockenhurst, SO42 — £700,000 • 3 bed • 2 bath • 1174 ft²
Land for sale in Linford, Ringwood ***LAND***, BH24 — £200,000 • 1 bed • 1 bath


























































