**Standout Features:**
- Detach cottage requiring full refurbishment with planning permission for a modern replacement dwelling.
- Grassy 0.6-acre plot located at the edge of Brockenhurst, directly adjoining forest access.
- Planning permissions for a double garage/workshop and a detached studio/ancillary accommodation.
- Unique position allowing for picturesque views over the forest and adjacent paddocks.
- Chain-free sale offers immediate availability for buyers.
Discover the immense potential of this idyllic detached cottage, perfectly situated in a serene part of Brockenhurst, offering direct forest access and planning permission for an exceptional replacement home. Spanning 0.6 acres, this property presents a rare opportunity to create a modern retreat with expansive living spaces, featuring large glazing to showcase stunning natural views.
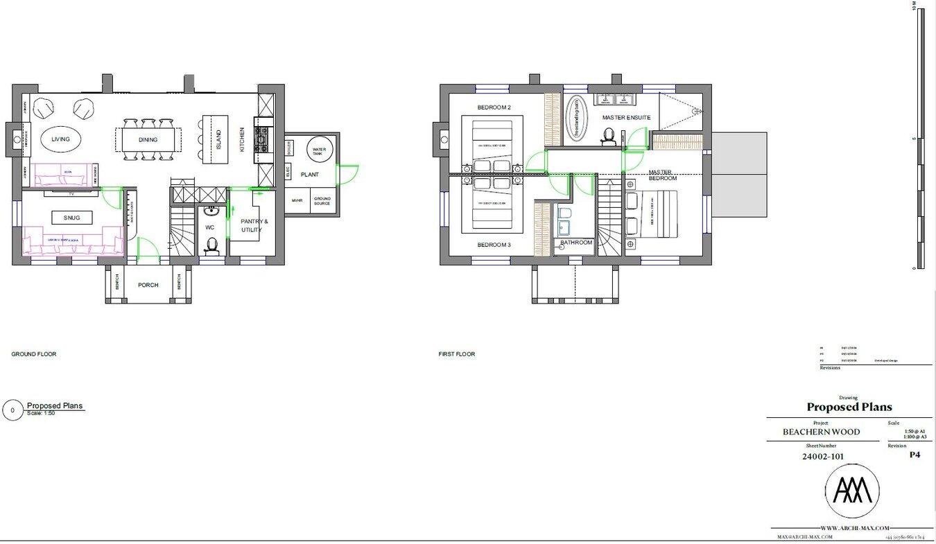
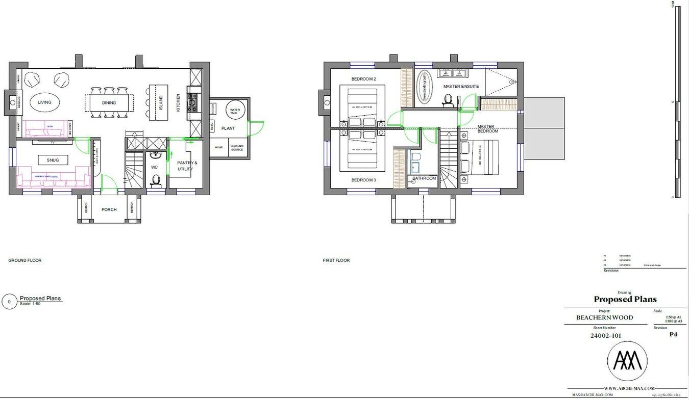
The current cottage, originally built in the 1920s, presents a flexible layout with three bedrooms, while the approved plans promise a spacious open plan design with elegant features, including a snug, three generously sized bedrooms, and an en-suite master suite. Additionally, the opportunity to add various outbuildings, including a double garage and a garden studio, enhances both functionality and potential for increased value.
While the property does require full refurbishment, the idyllic location, surrounded by the breathtaking landscapes of the New Forest National Park, offers unparalleled peace and privacy. This charming residence is perfect for buyers looking to escape the hustle and bustle of city life while still being within easy reach of local amenities and train links to London. Don't miss out on this exceptional development opportunity; envision your dream home in a tranquil setting today!
Plot for sale in Sway Road, Brockenhurst, Hampshire, SO42 — £300,000 • 1 bed • 1 bath • 1076 ft²
5 bedroom bungalow for sale in Furzey Lane, Beaulieu, Brockenhurst, SO42 — £999,950 • 5 bed • 4 bath • 3300 ft²
2 bedroom cottage for sale in Furze Hill, Fordingbridge, SP6 — £625,000 • 2 bed • 1 bath • 1300 ft²
4 bedroom detached house for sale in Broadlands Road, Brockenhurst, SO42 — £1,499,500 • 4 bed • 3 bath • 2769 ft²
3 bedroom detached house for sale in Bramshaw, Lyndhurst, SO43 — £795,000 • 3 bed • 2 bath • 1012 ft²
3 bedroom cottage for sale in Beaulieu Road, Brockenhurst, SO42 — £695,000 • 3 bed • 1 bath • 1230 ft²


























































































































