Spacious two-bedroom Shawlands flat — modern finish, parking, and excellent transport links..
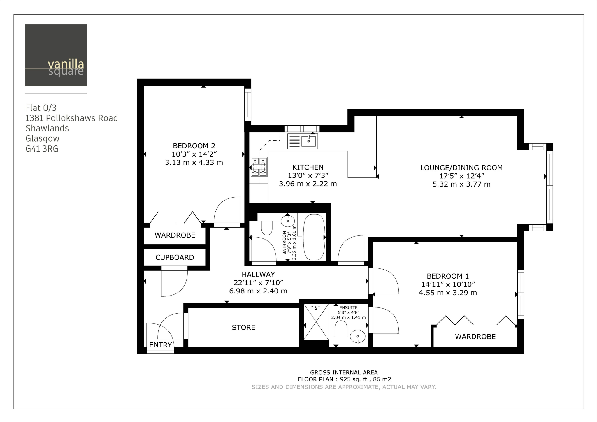
- Large ground-floor flat, approximately 925 sqft
- Two double bedrooms, principal with en-suite
- Spacious 17'5 lounge with box bay and natural light
- Contemporary open-plan kitchen with integrated appliances
- Private residents' off-street parking and landscaped gardens
- Gas central heating, double glazing, security entry, EER B
- Local area has pockets of deprivation; check resale factors
- Freehold tenure—confirm title and communal maintenance details
A spacious two-bedroom, two-bathroom ground-floor flat in a well-maintained modern development in the heart of Shawlands. At about 925 sqft this large apartment offers a bright 17'5 living room with a box bay, open-plan contemporary kitchen with integrated appliances (including a wine fridge) and a breakfast bar — all presented in walk-in condition. The principal bedroom has fitted wardrobes and an en-suite shower, while the second double also includes built-in storage. Practical benefits include gas central heating, double glazing, security-controlled entrance, private residents' parking and neatly landscaped communal gardens. Council tax is described as low and the property has an Energy Efficiency Rating of B. The location suits those who want vibrant local life: boutiques, cafes, gyms, and frequent train and bus links to Glasgow city centre are all within easy reach. Queen's Park and other green spaces are close by for outdoor recreation. Note: the wider area shows some deprivation indicators, which may influence local services and long-term resale in parts. Buyers should also confirm the flat's freehold title details and factor in any communal maintenance arrangements for the development.
2 bedroom flat for sale in Waverley Gardens, Glasgow, G41 — £210,000 • 2 bed • 2 bath • 625 ft²
2 bedroom flat for sale in 18 Durward Court, Flat 3/1, Shawlands, Glasgow, G41 3RZ, G41 — £179,000 • 2 bed • 1 bath • 732 ft²
2 bedroom flat for sale in 45 Riverford Road, Flat 1/1, Shawlands, Glasgow, G43 1RX, G43 — £159,000 • 2 bed • 2 bath • 775 ft²
2 bedroom flat for sale in 0/2, 10 Dinmont Road, Glasgow, Glasgow City, G41 — £190,000 • 2 bed • 2 bath • 915 ft²
2 bedroom apartment for sale in Dinmont Road, Shawlands, Glasgow, G41 — £205,000 • 2 bed • 2 bath • 877 ft²
2 bedroom flat for sale in St. Helens Gardens, Shawlands, G41 3DG, G41 — £245,000 • 2 bed • 2 bath • 1001 ft²






































































































