G41 3UD - 2 bedroom apartment for sale in Dinmont Road, Shawlands, Gl…

View on Property Piper

2 bedroom apartment for sale in Dinmont Road, Shawlands, Glasgow, G41

Summary - FLAT 3/2, 10, DINMONT ROAD G41 3UD

2 bed 2 bath Apartment

Move-in-ready two-bedroom apartment with parking near Queens Park and fast links.
Top-floor two-bedroom flat with open-plan living
A freshly renovated top-floor two-bedroom flat in the heart of Shawlands, ready to move into. The open-plan living space looks down Norham Street and benefits from contemporary finishes, integrated kitchen appliances, and quality floor coverings throughout.

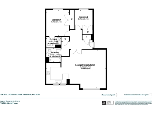
Bedroom one includes integrated wardrobes and a tiled en-suite with walk-in shower; the second double bedroom also has built-in storage and could serve as a home office. Practical highlights include gas central heating, double glazing, allocated off-street parking and fast broadband — features that suit busy professionals or first-time buyers wanting convenience and low short-term maintenance.

Set close to Queens Park and local shops, cafés and transport links, this property offers genuine lifestyle appeal in a lively neighbourhood. Note the building sits in an area recorded as relatively deprived and the council tax sits above average; these are important for budgeting and long-term resale context. Overall, the apartment presents a turnkey option with good commuting connections and modern fixtures throughout.

Property Details

Image Descriptions

Floorplan Description

Rooms

Textual Property Features

Target Audience

AI Tags

Detected Visual Features

Nearest Bars And Restaurants

,,,,}

Nearest General Shops

,,}

Nearest Grocery shops

,,}

Nearest Supermarkets

,,}

Nearest Religious buildings

,,}

Nearest Medical buildings

,,,}

Nearest Airports

,}

Nearest Leisure Facilities

,,,,}

Nearest Tourist attractions

,,}

Nearest Train stations

,,,,}

Nearest Bus stations and stops

,,,,}

Nearest Hotels

,,}

Tags

Local Market Stats

AirBnB Data

Similar Properties

Meta

High Res Images

Compatible Images

Low res Images

Thumbnails

Raw Images

High Res Floorplan Images

Compatible Floorplan Images

Low res Floorplan Images

FloorplanImages Thumbnail

Raw Floorplan Images