Single-storey, low-maintenance living with garage and sunny private garden.
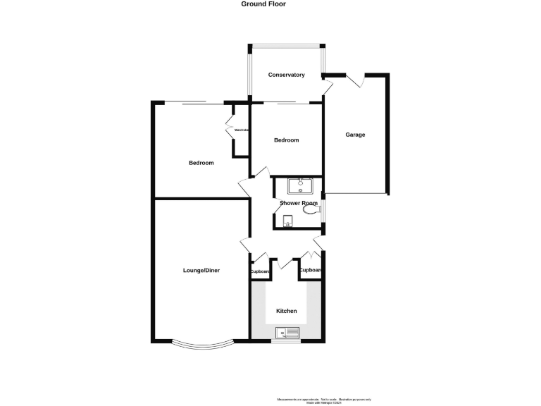
Detached two-bedroom bungalow with conservatory and garage
Corner position in a quiet cul-de-sac, private sunny rear garden
Large lounge with dining area; modern fitted kitchen
Solar panels, gas central heating, EPC A for energy efficiency
Driveway parking for multiple cars plus single garage
Single shower room only; one bathroom may limit larger households
Approximately 722 sq ft; period build (late 1960s–1970s) may need updates
Available with no upward chain; freehold tenure
Set on a corner plot in a quiet cul-de-sac, this detached single-storey home offers easy, low-maintenance living. The layout is generous for a two-bedroom property, with a large lounge/dining area and a conservatory that extends the living space into the garden. Solar panels, gas central heating and recent double glazing help keep running costs lower, supported by an EPC A rating.
The plot is a strength: a wide driveway, single garage and a private, landscaped rear garden with a sunny aspect provide outside space for parking and entertaining. Interior rooms are well proportioned for their size, with a modern fitted kitchen and useful entrance hall storage. Council Tax Band D and freehold tenure are practical pluses, and the property comes to market with no upward chain.
Practical considerations: this is a two-bedroom, one-shower-room bungalow of approximately 722 sq ft, built in the late 1960s/early 1970s, so buyers seeking more space or contemporary layouts may want to adapt rooms. The property is described as attractively presented, but any purchaser should expect some updating over time given the age of construction. Proximity to good local schools, shops and bus links suits downsizers or those seeking single-storey convenience.
2 bedroom detached bungalow for sale in Beaulieu Avenue, Kingswinford, Kingswinford, West Midlands, DY6 8QA, DY6 — £310,000 • 2 bed • 1 bath • 743 ft²
2 bedroom detached bungalow for sale in KINGSWINFORD, Broad Street, DY6 — £337,500 • 2 bed • 1 bath • 797 ft²
2 bedroom detached bungalow for sale in Moss Grove, Kingswinford, DY6 9ER, DY6 — £274,950 • 2 bed • 1 bath • 635 ft²
2 bedroom detached bungalow for sale in Conway, Bromley, Brierley Hill, DY5 4PH, DY5 — £260,000 • 2 bed • 1 bath • 927 ft²
2 bedroom semi-detached bungalow for sale in KINGSWINFORD, Greencroft, DY6 — £269,950 • 2 bed • 1 bath • 582 ft²
2 bedroom detached bungalow for sale in Lapwood Avenue, Kingswinford, DY6 8SG, DY6 — £310,000 • 2 bed • 1 bath • 603 ft²


























































