Move-in-ready home with garage, driveway and sunny landscaped garden.
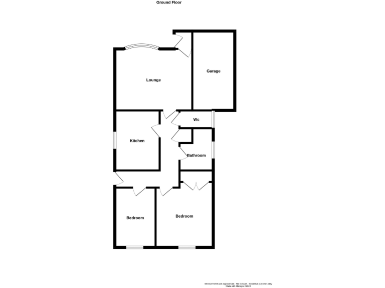
Detached two-bedroom bungalow with generous single-storey layout
This well-presented two-bedroom detached bungalow sits in a convenient Kingswinford location close to village shops, bus routes and local amenities. The layout feels larger than it appears, with a generous lounge and a luxury breakfast kitchen fitted with integrated appliances — an easy home to live in from day one.
Practical features include gas central heating, uPVC double glazing (installed post-2002), a large block-paved driveway, single garage and a level, landscaped rear garden that catches the afternoon sun. The single-storey plan and manageable plot will suit downsizers wanting straightforward, low-maintenance living with space for entertaining outdoors.
Buyers should note the property’s construction era and wall type (solid brick as originally built), which commonly benefit from added insulation. The EPC is band D and there is only one shower room plus a separate WC — acceptable for many but worth considering for households needing more bathroom provision.
Overall this freehold bungalow offers comfortable, move-in-ready accommodation with scope for efficiency upgrades and minor modernisation to personalise. Its location, parking and private garden make it a practical choice for those seeking single-level living in an established area with good local schools and services.
2 bedroom detached bungalow for sale in Lapwood Avenue, Kingswinford, DY6 8SG, DY6 — £310,000 • 2 bed • 1 bath • 603 ft²
2 bedroom detached bungalow for sale in Moss Grove, Kingswinford, DY6 9ER, DY6 — £274,950 • 2 bed • 1 bath • 635 ft²
2 bedroom bungalow for sale in Fairlawn Drive, Kingswinford, DY6 — £280,000 • 2 bed • 1 bath • 743 ft²
2 bedroom detached house for sale in KINGSWINFORD, Linhope Drive, DY6 — £338,000 • 2 bed • 2 bath • 864 ft²
2 bedroom detached bungalow for sale in KINGSWINFORD, Cot Lane, DY6 — £440,000 • 2 bed • 1 bath • 1057 ft²
2 bedroom detached bungalow for sale in KINGSWINFORD, Frayne Avenue, DY6 — £325,000 • 2 bed • 1 bath • 614 ft²






































































