Mature garden, driveway parking and scope to personalise in sought-after Kenilworth..
Sought-after Kenilworth location near top-rated schools
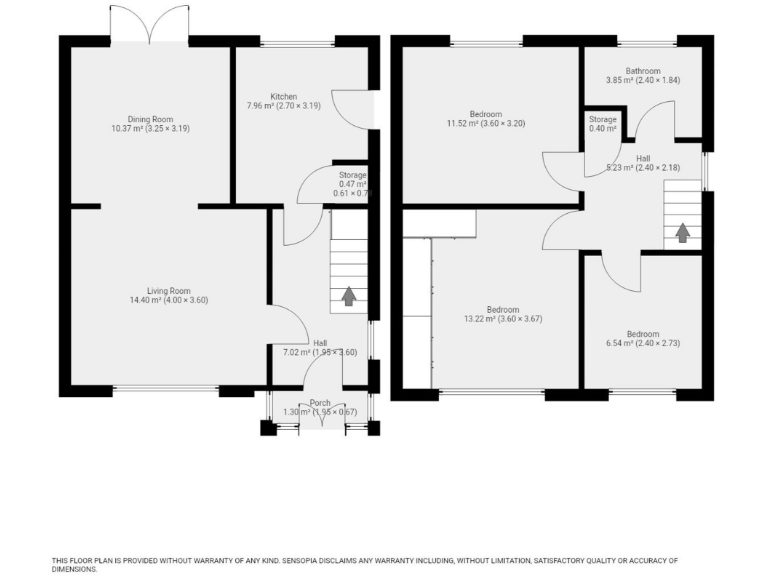
Three bedrooms; master bedroom has fitted wardrobes
Large mature rear garden with vegetable patches and shed
Driveway and garage provide off-street parking
Loft boarded with ladder and light for extra storage
EPC C (potential B); boiler 8 years old, serviced 09/09/2024
Single bathroom; some modernising likely required
Freehold, no upward chain; approx 83 sqm (893 sq ft)
Set on a popular Kenilworth residential close, this three-bedroom semi-detached home offers a rare combination of a generous mature garden, driveway parking and good local schools. The house dates from the 1950s and retains period proportions — a comfortable living room with bay window and a separate dining/archway area look across to the southwest-facing garden. The loft is boarded with a ladder and light, and there’s a garage and shed for additional storage.
The property is presented as a comfortable home with clear potential to personalise and upgrade. The fitted wardrobes in the master bedroom and double-glazed UPVC windows (10–15 years old) add convenience, while an eight-year-old boiler — serviced in September 2024 — provides recent heating reliability. The EPC is currently C with potential to reach B.
Practical details are straightforward: freehold tenure, no upward chain, single bathroom, off-street driveway parking and a decent plot of about 0.09 acres. The location suits families and professionals: Kenilworth’s top-performing secondary school is nearby and local primary schools are rated Good. Broadband is fast, crime is low and the property sits in an affluent area with very low flood risk.
This home will suit buyers seeking a well-located family house they can adapt and modernise rather than a fully renovated turnkey property. Expect to carry out cosmetic and possibly kitchen/bathroom upgrades to bring the interior up to contemporary standards.
3 bedroom semi-detached house for sale in Park Close, Kenilworth, CV8 — £345,000 • 3 bed • 1 bath • 872 ft²
4 bedroom semi-detached house for sale in Leagh Close, Kenilworth, CV8 — £590,000 • 4 bed • 2 bath • 1819 ft²
4 bedroom semi-detached house for sale in Moseley Road, Kenilworth, CV8 — £575,000 • 4 bed • 2 bath • 872 ft²
3 bedroom terraced house for sale in Hawkesworth Drive, Kenilworth, CV8 — £350,000 • 3 bed • 1 bath • 689 ft²
3 bedroom semi-detached house for sale in Field Close, Kenilworth, Warwickshire, CV8 — £350,000 • 3 bed • 1 bath • 1015 ft²
3 bedroom semi-detached house for sale in Towers Close, Kenilworth, CV8 — £525,000 • 3 bed • 1 bath • 945 ft²


























































































