Spacious two-bed apartment blending character and contemporary living near transport.
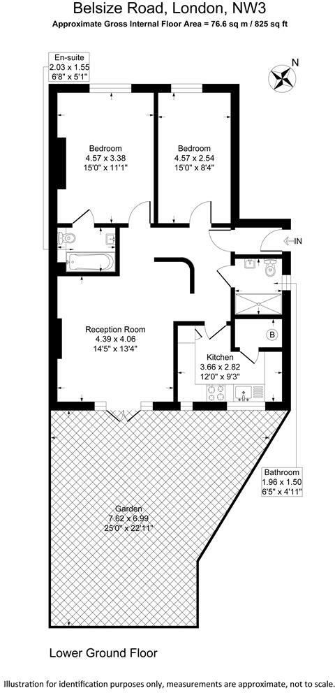
2 double bedrooms and 2 bathrooms, generous living space
Shared garden provides rare outdoor space in central NW6
Modern, minimalist interior with light wood floors and recessed lights
Built 1850 — period character with contemporary upgrades
Leasehold with 89 years remaining; buyer to verify lease terms
Service charge approx. £1,200 per year; council tax above average
Located lower-ground level — check natural light and outlook
Area records higher-than-average crime and local deprivation
Set within a handsome 1850 period building on Belsize Road, this two-double-bedroom flat combines original character with a contemporary interior. The apartment offers generous living space, two bathrooms and access to a shared garden — a rare city-side outdoor space for relaxation or casual entertaining.
The layout suits first-time buyers or professionals seeking generous rooms and a separate reception for home working. Interiors are finished in a modern, minimalist style with light wooden floors, recessed lighting and integrated shelving that maximise the apartment’s bright, practical feel. Fast broadband and excellent mobile signal support remote working and streaming.
Practical matters to note: the flat is leasehold with 89 years remaining, and the current service charge averages £1,200 per year. Council tax is above average and the immediate area records higher-than-average crime rates and relative deprivation, which may affect suitability for some buyers. The property appears to occupy a lower-ground level, so natural light and outlook should be checked in person.
Overall this is a well-sized, characterful two-bedroom home in a central NW6 location that offers immediate move-in comfort and long-term potential — but buyers should budget for leasehold costs and consider the neighbourhood profile before committing.
2 bedroom flat for sale in Birchington Road, West Hampstead, London, NW6 — £585,000 • 2 bed • 2 bath • 758 ft²
3 bedroom flat for sale in Buckland Crescent, Belsize Park, London, NW3 — £1,500,000 • 3 bed • 2 bath • 1168 ft²
3 bedroom flat for sale in Belsize Road, West Hampstead, NW6 — £1,150,000 • 3 bed • 3 bath • 1229 ft²
2 bedroom apartment for sale in Adamson Road, Belsize Park, London, NW3 — £750,000 • 2 bed • 2 bath • 770 ft²
2 bedroom flat for sale in Belsize Grove, Belsize Park, NW3 — £1,200,000 • 2 bed • 2 bath • 1244 ft²
2 bedroom apartment for sale in Burton Road, London, NW6 — £600,000 • 2 bed • 1 bath • 750 ft²


























































