Chain-free terraced house offering parking and renovation potential for buyers.
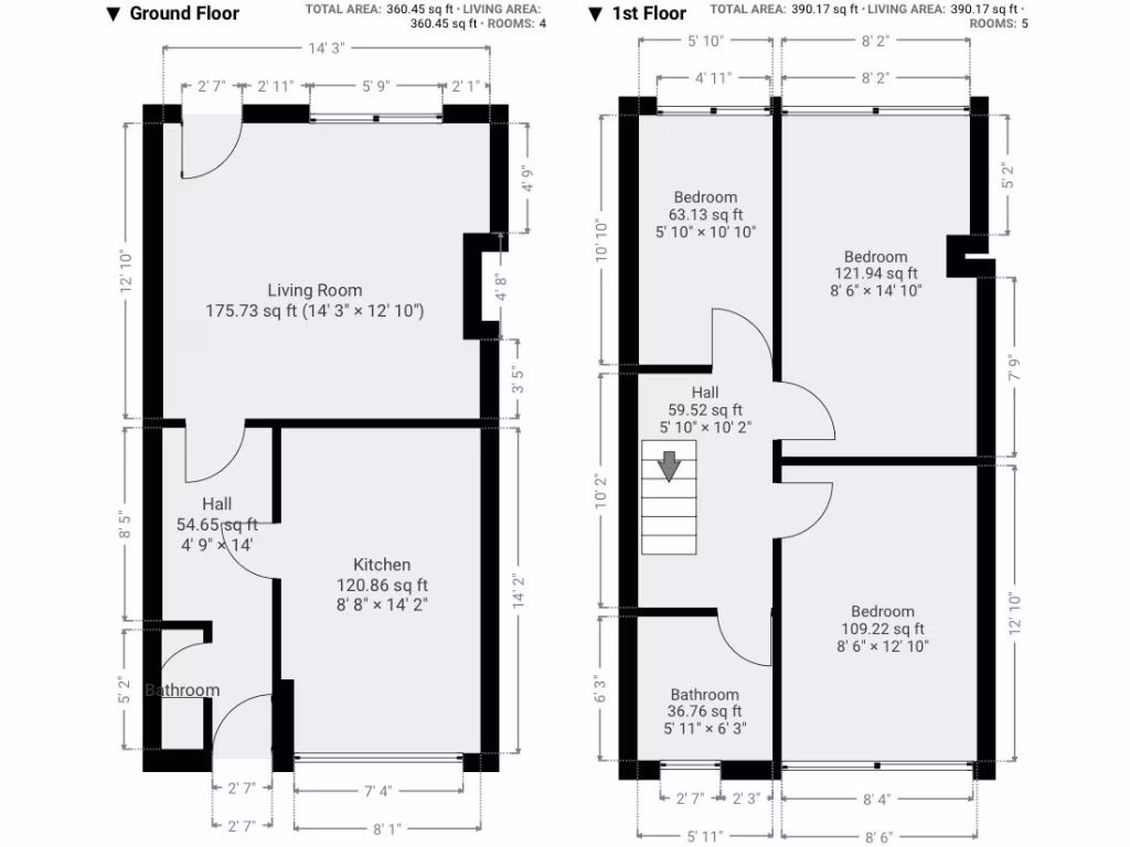
Three bedrooms and two bathrooms across two storeys
Quiet cul-de-sac three-bedroom mid-terraced home offered freehold and chain-free, suited to families or first-time buyers willing to renovate. The property provides practical living space across two storeys with a lounge, kitchen/diner, downstairs WC, three bedrooms and two bathrooms within approximately 750 sq ft.
Key value drivers include off-street parking for several vehicles on a large paved forecourt, double glazing, gas central heating, and an enclosed rear yard for outdoor use. The house is a straightforward layout with scope to modernise and improve energy efficiency and decor — a clear opportunity for added value for buyers prepared to refurbish.
Buyers should note this is a small property in a very deprived neighbourhood with above-average local crime statistics; the immediate area is described as challenged and young hard-pressed families predominate. The property requires renovation and cosmetic updating throughout, and some rooms show visible wear and dated finishes. Council Tax is low and there is no flood risk.
Overall, this is a realistic-priced starter family home or investment project: practical benefits like parking and mains services combine with clear renovation needs. Those seeking a turnkey move should expect to carry out work; those looking for scope to add value will find potential here.
 3 bedroom terraced house for sale in The Meadow, Woodchurch, Wirral, CH49 — £150,000 • 3 bed • 1 bath • 679 ft²
 3 bedroom terraced house for sale in The Meadow, Woodchurch, Wirral, CH49 — £150,000 • 3 bed • 1 bath • 679 ft² 3 bedroom terraced house for sale in Hampton Chase, Prenton, Wirral, CH43 — £170,000 • 3 bed • 2 bath • 732 ft²
 3 bedroom terraced house for sale in Hampton Chase, Prenton, Wirral, CH43 — £170,000 • 3 bed • 2 bath • 732 ft² 3 bedroom terraced house for sale in Beverley Road, New Ferry, Wirral, CH62 — £115,000 • 3 bed • 1 bath • 898 ft²
 3 bedroom terraced house for sale in Beverley Road, New Ferry, Wirral, CH62 — £115,000 • 3 bed • 1 bath • 898 ft² 3 bedroom terraced house for sale in Frobisher Road, Neston, Cheshire, CH64 — £165,000 • 3 bed • 1 bath • 932 ft²
 3 bedroom terraced house for sale in Frobisher Road, Neston, Cheshire, CH64 — £165,000 • 3 bed • 1 bath • 932 ft² 3 bedroom end of terrace house for sale in Whiteside Close, Upton, Wirral, CH49 — £210,000 • 3 bed • 1 bath • 1171 ft²
 3 bedroom end of terrace house for sale in Whiteside Close, Upton, Wirral, CH49 — £210,000 • 3 bed • 1 bath • 1171 ft² 3 bedroom terraced house for sale in Royden Road, Upton, Wirral, CH49 — £160,000 • 3 bed • 1 bath • 911 ft²
 3 bedroom terraced house for sale in Royden Road, Upton, Wirral, CH49 — £160,000 • 3 bed • 1 bath • 911 ft²






























































