Part-finished extension and double garage on a generous plot near town amenities.
0.2 acre plot with large rear garden
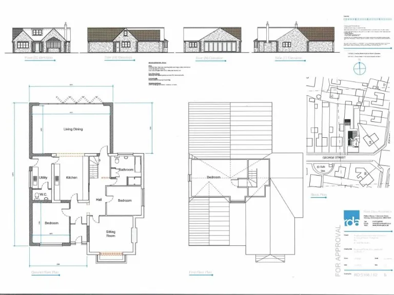
A rare detached bungalow on a generous 0.2 acre plot, offered with part-finished side and rear extensions and planning permission. The home is habitable but needs renovation throughout, giving a buyer scope to complete the 28' living space, additional bedroom and utility to their own specification. Practical highlights include extensive parking, a double garage and a traditional bay-front living room with a wood-burning stove.
Notable defects are plain and important: the property requires general refurbishment, has visible damp patches in the living room, uneven flooring and dated kitchen finishes from the 1980s. The extension is unfinished and will be sold as is — completion and any remedial works are the buyer’s responsibility. EPC rating D; building sold via online auction with terms and a starting bid of £250,000.
For buyers seeking renovation potential or a downsizing project, the plot size and layout offer clear upside: substantial outdoor space, room to finish the approved extension and flexible internal arrangement across approximately 710 sq ft. Broadband and mobile signal are strong, the area reports low crime and local schools and amenities are within easy reach. This is a straightforward development opportunity for someone prepared to invest in completion and refurbishment.
4 bedroom bungalow for sale in Hall Meadow, Bonby, Brigg, Lincolnshire, DN20 0QP, DN20 — £285,000 • 4 bed • 2 bath • 1614 ft²
2 bedroom semi-detached house for sale in High Street, Broughton, Brigg, DN20 — £85,000 • 2 bed • 1 bath • 1077 ft²
2 bedroom detached bungalow for sale in Chestnut Grove, Broughton, DN20 — £210,000 • 2 bed • 1 bath • 567 ft²
3 bedroom detached house for sale in Brigg Road, South Kelsey, LN7 — £370,000 • 3 bed • 1 bath • 936 ft²
3 bedroom detached bungalow for sale in Shakespeare Avenue, Scunthorpe, DN17 — £235,000 • 3 bed • 1 bath • 891 ft²
4 bedroom detached house for sale in Churchill Avenue, Brigg, Lincoln, Lincolnshire, DN20 8DF, DN20 — £215,000 • 4 bed • 2 bath • 1475 ft²






















































































































































