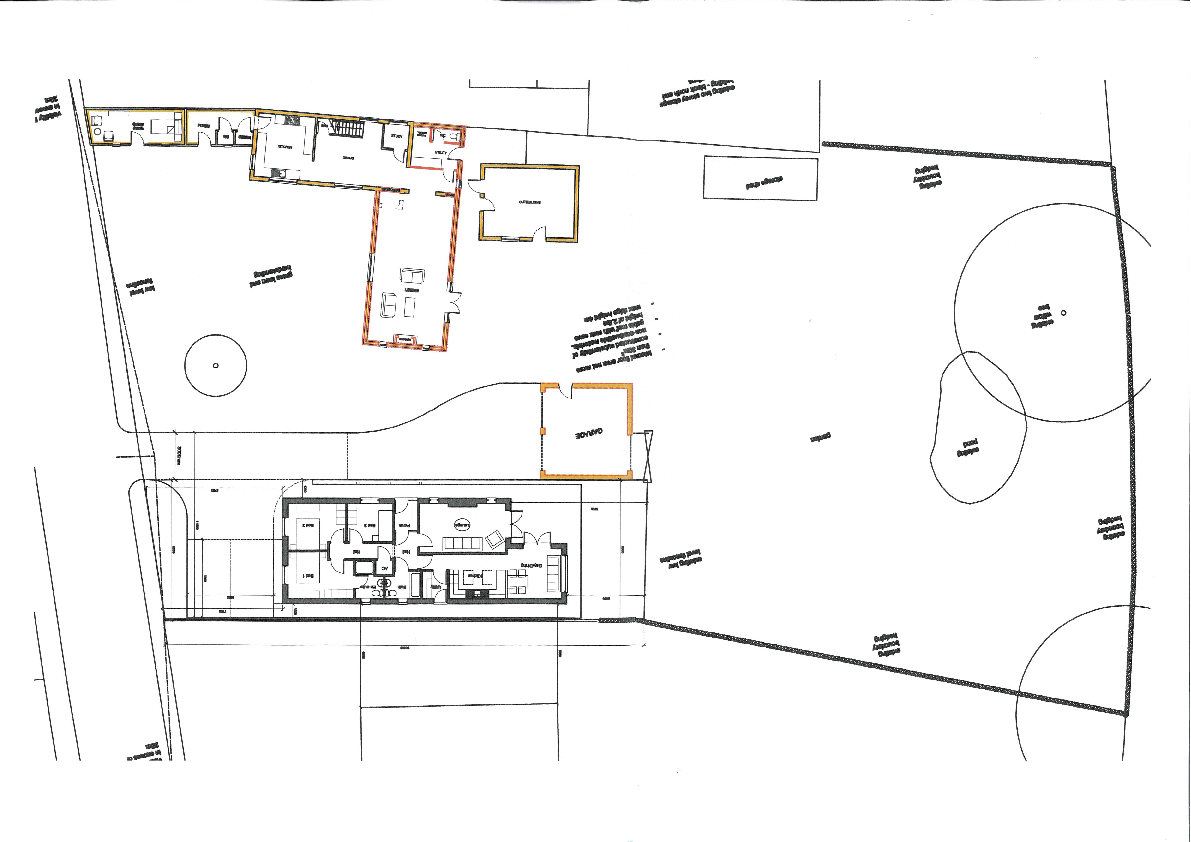
Half-acre plot, garage and planning for a bungalow — finish the extension to add value.
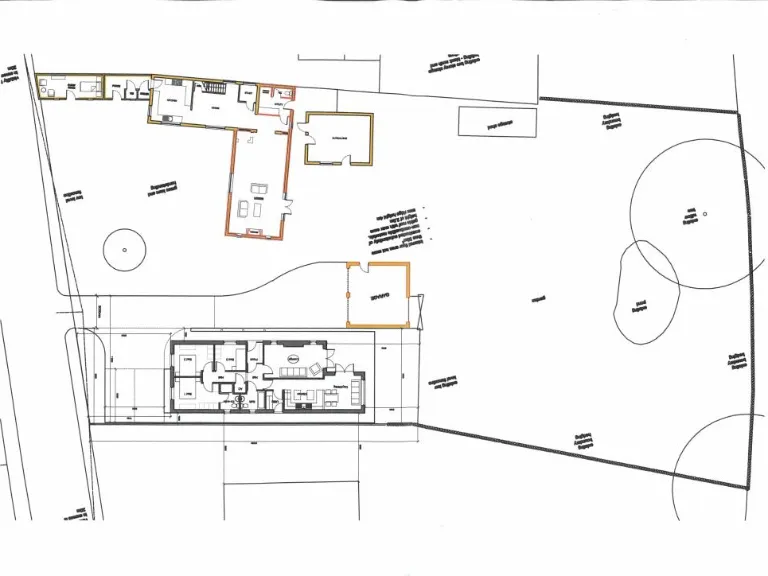
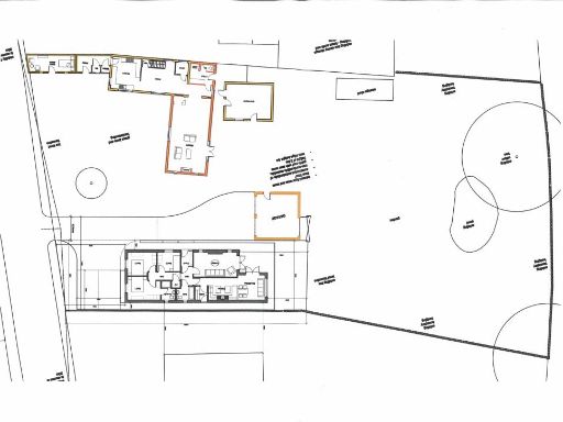
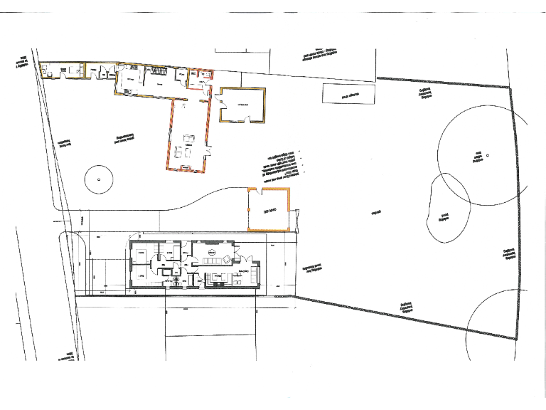
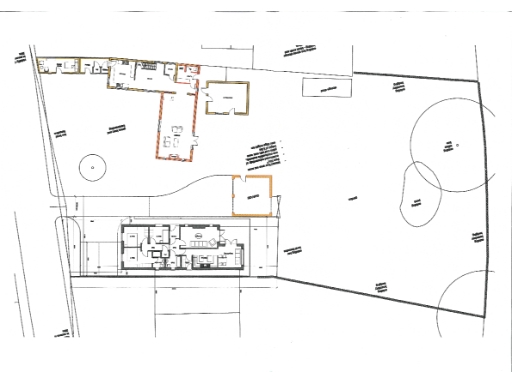
Approximately 0.5 acre plot with large rear garden
Set on about half an acre in a sought-after Lincolnshire village, this extended three-bedroom detached cottage offers substantial outdoor space, extensive parking, and a double garage with workshop. The house combines character brickwork and a modern kitchen with practical living areas across two storeys, making it suitable for family life or a rural downsizer seeking space and scope.
A partly finished 15m extension provides a clear value opportunity: the shell is in place but requires completion beyond first-fix, including fixtures, finishes and services. There is also planning permission for a detached single-storey bungalow within the grounds, which could appeal to buyers wanting ancillary accommodation, rental income or a future redevelopment project (subject to compliance with consent).
Practical details: heating is oil-fired and the current EPC rating is G, so buyers should budget for energy improvements. The property is freehold, council tax band C, has excellent mobile signal and fast broadband — helpful for remote working. Overall the house suits buyers willing to carry out finishing works or a sympathetic renovation to unlock its full potential.
Notable negatives are straightforward: the extension is only first-fix and requires significant finishing; the EPC rating indicates poor energy efficiency; oil heating may be less desirable for some buyers. Those seeking a low-maintenance turnkey home may find additional investment is required, but for those looking to add value this home and large plot offer strong possibilities.
4 bedroom detached house for sale in Brandy Wharf Road, Waddingham, Gainsborough, DN21 — £530,000 • 4 bed • 1 bath • 1281 ft²
6 bedroom detached house for sale in Brigg Road, Caistor, LN7 — £575,000 • 6 bed • 3 bath • 2329 ft²
3 bedroom detached house for sale in Manor Road, Northorpe, Gainsborough, Lincolnshire, DN21 — £425,000 • 3 bed • 2 bath • 2223 ft²
4 bedroom detached house for sale in Brigg Road, Caistor, Lincolnshire, LN7 — £330,000 • 4 bed • 2 bath • 2009 ft²
5 bedroom detached house for sale in Church Street, Middle Rasen, LN8 — £495,000 • 5 bed • 2 bath • 3693 ft²
3 bedroom detached house for sale in Normanby Road, Nettleton, LN7 — £495,000 • 3 bed • 2 bath • 1997 ft²


































































































































































































































































