**Standout Features:**
- Detached Grade II Listed Victorian home with preserved period details
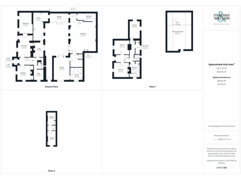
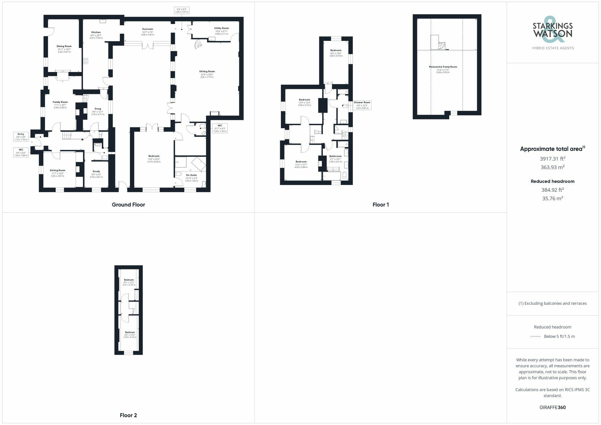
- Spacious total of approximately 3,917 SQFT
- Seven reception rooms and a bespoke kitchen perfect for family gatherings
- Six bedrooms and three bathrooms, ideal for multi-generational living or potential annex
- Double garage, gated driveway, and expansive private gardens
- Charming central courtyard for outdoor relaxation
**Overview:**
This character-filled Grade II Listed Victorian home, once a girls' home, marries historic charm with modern comforts and is situated in the serene village of Dickleburgh. Spanning nearly 4,000 SQFT, it offers a generous layout perfect for families or those seeking multi-generational accommodation. The property boasts seven reception areas, including a stunning vaulted reception in the newer conversion, along with a bespoke kitchen equipped with premium appliances and an inviting breakfast room. With six spacious bedrooms and three well-appointed bathrooms, this home presents ample space for comfortable living.
While the listing status may present challenges, the property’s unique features and generous size make it a rare find in today's market. The private gardens and courtyard provide a peaceful retreat, and the double garage offers extra convenience and storage potential. Local amenities and well-regarded schools enhance the appeal for families. With a guide price of £730,000 - £750,000, this exquisite home exemplifies a harmonious blend of historic allure and modern functionality, making it an ideal setting for creating lasting memories. Don't miss this chance to secure your place in one of Dickleburgh's most distinguished residences.
3 bedroom detached house for sale in Rectory Road, Dickleburgh, IP21 — £550,000 • 3 bed • 2 bath • 1675 ft²
5 bedroom semi-detached house for sale in The Street, Dickleburgh, IP21 — £450,000 • 5 bed • 1 bath • 1281 ft²
3 bedroom semi-detached house for sale in Norwich Road, Dickleburgh, Diss, IP21 — £425,000 • 3 bed • 2 bath • 1482 ft²
6 bedroom detached house for sale in Great Green, Burgate, Diss, IP22 — £700,000 • 6 bed • 3 bath • 2828 ft²
5 bedroom detached house for sale in The Street, Tibenham, Norwich, NR16 — £1,100,000 • 5 bed • 3 bath • 3729 ft²
4 bedroom detached house for sale in Low Road, Alburgh, Harleston, IP20 — £700,000 • 4 bed • 2 bath • 1869 ft²














































































































































































































