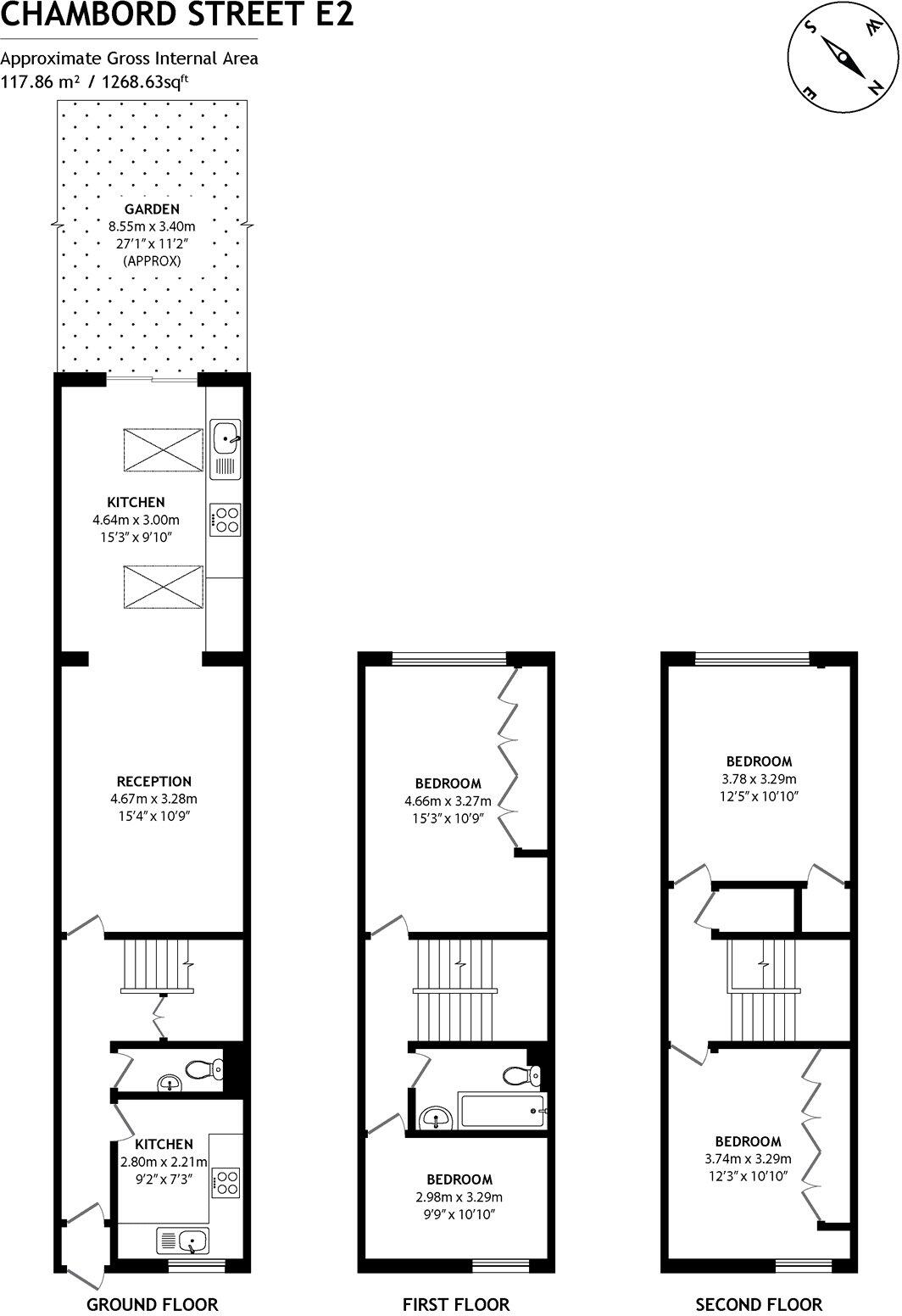
Light-filled four-bedroom with private garden and off-street parking, moments from markets.
Freehold mid-terrace with three storeys and 1,268 sq ft total space
Stylish rear extension with skylights and sliding doors to south/west garden
Open-plan kitchen/living/dining; wooden floors and integrated appliances
Off-street parking directly to the property
Four double bedrooms; fitted wardrobes and landing storage on upper floors
Single family bathroom for four bedrooms; one ground-floor W/C
Cavity walls assumed uninsulated — potential energy-efficiency work needed
Area is deprived with above-average crime; council tax rates are above average
This four-bedroom mid-terrace freehold offers contemporary family living across three storeys, combining a stylish rear extension with practical off-street parking. The open-plan kitchen/living/dining area is bright and airy thanks to skylights and sliding doors that lead to a private south/west-facing garden — ideal for evening light and entertaining. Wooden floors and integrated kitchen appliances give a clean, modern finish throughout.
Accommodation includes two double bedrooms on the first floor, a family bathroom, and two further double bedrooms on the top floor with fitted wardrobes and landing storage. At about 1,268 sq ft the house feels spacious for its footprint; a ground-floor W/C and a second kitchen add flexibility for family life or working from home.
Location is a strong asset: moments from Columbia Road’s shops, cafés and the Flower Market, with excellent transport links — Shoreditch High Street (0.4 miles) and Liverpool Street (0.9 miles). Nearby well-rated primary and secondary schools make this a sensible choice for families wanting inner-city convenience.
Buyers should note a few practical issues. The property dates from the late 1960s–1970s and the cavity walls are assumed uninsulated, so further insulation or energy-efficiency works may be needed. There is a single family bathroom for four bedrooms. The area is classified as deprived with above-average crime statistics and council tax is above average — factors to weigh against the strong local amenities and central transport links.
3 bedroom terraced house for sale in Virginia Road, Tower Hamlets, London, E2 — £900,000 • 3 bed • 2 bath • 1071 ft²
4 bedroom end of terrace house for sale in Granby Street, Bethnal Green, London, E2 — £900,000 • 4 bed • 2 bath • 1316 ft²
4 bedroom house for sale in Malpas Road, Hackney, E8 — £750,000 • 4 bed • 1 bath • 1248 ft²
3 bedroom house for sale in Baxendale Street, Columbia Road, London, E2 — £1,400,000 • 3 bed • 1 bath • 948 ft²
4 bedroom terraced house for sale in Canrobert Street, London, E2 — £950,000 • 4 bed • 2 bath • 1055 ft²
4 bedroom terraced house for sale in Granby Street, London, E2 — £900,000 • 4 bed • 2 bath • 1300 ft²










































































