Bright family home near top schools and local amenities.
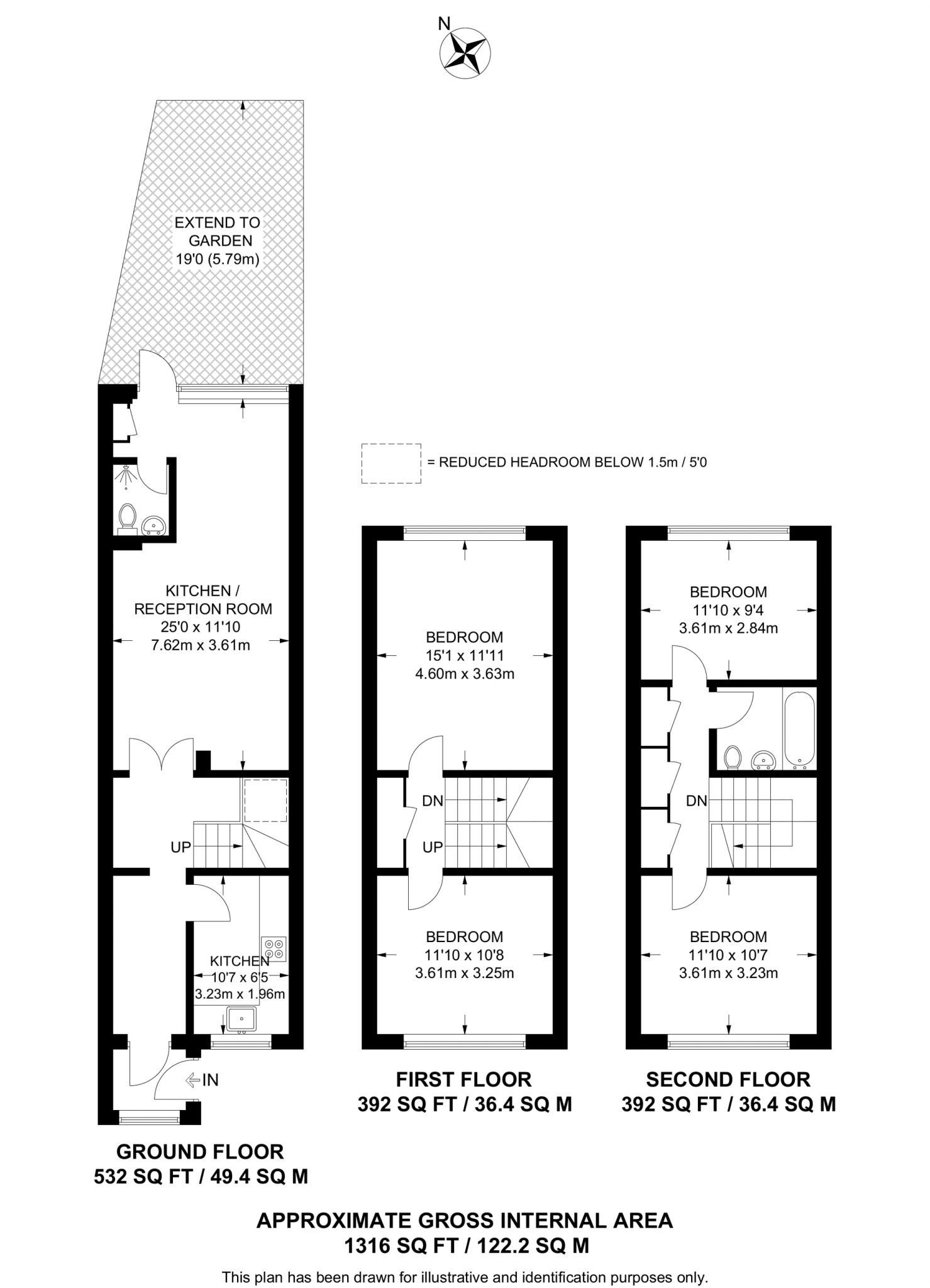
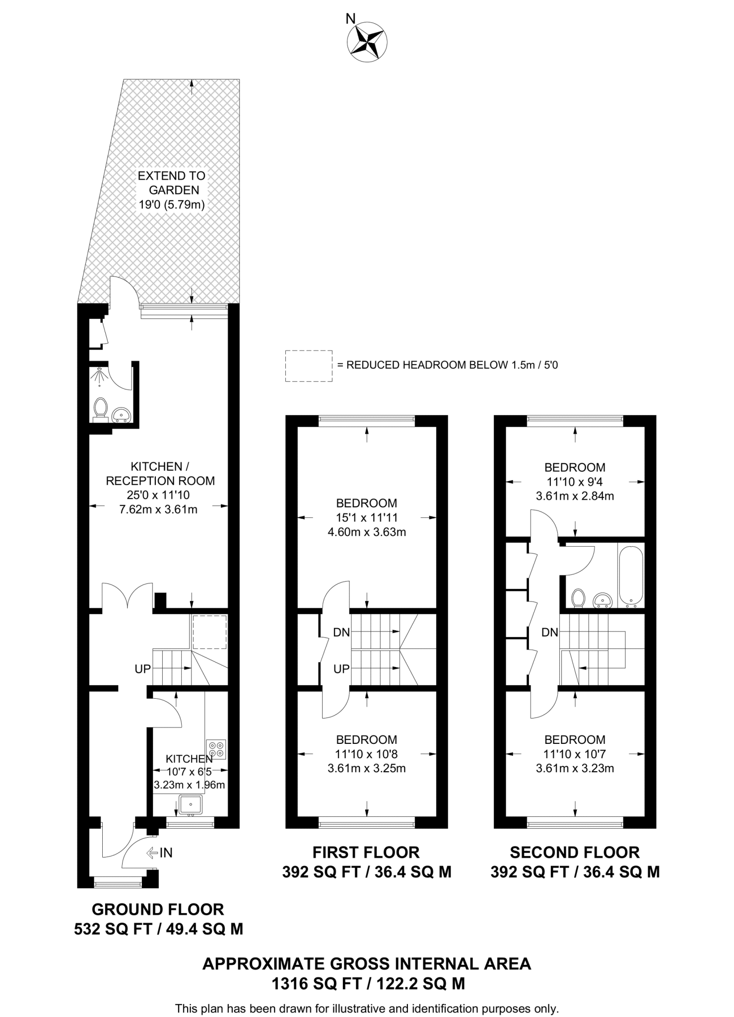
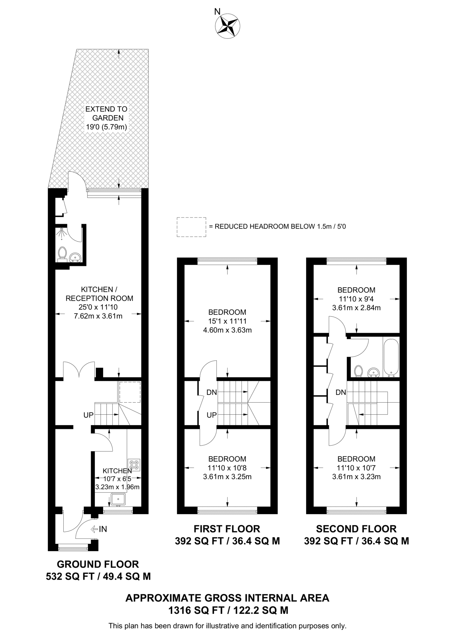
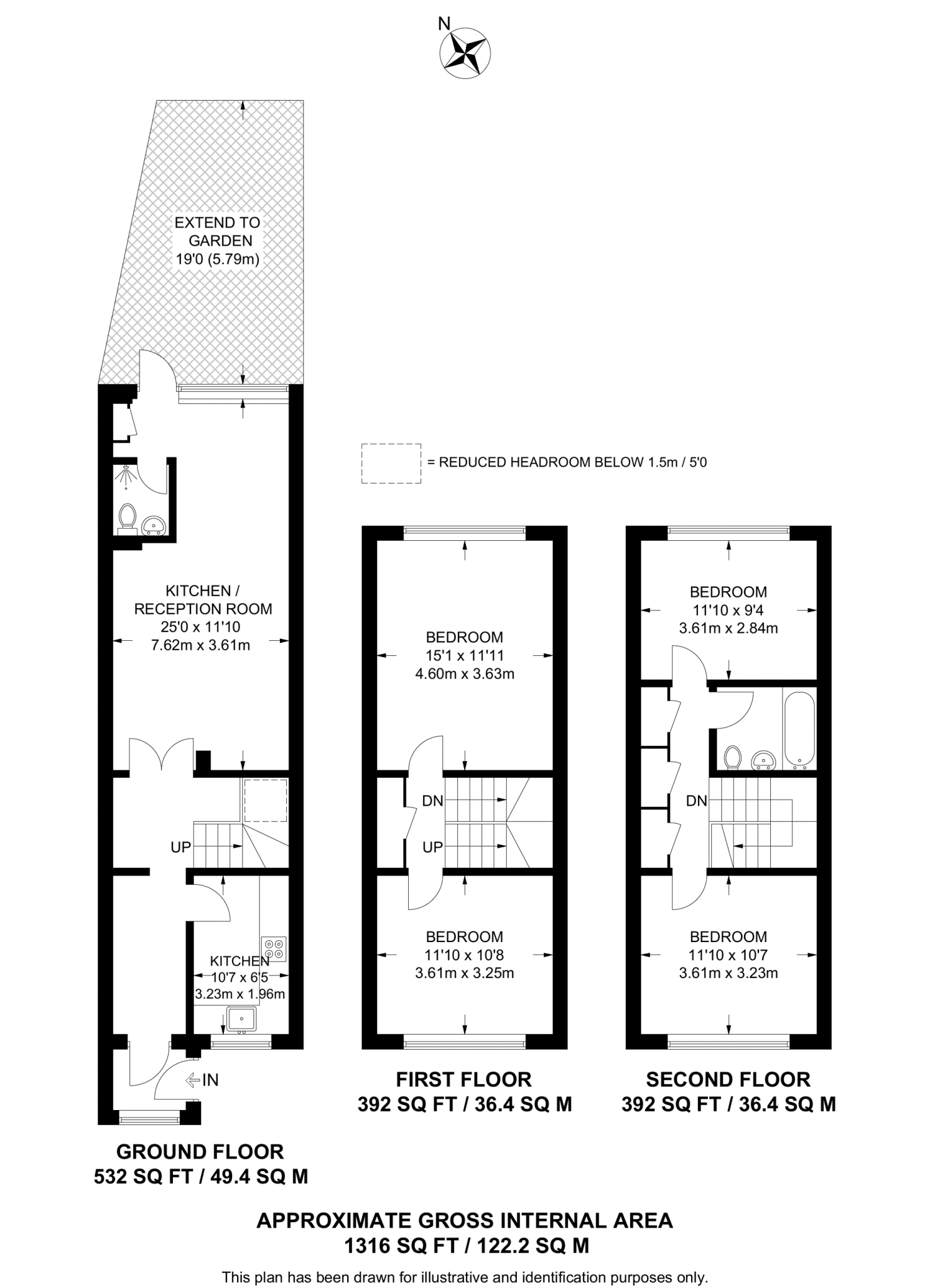
Spacious four-bedroom layout across three floors, 1,316 sq ft
Private paved garden; small plot size limits outdoor space
Off-street parking to the front — rare for location
Modern separate kitchen; reception room with dining space
Two bathrooms including a wet room; practical family layout
Built 1930–1949 with cavity walls; insulation likely needed
Double glazing present; installation date unknown
Freehold tenure; gas central heating with boiler and radiators
This spacious four-bedroom end-of-terrace offers three floors of bright, modern living in Bethnal Green, with a private paved garden and off-street parking — a rare combination so close to local shops and transport. The reception room provides space to dine and relax, and the separate modern kitchen keeps cooking and entertaining distinct.
Practical details are straightforward: freehold tenure, two bathrooms (including a wet room), double glazing (install date unknown) and gas central heating with a boiler and radiators. The house was built between 1930–1949 and has cavity walls with no added insulation assumed, so buyers should consider potential energy-efficiency upgrades.
The location is a strong draw for families: several nearby primary and secondary schools have Good or Outstanding Ofsted ratings, and local amenities on Bethnal Green Road are moments away. The property sits in an inner-city, cosmopolitan neighbourhood with excellent mobile and broadband connectivity, and low recorded crime.
Be aware of wider socio-economic context: the immediate area is classed as very deprived, and the plot is small with limited external space. The house is an average overall size for the borough at about 1,316 sq ft and will suit buyers wanting a ready-to-live-in home with realistic scope for refurbishment rather than a fully renovated turnkey property.
4 bedroom semi-detached house for sale in Granby Street, Shoreditch High Street, E2 — £900,000 • 4 bed • 2 bath • 1283 ft²
5 bedroom house for sale in Paradise Row, Bethnal Green, London, E2 — £1,250,000 • 5 bed • 4 bath • 2047 ft²
4 bedroom terraced house for sale in Granby Street, London, E2 — £900,000 • 4 bed • 2 bath • 1300 ft²
3 bedroom terraced house for sale in Chilton Street, Bethnal Green, E2 — £850,000 • 3 bed • 2 bath • 1147 ft²
3 bedroom flat for sale in Morpeth Street, Bethnal Green, London, E2 — £500,000 • 3 bed • 1 bath • 920 ft²
4 bedroom terraced house for sale in Canrobert Street, London, E2 — £950,000 • 4 bed • 2 bath • 1055 ft²


































































































































































































































