Bright three-bed family home minutes from Jubilee Line and local shops.
1,206 sq ft gross internal area, spacious living layout
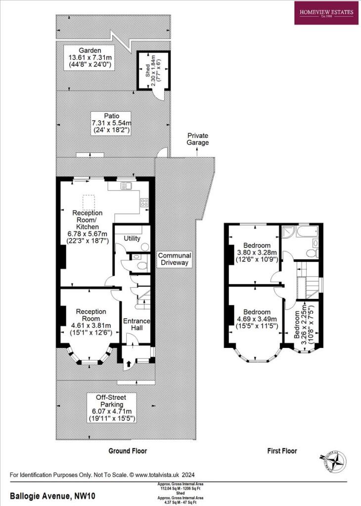
A spacious, newly refurbished three-bedroom semi-detached home offering 1,206 sq ft of living space on a quiet residential street. The modern fitted kitchen opens to a large rear garden through bi-fold doors and skylight, creating a bright family hub. A separate living room, ground-floor WC and utility space add everyday practicality.
Upstairs has three well-proportioned bedrooms served by a contemporary family bathroom — good layout for children or flexible working-from-home needs. The property benefits from off-street parking on the front drive, gas central heating and double glazing throughout. Neasden (Jubilee Line) is within easy walking distance for fast Central London access.
Practical points to note: the house sits in a higher-crime, more deprived area and the council tax band is above average. The building is solid-brick (1930s–40s) with no recorded wall insulation; the EPC is D, so further insulation or energy upgrades could reduce running costs. Freehold tenure and a decent plot with a modern garden and shed add long-term appeal.
This home will suit families wanting a ready-to-move-in property near good primary and secondary schools, with scope to improve energy efficiency and personalise finishes over time.
3 bedroom semi-detached house for sale in Attewood Avenue, Neasden, NW10 — £499,999 • 3 bed • 1 bath • 886 ft²
3 bedroom terraced house for sale in Village Way, London, NW10 — £585,000 • 3 bed • 1 bath • 912 ft²
3 bedroom house for sale in North Circular Road, London, NW10 — £499,000 • 3 bed • 1 bath • 1412 ft²
3 bedroom terraced house for sale in Verney Street, Neasden, London, NW10 — £500,000 • 3 bed • 1 bath • 850 ft²
4 bedroom terraced house for sale in Kenwyn Drive, Gladstone Park, London, NW2 — £650,000 • 4 bed • 2 bath • 1345 ft²
3 bedroom semi-detached house for sale in Rydal Gardens, NW9 — £650,000 • 3 bed • 2 bath • 829 ft²


























































