Generous plot, versatile outbuildings and peaceful village living for families.
Spacious four-bedroom period cottage with sympathetic modern extension
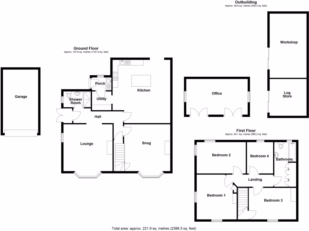
This substantial four-bedroom period cottage blends original character with recent sympathetic updating, making it a comfortable family home in the heart of South Kyme. The extended living space centres on a granite-topped kitchen/diner with island and French doors to the garden, while two reception rooms with feature fireplaces provide formal and informal living zones for family life.
Outside is a major strength: a very large, well-landscaped plot with lawns, mature trees, paved patio and pergola, plus gated gravel driveway to a timber-clad garage. Practical outbuildings include a powered workshop/log store and a fully insulated garden office ideal for homework or remote working. The property benefits from double glazing, a Nest-controlled LPG boiler and a security alarm.
Important practical points: the house is of solid brick construction with no known cavity insulation (assumed as-built), so adding wall insulation may be beneficial. Heating runs on LPG rather than mains gas, and both broadband and mobile signal are described as average — factors to consider for heavy home-working or high-energy budgets. The wider area classification indicates rural communities with some local deprivation; local services are limited but the village offers a pub, golf course and good primary schooling.
Overall this is a roomy, characterful family home on a generous plot with excellent outbuildings and versatile space. Buyers seeking generous outdoor amenity, flexible working space and period charm will find strong appeal, but those prioritising mains gas, high-speed connectivity or fully insulated masonry should factor potential upgrades into their plans.
4 bedroom detached house for sale in Clay Bank, South Kyme, Lincoln, LN4 — £400,000 • 4 bed • 2 bath • 1623 ft²
4 bedroom detached house for sale in High Thorpe, Southrey, Lincoln, LN3 — £500,000 • 4 bed • 2 bath • 2237 ft²
4 bedroom detached house for sale in Church Lane, Kirkby-la-Thorpe, Sleaford, Lincolnshire, NG34 — £525,000 • 4 bed • 2 bath • 1974 ft²
4 bedroom detached house for sale in Main Road, Holland Fen, Lincoln, Lincolnshire, LN4 — £325,000 • 4 bed • 2 bath • 2215 ft²
3 bedroom detached house for sale in Fen Road, Dowsby, Bourne, Lincolnshire, PE10 — £475,000 • 3 bed • 2 bath • 2138 ft²
3 bedroom detached house for sale in North Forty Foot Bank, Holland Fen, Lincoln, LN4 — £350,000 • 3 bed • 1 bath • 1498 ft²














































































