Comfortable family home with conservatory, good transport links and scope for improvement.
Three bedrooms with separate living room and conservatory/sunroom
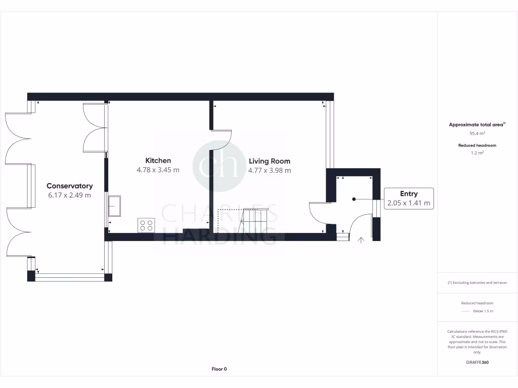
This three-bedroom semi-detached home in Days Close, Stratton St. Margaret offers practical family living with sensible, well-maintained accommodation. Ground floor includes a living room, fitted kitchen/dining area and a generous conservatory/sunroom that extends living space into the rear garden. Upstairs are three bedrooms and a single bathroom — straightforward layout for family routines or first-time buyers seeking immediate use.
The property sits on a small plot with a paved driveway and access to a garage in a nearby block. The rear garden is lawned with a patio and gated side access; it’s tidy and low maintenance but not large. Built in the late 1960s/early 1970s with cavity walls (insulation unknown) and double glazing, the house is heated by a mains-gas boiler and radiators and has an EPC rating of D — adequate but with scope for energy improvements.
Location strengths include easy access to the A419/M4, good local schools, fast broadband and excellent mobile signal, plus nearby shops and transport links to Swindon town centre and Greenbridge shopping park. Notable concerns are the area’s higher crime level, unknown tenure details, small plot size, single bathroom, and the garage being in a communal block rather than on-plot. These factors should be weighed against the property’s family-friendly layout and convenient transport connections.
3 bedroom semi-detached house for sale in Burden Close, Stratton St. Margaret, Swindon, SN3 — £290,000 • 3 bed • 1 bath • 1113 ft²
3 bedroom semi-detached house for sale in Harrow Close, SWINDON, SN3 — £300,000 • 3 bed • 1 bath • 862 ft²
3 bedroom semi-detached house for sale in Tudor Crescent, Stratton St Margaret, SN3 — £350,000 • 3 bed • 1 bath • 1279 ft²
3 bedroom semi-detached house for sale in Gifford Road, Stratton St Margaret, Swindon, SN3 — £280,000 • 3 bed • 1 bath • 667 ft²
3 bedroom link detached house for sale in Cawte Mews, Stratton St. Margaret, Swindon, SN3 — £375,000 • 3 bed • 2 bath • 1019 ft²
3 bedroom semi-detached house for sale in Swindon, Wiltshire, SN3 — £325,000 • 3 bed • 1 bath • 1013 ft²














































































