Freehold plot with planning to create a bespoke family home close to Primrose Hill.
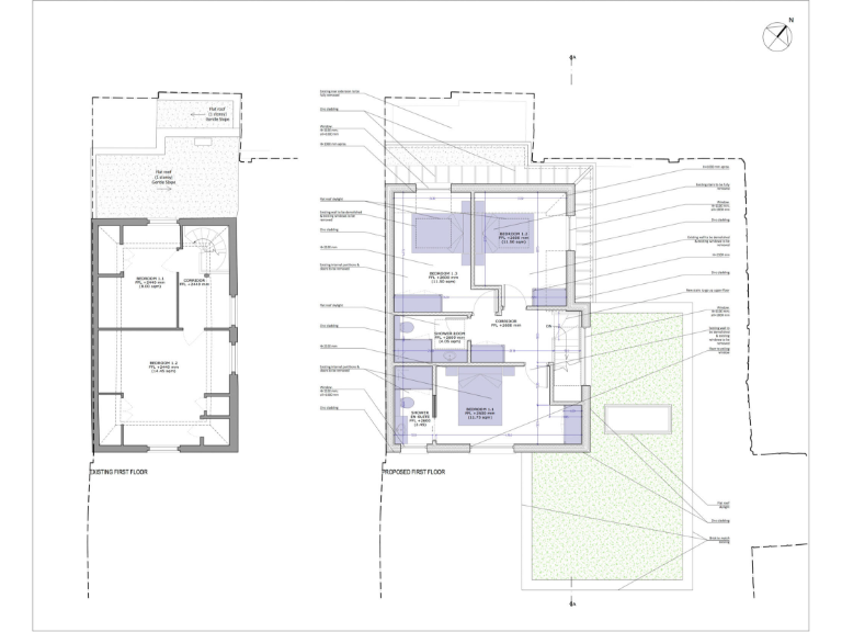
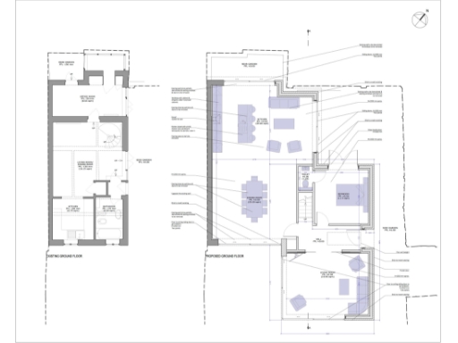
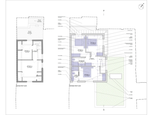
Draft planning permission for contemporary four-bedroom replacement (circa 1,700 sq ft)
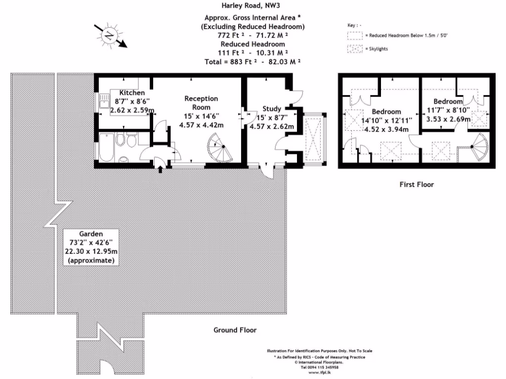
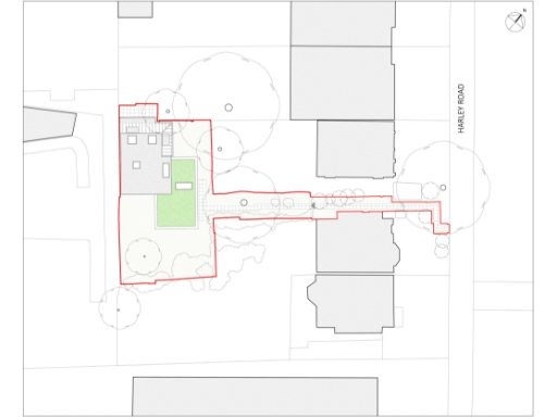
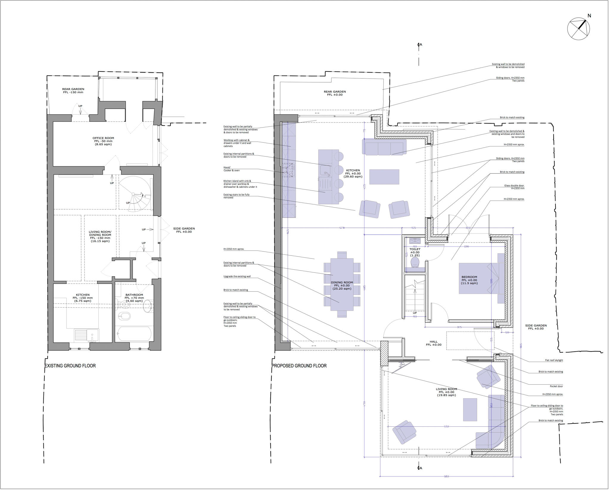
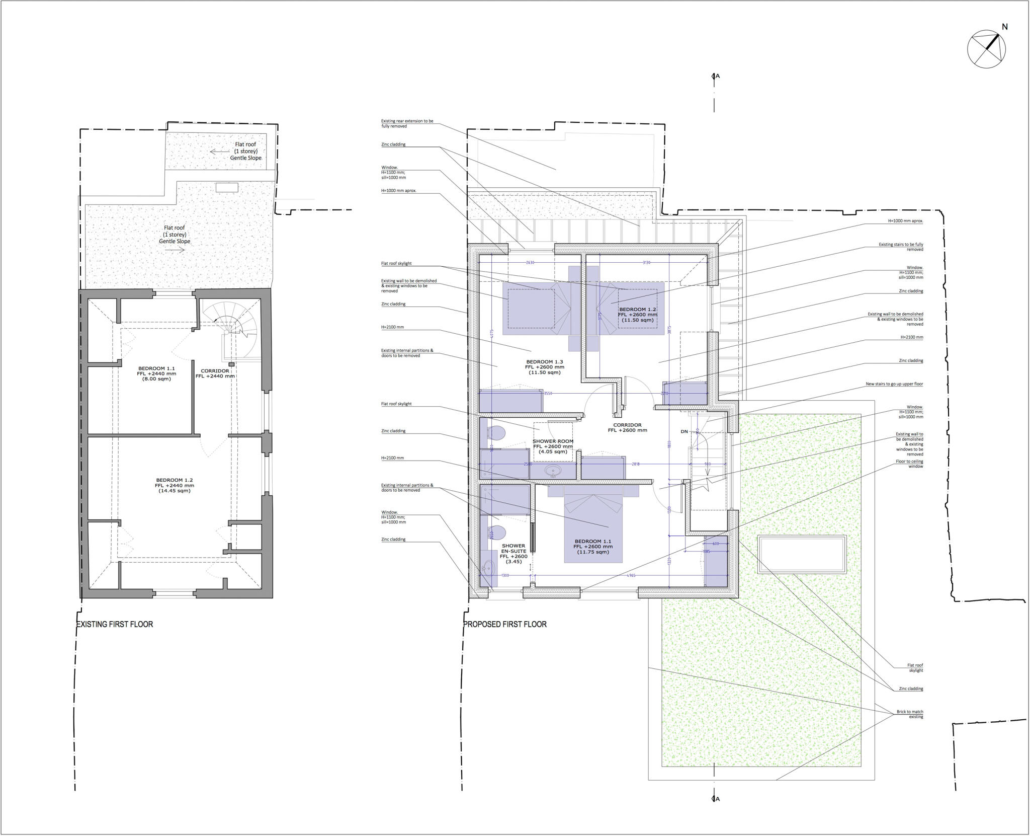
Set on a desirable Harley Road plot near Primrose Hill, this freehold detached house offers a rare new-build opportunity in NW3. The existing 3-bedroom home is compact (approximately 772 sq ft) but comes with draft planning permission to replace it with a contemporary four-bedroom house of about 1,700 sq ft. The scheme promises dramatic floor-to-ceiling glazing, an open-plan kitchen–dining area and a large private garden—ideal for family living and entertaining.
Practical positives include mains gas central heating, excellent mobile signal and fast broadband, plus no flood risk. The plot is decent in size and sits within a very affluent inner-city area well served by independent and strong state schools, local amenities and green space nearby. The sale is for the freehold and the planning package is included, simplifying the route to redevelopment for a buyer comfortable with a construction project.
Buyers should note the current property is small for a family and provides only one bathroom; the appeal here is the redevelopment potential rather than a move-in-ready large home. Crime in the local area is reported as high and council tax levels are described as quite expensive—factors to weigh when budgeting for ongoing ownership and insurance. The images shown are CGI impressions of the proposed build, not photographs of completed works.
This opportunity suits a family seeking a bespoke, contemporary home in a prime location or an investor/developer prepared to progress planning and construction. Expect to commission architects, contractors and to allow time and additional expenditure to deliver the full, high-spec home envisaged by the draft permission.
3 bedroom detached house for sale in Ormonde Court, St. Edmunds Close, London, NW8 — £1,750,000 • 3 bed • 3 bath • 1580 ft²
6 bedroom detached house for sale in Partingdale Lane, Mill Hill Village, NW7 — £3,450,000 • 6 bed • 6 bath • 7500 ft²
3 bedroom semi-detached house for sale in Hawtrey Road, Primrose Hill, London, NW3 — £3,000,000 • 3 bed • 3 bath • 2767 ft²
4 bedroom house for sale in Hawtrey Road, Primrose Hill, NW3 — £1,925,000 • 4 bed • 2 bath • 2713 ft²
6 bedroom detached house for sale in Wadham Gardens, London, NW3 — £17,000,000 • 6 bed • 4 bath • 6261 ft²
5 bedroom terraced house for sale in Elliott Square, London, NW3 — £2,900,000 • 5 bed • 3 bath • 1696 ft²


















































































