**Standout Features:**
- Five spacious bedrooms across three floors, built circa 1920
- Original architectural character with high ceilings and sash windows
- Stunning entrance hall with original geometric flooring
- Multi-fuel central heating and a combination of modern and traditional appliances
- Generous off-road parking with garage and brick-built coal/wood store
- Well-maintained gardens with lawn and decked areas
- Close proximity to local amenities, schools, and healthcare facilities
**Potential Downsides:**
- Older construction means potential maintenance and renovation needs
- Some concerns regarding the above-average crime rate in the area
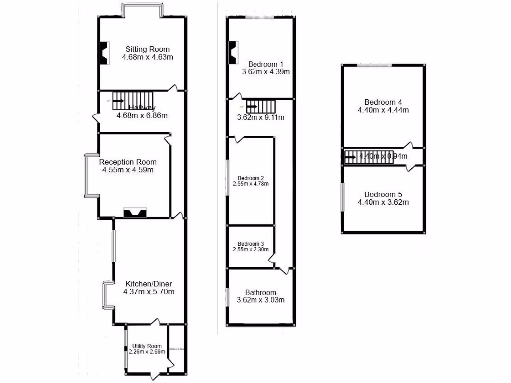
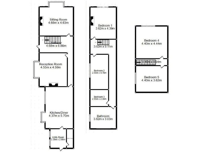
Welcome to this charming five-bedroom semi-detached home on Weelsby Road, Grimsby, which effortlessly combines classic elegance with modern convenience. Spanning three stories, this property showcases stunning original features including high ceilings, intricate plasterwork, and period fireplaces. Generously sized living spaces include two reception rooms and a well-equipped breakfast kitchen featuring a multi-fuel aga—a practical addition for cooking and heating.
The property’s layout is perfect for family living, with three bedrooms and an elegant family bathroom on the first floor, plus two additional bedrooms on the top floor, providing comfortable personal spaces. Outside, enjoy ample off-road parking, a detached garage, and beautifully maintained gardens ideal for outdoor relaxation.
While situated in a vibrant community with excellent local amenities and reputable schools nearby, potential buyers should consider the home’s older structure, which may require some upkeep. Seize the opportunity to own a piece of history and personalize it to your taste—homes like this seldom linger on the market for long!
5 bedroom house for sale in Welholme Avenue, Grimsby, DN32 — £299,950 • 5 bed • 1 bath • 1540 ft²
4 bedroom detached house for sale in Heneage Road, Grimsby, N E Lincs, DN32 — £310,000 • 4 bed • 1 bath • 2244 ft²
5 bedroom semi-detached house for sale in Eleanor Street, Grimsby, DN32 — £295,000 • 5 bed • 2 bath • 3227 ft²
4 bedroom semi-detached house for sale in Princes Avenue, Grimsby, DN31 — £190,000 • 4 bed • 1 bath • 1873 ft²
5 bedroom end of terrace house for sale in Abbey Road, Grimsby, DN32 — £375,000 • 5 bed • 1 bath • 2369 ft²
3 bedroom semi-detached house for sale in Weelsby Road, Grimsby, N.E. Lincs, DN32 0PS, DN32 — £215,000 • 3 bed • 1 bath • 1114 ft²


















































































































