Spacious period semi with garage and garden — ideal for an owner-refurbisher seeking value.
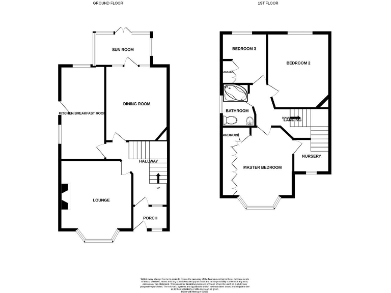
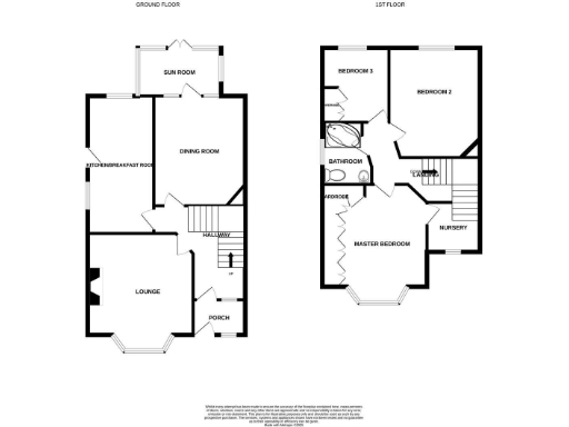
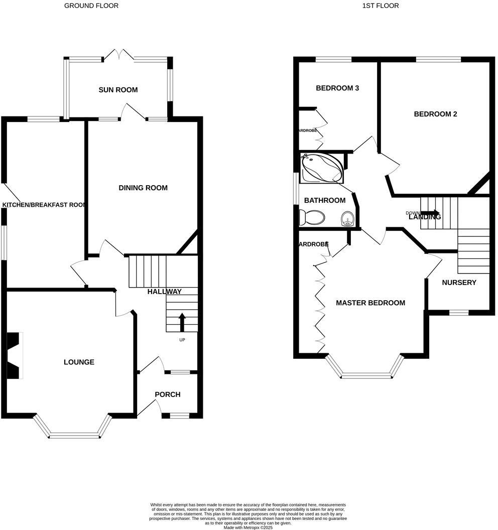
- Three double reception rooms including sun room leading to garden
- Three bedrooms, single family bathroom, plus small nursery space
- Detached garage and concrete driveway for off-road parking
- Double glazing and gas central heating installed
- Solid brick walls likely without cavity insulation (assumed)
- Property requires renovation and updating throughout
- Higher local crime and area deprivation may affect resale
- Close to town centre, hospital, good schools and fast broadband
A traditional three-bedroom semi on Weelsby Road offering generous reception space, a sun room and detached garage. The layout suits a growing family: large front lounge with bay window, separate dining room, extended kitchen/breakfast area and a useful sun room opening to a decent rear garden.
The house benefits from double glazing and gas central heating and sits conveniently near the town centre and Diana Princess of Wales Hospital. Fast broadband and accessible local schools make this a practical base for working professionals and families who need good connections and amenities.
This is a renovation opportunity rather than a turnkey purchase. The solid brick walls are likely uninsulated, and the property needs updating throughout to modern standards. The area scores high for crime and is relatively deprived, which will affect resale prospects and insurance; buyers should weigh this against the affordable price and scope to add value.
For a buyer ready to invest time and budget, the property has clear upside: period features, good room proportions, off-road parking plus garage, and a decent plot to extend or improve (subject to consents). Budget realistically for refurbishment and consider specialist quotes for insulation and any electrical or structural works.
3 bedroom semi-detached house for sale in Drew Avenue, Grimsby, DN32 — £139,950 • 3 bed • 2 bath • 808 ft²
3 bedroom semi-detached house for sale in Carnarvon Avenue, Grimsby, Lincolnshire, DN34 — £165,000 • 3 bed • 1 bath
3 bedroom semi-detached house for sale in Littlefield Lane, Grimsby, DN34 — £165,000 • 3 bed • 1 bath • 1205 ft²
4 bedroom semi-detached house for sale in Weelsby Road, Grimsby, DN32 — £220,000 • 4 bed • 1 bath • 1555 ft²
3 bedroom semi-detached house for sale in Laburnum Drive, Grimsby, Lincolnshire, DN34 — £175,000 • 3 bed • 1 bath
3 bedroom semi-detached house for sale in Recto Avenue, Grimsby, N.E. Lincs, DN32 9RA, DN32 — £169,950 • 3 bed • 1 bath • 1064 ft²






































































