Cash buyers only — large two-bedroom restoration project close to harbour..
Grade II listed c.1680 with original beams and brick fireplaces
Share of freehold and new lease in place
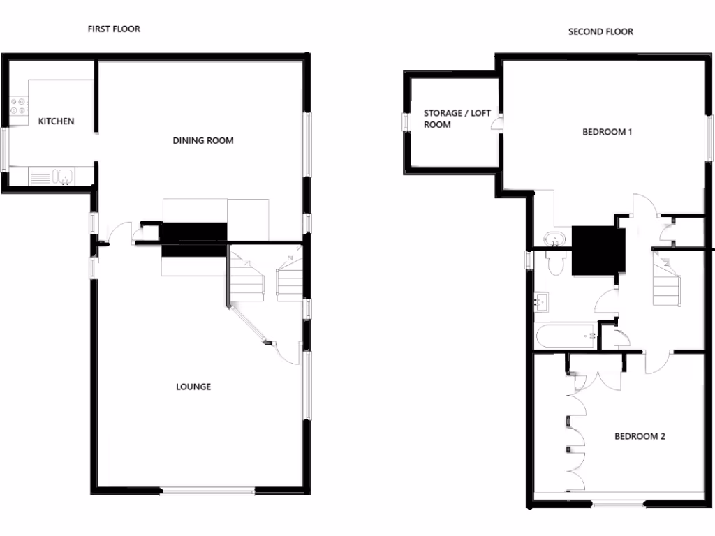
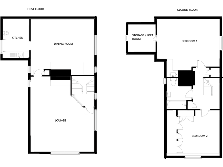
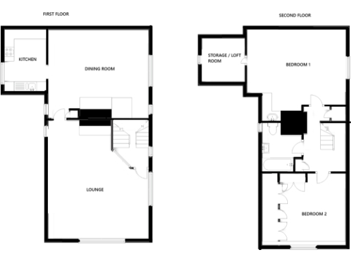
Private entrance and enclosed garden; 1,304 sq ft unusually large
Two reception rooms — generous layout across multiple floors
Requires full modernisation; listed status restricts alterations
Cash buyers only — no mortgage lending likely
Area has very high crime and very high deprivation
Walking distance to harbour, seafront, shops and transport
Set within one of Ramsgate’s oldest surviving residences (c.1680), this Grade II listed two-bedroom maisonette offers 1,304 sq ft of character space with private entrance and enclosed garden. The layout includes two reception rooms with original brick fireplaces, a roomy kitchen and period features such as exposed beams. A new lease and share of freehold are in place.
This is a renovation-led opportunity suited to cash buyers and experienced restorers or investors. The property requires comprehensive modernisation; works will need to respect listed-building constraints which can increase cost and limit changes. There is no flood risk, but the building’s listed status will cause planning and repair complexities.
The location is central and walkable to Ramsgate Royal Harbour, seafront and local amenities. Broadband speeds are average and mobile signal is excellent. Note the immediate area scores high for deprivation and crime — important for short-term rental or resale planning.
Offered at £140,000, the maisonette is a spacious project with strong period appeal and scope to add value for the right buyer prepared for listed-building restoration and local challenges.
5 bedroom terraced house for sale in Abbots Hill, Ramsgate, Kent, CT11 — £450,000 • 5 bed • 1 bath • 1517 ft²
3 bedroom terraced house for sale in Cavendish Street, Ramsgate, CT11 — £350,000 • 3 bed • 2 bath • 1515 ft²
3 bedroom terraced house for sale in Guildford Lawn, Ramsgate, Kent, CT11 — £465,000 • 3 bed • 2 bath • 1530 ft²
2 bedroom ground floor flat for sale in Kent Terrace, Ramsgate, Kent, CT11 — £160,000 • 2 bed • 1 bath • 614 ft²
3 bedroom flat for sale in Kings Place, Ramsgate, CT11 — £170,000 • 3 bed • 1 bath • 1005 ft²
3 bedroom terraced house for sale in Liverpool Lawn, Ramsgate, CT11 9HJ, CT11 — £600,000 • 3 bed • 2 bath • 1900 ft²






































