High-spec family home with gardens and excellent energy efficiency.
EPC A rating with solar panels and air-source heat pump
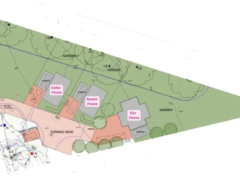
Elm House is a newly built, energy-efficient family home offering more than 2,000 sq ft of well-planned living space. The bright double-height entrance sets the tone for an open, modern layout that includes an open-plan kitchen/dining area with bi-fold doors, a separate lounge with triple aspect windows, a snug, and a dedicated home office with fibre broadband. Ground-floor convenience is provided by a shower room and utility with garage access.
Four generous double bedrooms include three en suites plus a family bathroom, making this house ideal for growing families or multi-generational living. Modern comforts are built in: EPC A rating, solar panels (battery option), air-source heat pump, underfloor heating to the ground floor, and EV charging provision in the garage.
Outside, the enclosed rear garden has a patio and pleasant field views, and the driveway provides off-road parking for three cars plus an integral garage. The property sits in a quiet hamlet location with low crime levels and is under ten minutes’ drive from Hingham, Watton and Attleborough (with A11 links and rail services).
Notable points to consider: planning permission has been granted for an additional house near the road within this development (Breckland planning application PL/2024/1056/FMIN). Local data also records the plot size as small and mobile signal as average, which may affect some buyers’ preferences. Overall this is a well-specified, move-in-ready detached family home with strong energy credentials and flexible living spaces.
4 bedroom detached house for sale in Croft Meadow, PE37 — £450,000 • 4 bed • 3 bath • 1556 ft²
4 bedroom detached house for sale in Modern, Sustainable Living at its Finest - Chain Free, NR17 — £900,000 • 4 bed • 3 bath • 2800 ft²
4 bedroom detached house for sale in Squirrel Lane, East Harling, Norwich, NR16 — £500,000 • 4 bed • 2 bath • 1564 ft²
4 bedroom detached house for sale in Necton, Swaffham, PE37 — £450,000 • 4 bed • 2 bath • 1440 ft²
2 bedroom semi-detached house for sale in Roxbury Drive, East Harling, Norwich, NR16 — £275,000 • 2 bed • 1 bath • 725 ft²
2 bedroom semi-detached house for sale in Roxbury Drive, East Harling, Norwich, NR16 — £275,000 • 2 bed • 1 bath • 718 ft²














































































































































































































































