AL4 8LY - 4 bedroom detached house for sale in Beech Way, Wheathampst…

View on Property Piper

4 bedroom detached house for sale in Beech Way, Wheathampstead, St. Albans, Hertfordshire, AL4

Summary - 1a Beech Way, Wheathampstead AL4 8LY

4 bed 3 bath Detached

**Standout Features:**
- Four/five-bedroom detached family home
- Double garage and ample gravel driveway parking
- Quiet cul-de-sac location in Blackmore End
- Walking distance to local attractions like Mid Herts Golf Club and Gustard Wood Common
- Chain-free sale, facilitating a quicker move
- Expansive garden space on a large plot

**Summary:**
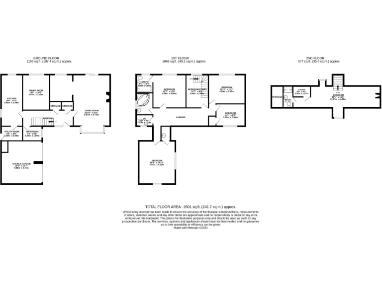
Discover this spacious four/five-bedroom detached family home nestled in a serene cul-de-sac in the charming village of Blackmore End. Boasting 2,601 square feet of living space, this property includes a double garage and ample off-street parking, making it perfect for families and those who entertain frequently. The home is surrounded by mature landscaping, offering both privacy and a tranquil setting.

While the retro-style kitchen may require modernization, it provides a unique charm that could be easily updated to suit modern tastes. With three bathrooms and a generous garden, there’s ample room for family living and outdoor activities. This property is conveniently located just 2.1 miles from Wheathampstead village and a short drive to Harpenden’s mainline station, making commutes to London manageable.

Overall, this home represents a great opportunity for buyers seeking a family-friendly environment with excellent potential for personal touch and value appreciation in a desirable countryside setting. Don’t miss the chance to secure your future in this lovely community!

Property Details

Brochure Descriptions

Image Descriptions

Rooms

Textual Property Features

Detected Visual Features

EPC Details

Nearby Schools

Nearest Bars And Restaurants

,,,,}

Nearest General Shops

,,}

Nearest Grocery shops

,,}

Nearest Supermarkets

,,}

Nearest Religious buildings

,,}

Nearest Medical buildings

,,,}

Nearest Airports

,,}

Nearest Leisure Facilities

,,,,}

Nearest Tourist attractions

,,}

Nearest Train stations

,,,,}

Nearest Bus stations and stops

,,,,}

Nearest Hotels

,,}

Tags

Local Market Stats

Similar Properties

Meta

High Res Images

Compatible Images

Low res Images

Thumbnails

Raw Images

High Res Floorplan Images

Compatible Floorplan Images

Low res Floorplan Images

FloorplanImages Thumbnail

Raw Floorplan Images