**Standout Features:**
- Spacious 5-bedroom semi-detached home in Alresford
- Recently renovated with modern finishes
- No onward chain for a smooth purchase
- Potential for a sixth bedroom or self-contained annex
- Large off-street parking and double garage
- Close proximity to train station and local amenities
- Beautiful garden with summer house
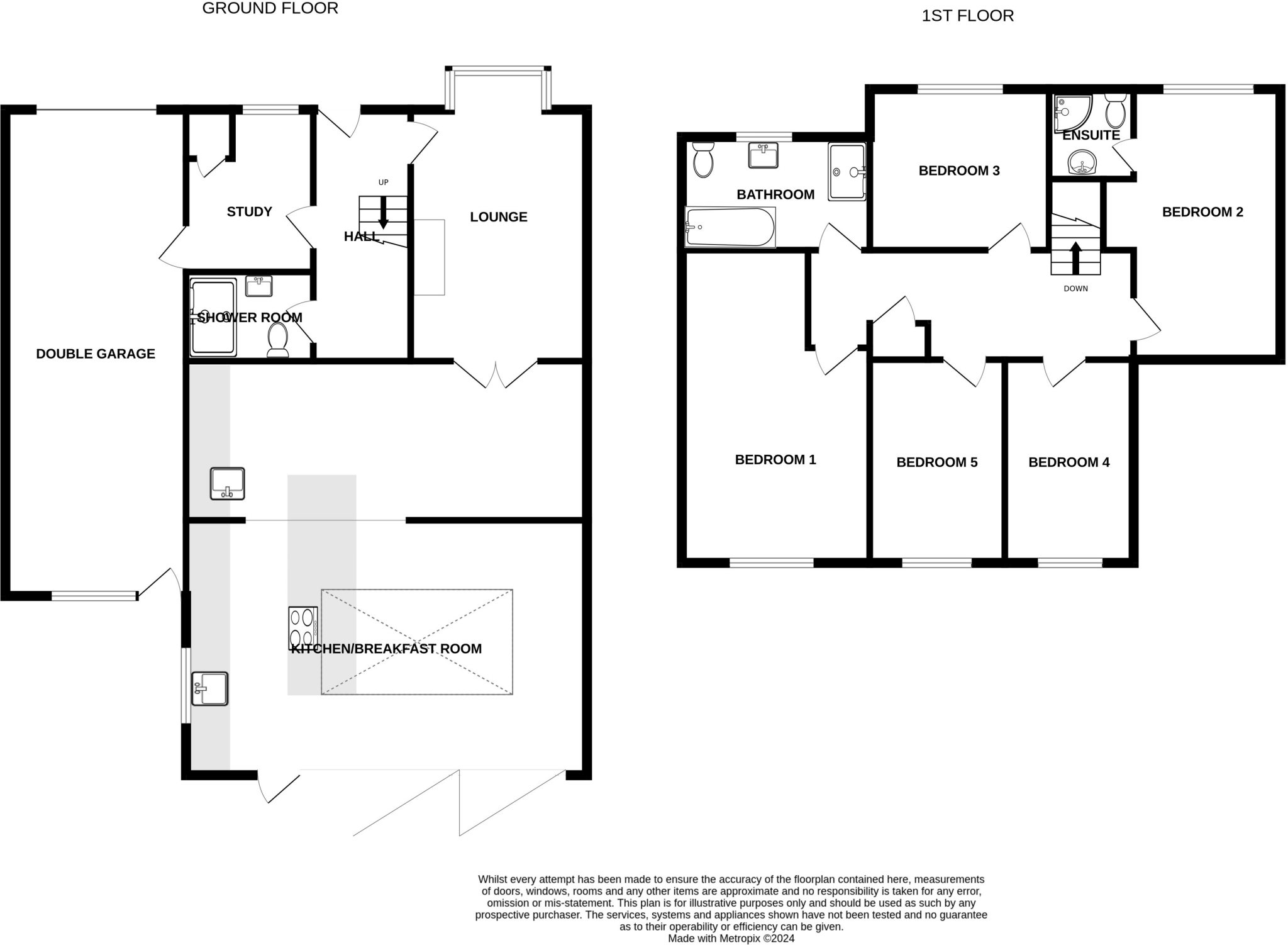
This beautifully renovated 5-bedroom semi-detached home in the charming village of Alresford is a rare find and presented with no onward chain, making it an ideal choice for families or investors looking for a move-in ready property. The standout open-plan kitchen/diner, flooded with natural light from bi-folding doors and skylights, is perfect for family gatherings and entertaining guests. The flexible layout features a cozy study that can easily convert to a sixth bedroom, complete with a shower room nearby.
Upstairs, you’ll find five generously-sized double bedrooms, including a principal suite with a dressing room and existing en-suite, plus a contemporary four-piece main bathroom. The outdoor space includes a well-maintained garden with a charming summer house, ideal for relaxing or hobbies. Additional highlights include ample parking on a spacious driveway and a double garage offering further potential for conversion into living space. With the property’s proximity to the mainline train station providing direct access to London, and local amenities just a stroll away, this home perfectly balances rural tranquility with urban convenience. Secure your exclusive viewing today!
3 bedroom semi-detached house for sale in Lambourne, Alresford, Colchester, Essex, CO7 — £325,000 • 3 bed • 2 bath • 613 ft²
3 bedroom semi-detached house for sale in Lambourne, Alresford, CO7 — £350,000 • 3 bed • 2 bath • 1105 ft²
2 bedroom house for sale in Station Road, Alresford, CO7 — £320,000 • 2 bed • 2 bath • 1378 ft²
4 bedroom semi-detached house for sale in Wivenhoe Road, Alresford, Colchester, CO7 — £475,000 • 4 bed • 2 bath • 1599 ft²
4 bedroom detached house for sale in Pippin Way, Alresford, Colchester, CO7 — £450,000 • 4 bed • 2 bath • 496 ft²
4 bedroom semi-detached house for sale in Hawkins Road , Alresford, CO7 — £425,000 • 4 bed • 3 bath • 1665 ft²










































































































































