Well-presented four-bed house with large garden and garage, ideal for family life.
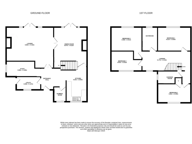
- Four bedrooms and three bathrooms, including en-suite and ground-floor shower room
- Generous lounge with double doors to garden
- Separate dining room and dedicated study/snug
- Underfloor heating in several ground-floor rooms
- Detached garage with electric roller door and wide driveway
- South-facing mature garden with patio and two sheds
- Plot above average; potential to extend subject to planning
- Local mobile signal and crime level are average
Spacious and well-presented, this four-bedroom semi-detached home suits a growing family seeking generous living space and outdoor privacy. The ground floor flows from a large lounge through double doors into a formal dining room, with a separate study and practical utility room for everyday family life.
Key comfort and convenience features include underfloor heating to the lounge, study, hall, shower room and utility, plus a modern family bathroom with jacuzzi and separate shower. The attached garage with electric roller door and wide paved driveway provide secure parking and storage.
Outside, an established, south-facing garden with mature trees, shrub borders, a sunken patio and two sheds offers a private, low-maintenance retreat and scope for further landscaping or extension subject to planning. The plot size is above average for the area and benefits from a side gate for easy access.
Situated in Alresford village, the location combines a peaceful, prosperous countryside setting with practical links — Alresford railway station is within walking distance and local schools and amenities are close by. No flood risk is recorded; council tax is described as affordable. Note the property is freehold and crime and mobile signal are both average locally.
4 bedroom detached house for sale in Rubens Close, Alresford, CO7 — £450,000 • 4 bed • 2 bath • 1251 ft²
4 bedroom detached house for sale in Conifer Close, Alresford, Colchester, CO7 — £420,000 • 4 bed • 2 bath • 1313 ft²
4 bedroom semi-detached house for sale in Wivenhoe Road, Alresford, Colchester, CO7 — £475,000 • 4 bed • 2 bath • 1599 ft²
4 bedroom detached house for sale in Pippin Way, Alresford, Colchester, CO7 — £450,000 • 4 bed • 2 bath • 496 ft²
4 bedroom detached house for sale in Pippin Way, Alresford, Colchester, CO7 — £450,000 • 4 bed • 2 bath • 1234 ft²
5 bedroom detached house for sale in Lambourne, Alresford, CO7 — £475,000 • 5 bed • 3 bath • 1876 ft²






















































































































