Light-filled two-bedroom home near parks, schools and transport.
South-facing private garden with direct access
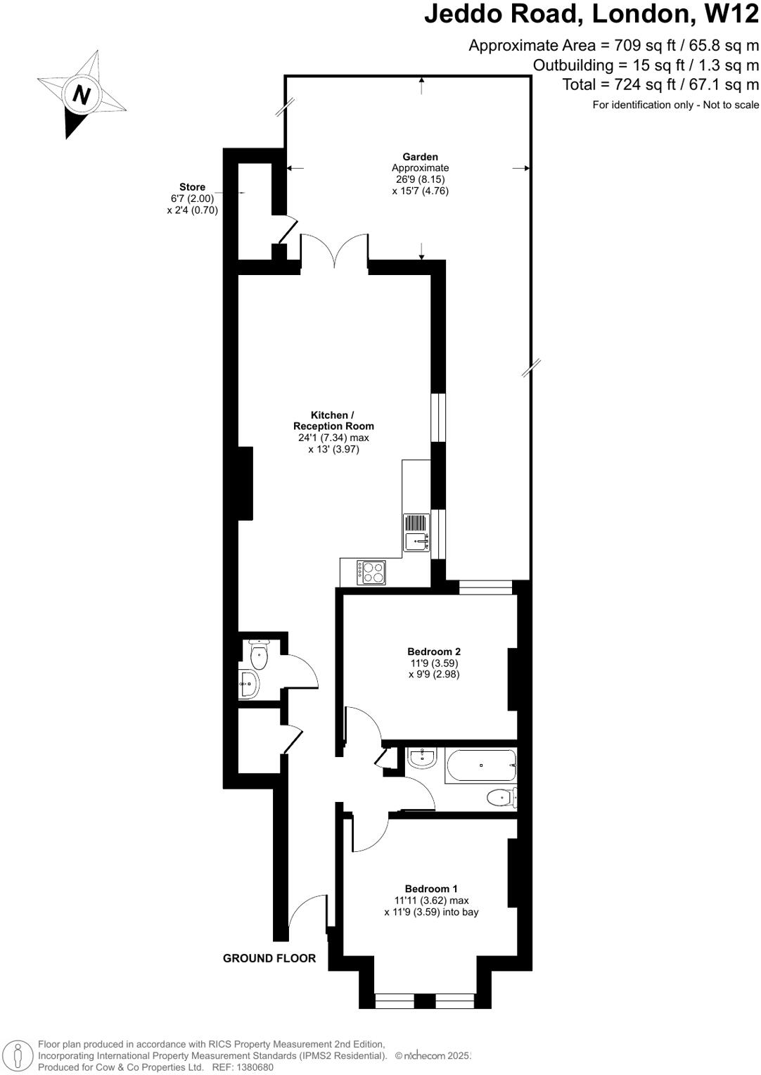
This well-presented two-bedroom ground-floor maisonette sits on a quiet, tree-lined road in Wendell Park. Generous rooms, high ceilings and large sash windows bring abundant natural light, while an open-plan modern kitchen provides practical everyday living and entertaining space. The private south-facing garden is a standout feature, offering direct outdoor access and a sunny spot for children or potted gardening.
The property offers two double bedrooms and one bathroom within about 732 sq ft — a comfortable layout for a small family or couple. Excellent local schools, nearby parks, and quick links to Shepherd's Bush, Hammersmith and Turnham Green make the location practical for commutes and family life. Broadband and mobile signal are strong, and flood risk is very low.
Important practical points: the maisonette is leasehold and sits in a Victorian mid-terrace built circa 1900–1929 with solid brick walls. There is no known built-in wall insulation (assumed), so buyers should consider potential energy-efficiency improvements and associated costs. Council tax is moderate and there is a single bathroom, which may be a consideration for larger households.
Overall this home blends period character with modern fittings and a rare private south-facing garden for the area. It will suit buyers seeking light-filled rooms, outdoor space and proximity to reputable local schools, while those sensitive to running costs or needing more bathrooms should factor in potential upgrades.
2 bedroom maisonette for sale in Emlyn Road, Wendell Park, Shepherds Bush, W12 — £600,000 • 2 bed • 1 bath • 707 ft²
2 bedroom maisonette for sale in Hartswood Road, Wendell Park, Shepherd's Bush, W12 — £675,000 • 2 bed • 1 bath • 789 ft²
2 bedroom ground floor flat for sale in Jeddo Road W12 — £795,000 • 2 bed • 1 bath • 1033 ft²
2 bedroom maisonette for sale in Aylmer Road, Wendell Park, Shepherd's Bush, W12 — £610,000 • 2 bed • 1 bath • 758 ft²
4 bedroom maisonette for sale in Jeddo Road W12 — £950,000 • 4 bed • 2 bath • 1453 ft²
2 bedroom maisonette for sale in Emlyn Road, London, W12 — £575,000 • 2 bed • 1 bath • 737 ft²










































































