Spacious four-bed near station and good schools.
Frontal elevated views over central green
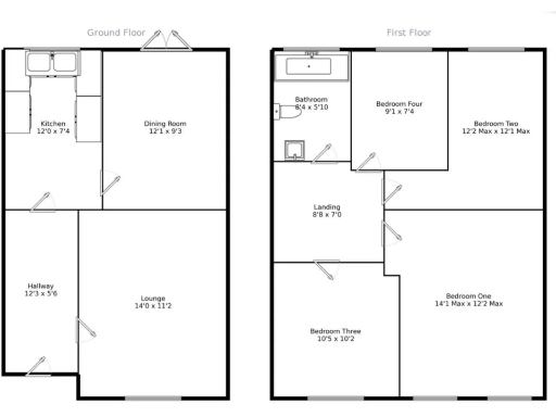
This four-bedroom mid-terrace sits on Mount Road with elevated frontal views across a central green. The house offers practical family accommodation over multiple floors, two reception rooms, a fitted kitchen and a single modern bathroom. Outside there are both front and rear gardens with side and rear access and a decent overall plot for the area.
The property needs renovation and currently has an EPC Grade G; solid brick walls are assumed to be uninsulated and some updating will be required. It is let on an AST at £2,500pcm, creating immediate rental income for a buy-to-let purchaser, but the accommodation and EPC rating will limit some mortgage and energy-improvement costs until upgraded.
Location is a strong selling point: about 0.5 miles from Chessington North mainline station with direct services to London Waterloo, and within half a mile of three primary schools rated Good. Broadband and mobile signal are excellent and the neighbourhood records low crime and generally affluent indicators, making it attractive to families and investors alike.
This lot will be sold at auction (10 December 2025) and is offered freehold. Buyers should budget for refurbishment work, potential insulation and energy-efficiency improvements, and factor the single bathroom into space planning for a four-bedroom house. The property suits a hands-on family buyer or an investor seeking immediate rental income with scope to add value.
3 bedroom terraced house for sale in Cheshire Gardens, Chessington, KT9 — £425,000 • 3 bed • 1 bath • 943 ft²
2 bedroom flat for sale in 189 Moor Lane, Chessington, Surrey, KT9 2AB, KT9 — £125,000 • 2 bed • 1 bath • 624 ft²
1 bedroom flat for sale in 96A Gilders Road, Chessington, Surrey, KT9 2AN, KT9 — £115,000 • 1 bed • 1 bath • 450 ft²
3 bedroom semi-detached house for sale in Grange Road, Chessington, Surrey, KT9 — £475,000 • 3 bed • 1 bath • 994 ft²
3 bedroom terraced house for sale in Babbacombe Close, Chessington, Surrey. KT9 — £515,000 • 3 bed • 1 bath • 1045 ft²
2 bedroom semi-detached house for sale in The Causeway, Chessington, KT9 — £325,000 • 2 bed • 1 bath • 631 ft²


































