Probate two-bed with garden; ideal for cash buyers or investor developers.
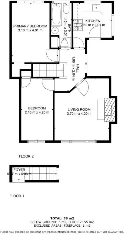
First-floor two-bedroom flat, approximately 624 sq ft
Requires full refurbishment throughout; dated fixtures and wear
Lease approx. 61 years remaining — lenders may refuse mortgages
To be sold at public auction; probate sale by executors
Communal gardens plus private rear garden included
Close to Chessington North station and local parks
Very affluent area with fast broadband and excellent mobile signal
Potential lease extension cost and process will add expense
A vacant first-floor two-bedroom flat in a 1930s semi-detached building, offered at auction with a guide price of £125,000+. The property extends to about 624 sq ft and includes a reception room, kitchen, bathroom, communal gardens and a private rear garden. It sits in a very affluent, family-oriented area close to Chessington North station and local parks.
The flat requires a full program of refurbishment and presents clear scope for value-added renovation or rental reconfiguration. Buyers should factor in repair costs and estimated work on dated fixtures and finishes; images and inspection notes indicate wear, dated heating, and original floorboards.
Important legal and financing matters affect this sale. The lease has approximately 61 years unexpired — mortgage lenders may refuse to lend, and any buyer wanting a longer lease will need to pursue a formal lease extension (Section 42) and pay a premium to the freeholder. The sale is by public auction and is a probate sale; bidders should review the legal pack and consider the auction timetable and conveyancing implications.
This opportunity suits cash buyers, experienced investors, or developers comfortable with lease-extension processes and refurbishment projects. The location, nearby good and outstanding schools, fast broadband and excellent mobile signal support either rental demand or resale after improvement.
1 bedroom flat for sale in 96A Gilders Road, Chessington, Surrey, KT9 2AN, KT9 — £115,000 • 1 bed • 1 bath • 450 ft²
2 bedroom flat for sale in 148A Ewell Road, Surbiton, Surrey, KT6 6HE, KT6 — £160,000 • 2 bed • 1 bath • 839 ft²
2 bedroom flat for sale in Leatherhead Road, Chessington, KT9 — £164,000 • 2 bed • 1 bath • 700 ft²
2 bedroom flat for sale in Flat 4 Elveden Court, Epsom Road, Leatherhead, Surrey, KT22 8TD, KT22 — £100,000 • 2 bed • 1 bath • 349 ft²
2 bedroom ground floor flat for sale in 22 Chessington Hall Gardens, Chessington, Surrey. KT9 2HH, KT9 — £265,000 • 2 bed • 1 bath • 597 ft²
1 bedroom flat for sale in Flat 2 Park House, 87 Burlington Road, New Malden, Surrey, KT3 4LP, KT3 — £150,000 • 1 bed • 1 bath • 366 ft²


























































