**Standout Features:**
- Detached new build with approved planning for a modern two-storey dwelling.
- Large plot with ample off-street parking and landscaped garden.
- Stunning elevated position offering expansive views of Criccieth Castle and the sea.
- Chain-free sale, ensuring a smooth buying process.
- Excellent mobile signal and fast broadband, perfect for remote working.
**Potential Concerns:**
- Located in a very deprived area, which may be a consideration for some buyers.
- Ongoing development from the approved planning application; construction phase may impact during initial settling period.
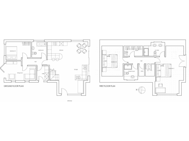
This unique opportunity presents a prime building plot in a tranquil coastal town, ideal for investors or families seeking a slice of scenic Welsh living. The approved two-storey detached plan includes three spacious bedrooms, two bathrooms, and an open-plan living space designed to maximize the breathtaking views. Imagine evenings spent in your landscaped garden, soaking in the peaceful ambiance and historical charm of the area.
While the locality shows signs of economic challenges, the potential for development and future appreciation makes this a strategic investment. Additionally, advantages like excellent connectivity and proximity to key towns like Porthmadog and Pwllheli make this property a compelling choice. Don’t miss out on this rare chance to create your dream home in a picturesque setting—seize the opportunity before it slips away!







































