**Standout Features:**
- Sought-after cul-de-sac location in Humberston
- Significantly enlarged detached dormer bungalow
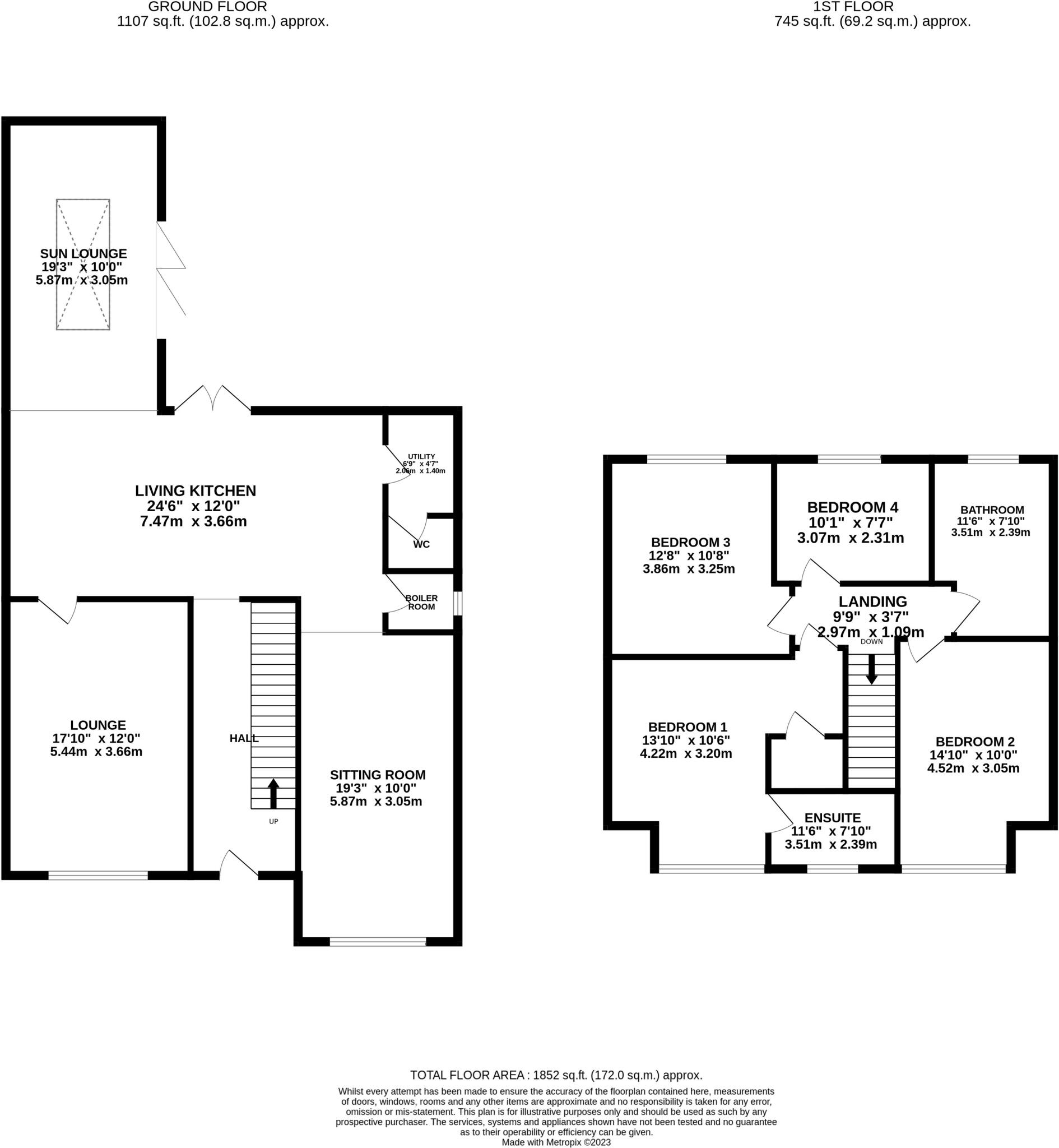
- Modern open-plan Living Kitchen with large center island and sun lounge
- Four spacious bedrooms, including a principal suite with walk-in wardrobe
- Impressive designer bathrooms
- Underfloor heating on ground floor
- Private and well-maintained rear garden
- Fast broadband speeds and excellent mobile signal
**Potential Concerns:**
- Above average crime rate in the area
Experience contemporary living in this stunning four-bedroom detached dormer bungalow nestled in a serene cul-de-sac in Humberston. The heart of the home revolves around an impressive open-plan Living Kitchen, seamlessly incorporating a sun lounge that floods the space with natural light and extends to a delightful outdoor area through bifold doors. Each of the four well-proportioned bedrooms offers comfort, with a luxurious principal suite featuring a walk-in wardrobe and a sleek ensuite.
The modern aesthetic is complemented by bespoke bathrooms that evoke a sense of relaxation and style. Outside, enjoy a private garden designed for low maintenance, ideal for enjoying the outdoors. This property not only meets the needs of family living with its spacious layout but also presents endless possibilities for future enhancements.
Situated in a community-friendly area, this home is perfect for first-time buyers or families looking for a blend of comfort and modern design. However, be mindful of the above-average crime rate in the local area. Don't miss out on the chance to own this exceptional property—arrange your viewing today and envision your future here.
4 bedroom detached house for sale in Alder Avenue, Humberston, Grimsby, DN36 — £335,000 • 4 bed • 2 bath • 1563 ft²
3 bedroom detached house for sale in Oderin Drive, New Waltham, Grimsby, DN36 — £315,000 • 3 bed • 1 bath • 1212 ft²
3 bedroom semi-detached house for sale in Forest Way, Humberston, DN36 — £220,000 • 3 bed • 1 bath • 806 ft²
4 bedroom detached bungalow for sale in Humberston Avenue, Humberston, Grimsby, DN36 — £660,000 • 4 bed • 2 bath • 3795 ft²
4 bedroom detached house for sale in The Birches, Humberston, DN36 — £430,000 • 4 bed • 2 bath • 1518 ft²
4 bedroom detached house for sale in Cheltenham Way, Cleethorpes, N.E. Lincs, DN35 0UG, DN35 — £475,000 • 4 bed • 2 bath • 1304 ft²










































































