Spacious three-bedroom close to excellent schools and private landscaped gardens.
Backing directly onto woodland – private garden outlook
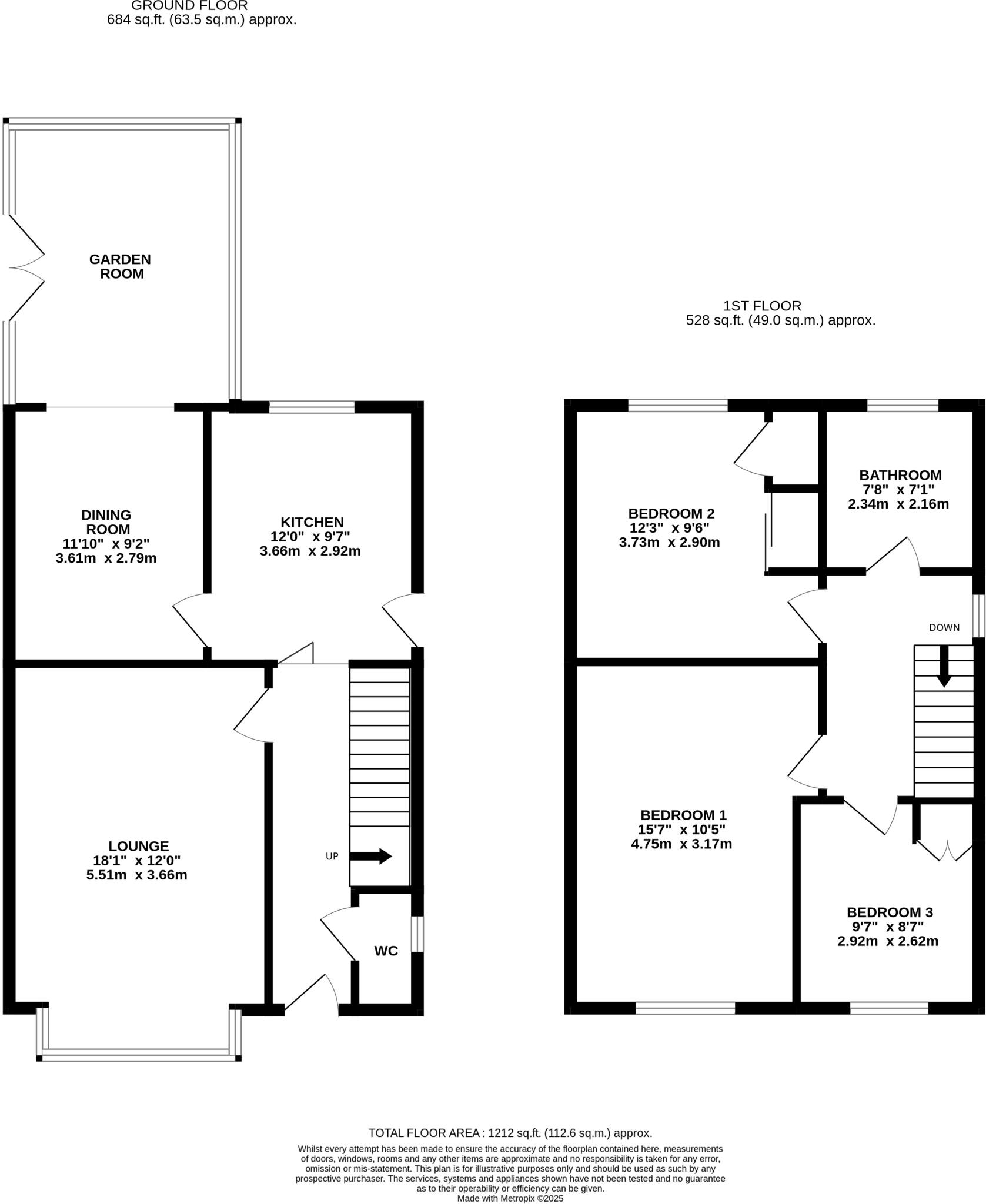
Vaulted garden room with high beamed ceiling and French doors
Shaker kitchen with quartz worktops and quality appliances
Solid wood floors, refurbished cloakroom and high-quality finishes
Attached single garage, sett driveway and gated entrance
Single family bathroom only; no en-suite provision
Boiler located in bedroom two airing cupboard — check condition
Built circa 1996–2002; double glazing and gas central heating
Set directly backing onto a small woodland, this detached three-bedroom home combines privacy with a well-designed family layout. The ground floor features a large lounge, a shaker-style kitchen with quartz worktops and quality appliances, and a vaulted garden room that floods the rear with light. Solid wood floors and refurbished cloakroom add to the sense of careful upkeep.
Upstairs are three generous bedrooms and a fully tiled bathroom with separate shower cubicle; bedroom two includes bespoke fitted wardrobes and an airing cupboard housing the boiler. There is an attached single garage, a smart sett driveway and professionally landscaped front and rear gardens offering multiple patio and entertaining spaces overlooking mature trees.
Built around 1996–2002 and fitted with modern double glazing and gas central heating, the property sits in a very low-crime, affluent, small-town setting with excellent mobile signal and fast broadband. Local schools include several well-rated primaries and an outstanding secondary, making this particularly suitable for families.
Practical points to note: there is a single family bathroom, and the boiler is located in a bedroom airing cupboard (buyer to verify condition). While the house has been well maintained and upgraded in many areas, buyers seeking a fully modernised utility layout or additional bathrooms may want to allow budget for changes.
3 bedroom detached house for sale in Woodrow Park, Scartho, Grimsby, DN33 — £385,000 • 3 bed • 2 bath • 1756 ft²
4 bedroom detached house for sale in Fairway Drive, Humberston, Grimsby, DN36 — £415,000 • 4 bed • 3 bath • 2208 ft²
3 bedroom detached house for sale in Anderby Drive, Willows, Grimsby, DN37 — £209,950 • 3 bed • 1 bath • 1131 ft²
3 bedroom semi-detached house for sale in Weelsby Road, Grimsby, DN32 — £325,000 • 3 bed • 2 bath • 1624 ft²
4 bedroom detached house for sale in Brunel Close, Grimsby, DN32 — £285,000 • 4 bed • 2 bath • 1631 ft²
3 bedroom detached bungalow for sale in Beckhythe Close, Scartho, Grimsby, DN33 — £395,000 • 3 bed • 2 bath • 1912 ft²






























































