Spacious period building with conversion potential — 4,600 sq ft on a large central plot..
8 bedrooms across three floors, approx. 4,600 sq ft
Georgian-period features: high ceilings, sash windows, symmetrical façade
Large driveway with off-street parking and generous plot
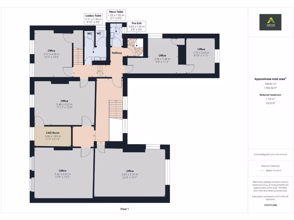
Currently commercial offices — conversion to residential requires planning
Two kitchens and multiple WCs ideal for flexible layouts or apartments
Electric heating only — higher running costs than gas
High local crime rate; mixed socio-economic area context
Significant refurbishment likely; investment or development required
An imposing three-storey Georgian-style building offering approximately 4,600 sq ft on a large plot in the town centre. Currently configured as commercial offices, the layout includes many large rooms, two kitchens and multiple WC facilities — a flexible shell with clear potential for conversion to a substantial residential property, subject to relevant planning permission.
Period features such as high ceilings, sash windows and symmetrical brick façades give the house strong character and appeal for buyers wanting a distinguished town residence. The plot includes a spacious driveway and off-street parking, a rare convenience in this central location, and the property sits within easy reach of major routes (A50, A38, M6) and local schools rated Good–Outstanding.
Important practical considerations: the building currently uses electric heating (higher running costs than gas) and will require planning permission and likely significant internal refurbishment to convert from commercial to residential. There is no flooding risk, but the local crime level is reported as high and the wider socio-economic classifications indicate mixed local prospects, so suitability will depend on buyer priorities.
This opportunity will suit an investor or buyer with appetite for renovation and planning work — those seeking to create a grand multi-bedroom family home or multiple residential units (subject to planning) will find considerable square footage and period character to work with. The property is freehold and centrally located, offering scope for long-term value uplift if conversion and refurbishment are managed carefully.
House for sale in High Street, Uttoxeter, ST14 — £795,000 • 1 bed • 1 bath • 7587 ft²
Commercial property for sale in Eastfield, Church Street, Uttoxeter, ST14 — £795,000 • 5 bed • 5 bath • 4600 ft²
2 bedroom town house for sale in New Street, Uttoxeter, Staffordshire, ST14 — £230,950 • 2 bed • 2 bath • 1642 ft²
Commercial property for sale in 25 Church Street, Ashbourne, Derbyshire, DE6 — £299,000 • 1 bed • 1 bath • 3000 ft²
5 bedroom detached house for sale in Deanshill Close, Stafford, ST16 — £575,000 • 5 bed • 2 bath • 2530 ft²
Commercial property for sale in Etruria Road, Stoke-On-Trent, Staffordshire, ST4 — £600,000 • 1 bed • 3 bath • 3500 ft²










































































































































































