Five-bed detached home with large gardens, double garage and countryside views — ideal for growing families..
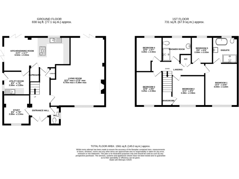
Five bedrooms including main with ensuite
Large kitchen/dining with bi-fold doors to garden
Sitting room with wood-burning stove and bi-fold doors
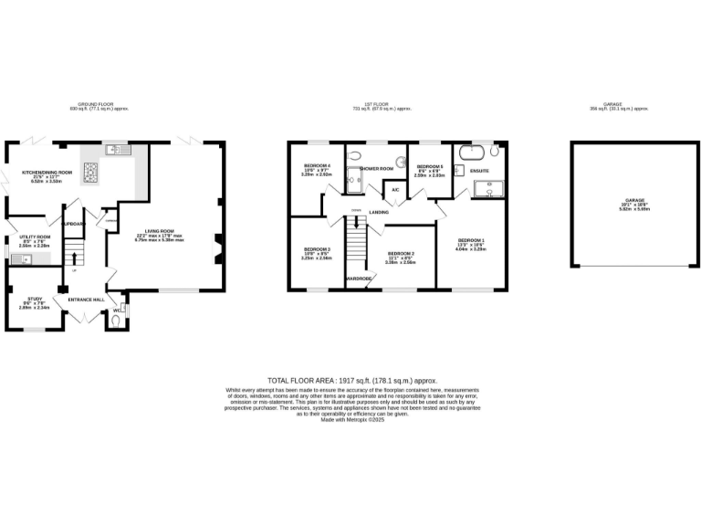
Recently built double garage and extensive driveway parking
Large southerly garden with decking, circa 0.2 acre
Gas central heating and double glazing throughout
Slow broadband and average mobile signal locally
Council tax banding described as expensive
Set on the edge of Hatch Beauchamp, this five-bedroom detached house sits in roughly 0.2 acres with southerly views over open countryside. The ground floor offers generous living space including a sitting room with wood-burning stove and bi-fold doors, a large kitchen/dining room with bi-folds to the garden, plus a study/snug and utility. Upstairs the main bedroom has an ensuite and four further bedrooms share a family shower room — flexible space for family life or home working.
Outdoor space and parking are strong practical features: a large landscaped garden with decking provides alfresco dining and play space, while an extensive driveway and a recently constructed double garage offer plentiful parking and storage. Gas central heating and double glazing are in place; the home appears well maintained and move-in ready for most buyers.
Practical drawbacks to note: broadband speeds are slow in the area and mobile signal is only average. Council tax is described as expensive. The village primary school has an Ofsted rating of "Requires improvement," although several nearby primary and independent schools have Good or Outstanding ratings. The property's rural setting suits buyers who value space and countryside views but may not suit those needing high-speed connectivity or town-centre convenience.
5 bedroom detached house for sale in Home Orchard, Hatch Beauchamp, Taunton, Somerset, TA3 — £600,000 • 5 bed • 2 bath • 1701 ft²
4 bedroom detached house for sale in Home Orchard, Hatch Beauchamp, TA3 — £515,000 • 4 bed • 2 bath • 1550 ft²
5 bedroom detached house for sale in Station Green, Bishops Lydeard, Taunton, Somerset, TA4 — £520,000 • 5 bed • 4 bath • 657 ft²
4 bedroom detached house for sale in Lipe Lane, Henlade, 1 Acre, TA3 — £825,000 • 4 bed • 3 bath • 2467 ft²
4 bedroom detached house for sale in West Street, Stoke-Sub-Hamdon - MUST BE VIEWED INTERNALLY, TA14 — £530,000 • 4 bed • 2 bath • 1324 ft²
4 bedroom detached house for sale in Bruford Drive, Cheddon Fitzpaine, Taunton, Somerset, TA2 — £425,000 • 4 bed • 2 bath • 1283 ft²














































































































































