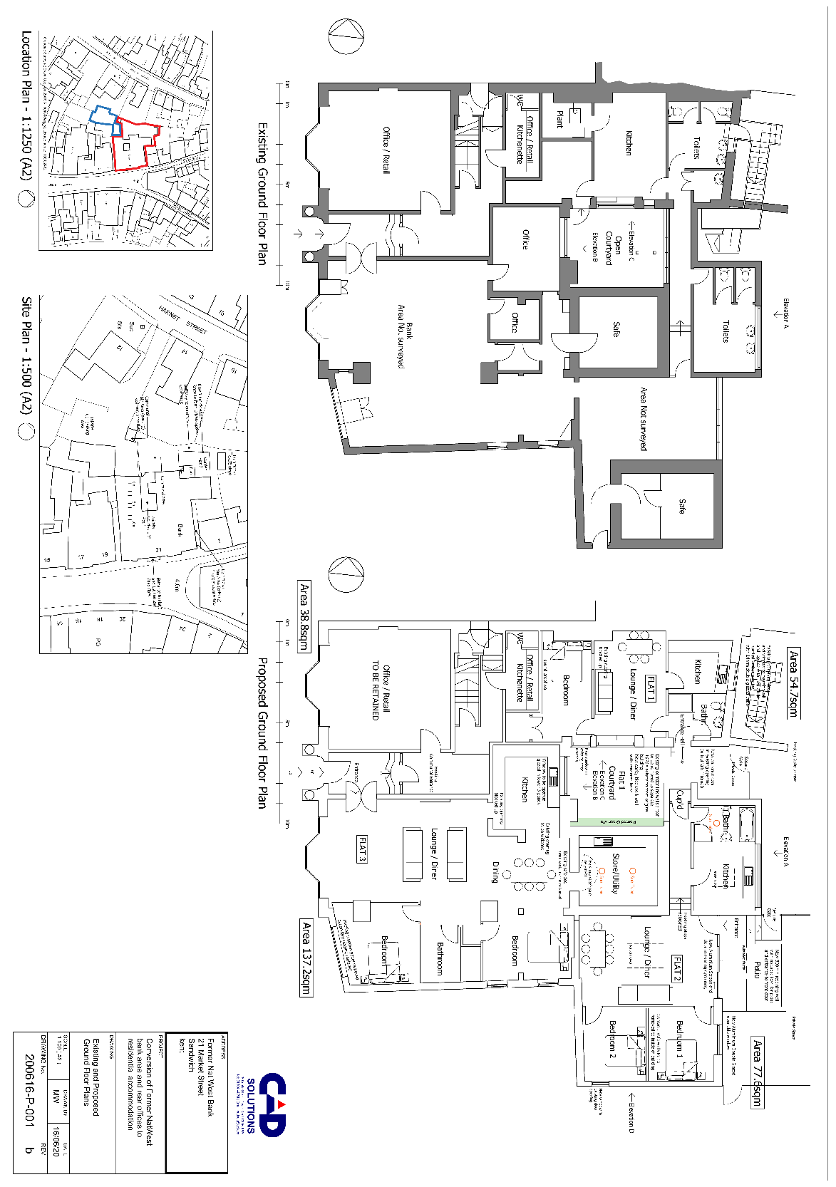
**Standout Features:**
- Grade II Listed Georgian townhouse with historic architecture
- Impressive size of approximately 3,319 square feet
- High ceilings and large room dimensions throughout
- Previously used as a banking hall with commercial potential
- Enclosed rear garden and parking space available (may require negotiation)
- Central location with amenities, shops, and schools nearby
- Excellent mobile signal and average broadband speeds
**Potential Concerns:**
- Property requires renovation and significant work to convert for residential use
- High crime rate in the area may be a consideration for some buyers
This captivating Georgian townhouse at 21 Market Street in the historic town of Sandwich offers a unique opportunity for those looking to invest in a blend of residential and commercial potential. With its expansive layout of approximately 3,319 square feet, the building boasts high ceilings, large rooms, and classic period features that promise a historic charm. The enclosed rear garden and off-street parking add to its appeal, making this property a canvas for your creative vision—whether you aim to convert it into a stunning home or a dynamic commercial space.
Nestled in a vibrant town with easy access to shops, schools, and cultural attractions, this property offers the best of both worlds. While it does require renovation and comes with a high crime rate concern, its notable size and location can be leveraged to create a desirable living or investment space in a sought-after area. Potential buyers should act quickly to seize this rare opportunity in the heart of a flourishing medieval town.
3 bedroom maisonette for sale in King Street, Sandwich, CT13 — £425,000 • 3 bed • 2 bath • 2429 ft²
Property for sale in Market Street, Sandwich, Kent, CT13 — £325,000 • 1 bed • 1 bath • 1416 ft²
4 bedroom end of terrace house for sale in Sandwich, CT13 — £499,000 • 4 bed • 2 bath • 1842 ft²
6 bedroom detached house for sale in Delf Street, Sandwich, Kent, CT13 — £1,625,000 • 6 bed • 4 bath • 4079 ft²
3 bedroom end of terrace house for sale in Upper Strand Street, Sandwich, Kent, CT13 — £550,000 • 3 bed • 2 bath • 1425 ft²
3 bedroom maisonette for sale in Cattle Market, Sandwich, Dover, CT13 — £380,000 • 3 bed • 1 bath • 1932 ft²


































