**Key Features:**
- Established freehouse in the quaint village of Halberton, near Tiverton
- Character-filled main bar and 70-seater vaulted restaurant
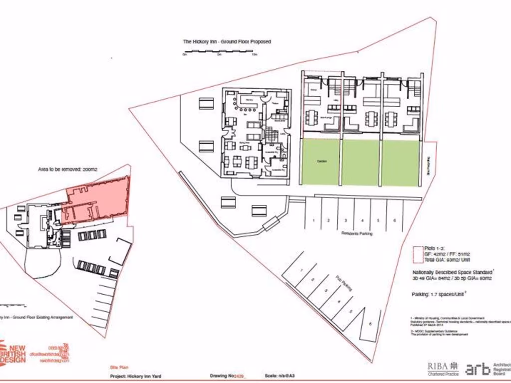
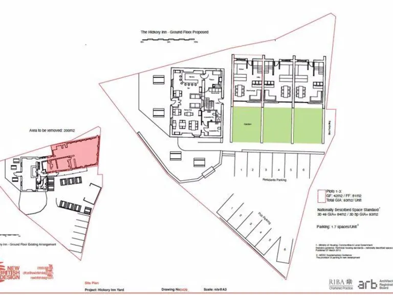
- Expansive owner's accommodation with potential to convert into two flats
- Unique outdoor seating arranged in individual timber cabins
- Large car park, ensuring ample visitor parking
- Positive pre-planning application for potential residential development
- Strong community ties with low crime rates and good local schools
**Summary:**
Discover The Hickory Inn, a substantial and well-established freehouse nestled in the charming village of Halberton, just a short distance from Tiverton. This historic two-storey property boasts a character main bar and an impressive vaulted restaurant that comfortably seats 70, making it perfect for hosting gatherings. The generous owner's accommodation presents a chance to split into two flats, opening up various living options. Enjoy outdoor leisure with unique seating arrangements in timber cabins among lush greenery, coupled with a large car park to accommodate a steady flow of visitors.
Set in a community-focused area, this pub captures the heart of rural Devon life and offers positive potential for further development, including residential opportunities. With a proven turnover of £400,187 (ex VAT) for the year ending March 2023 and an immediate catchment area of affluent villages, this property holds exceptional investment potential. Don't miss this unique opportunity to own a piece of historic charm while envisioning future possibilities.
Pub for sale in Barley Mow Inn, 97 Barrington Street, Tiverton, Devon, EX16 — £165,000 • 1 bed • 1 bath • 3049 ft²
Pub for sale in The Redwoods Inn, Uplowman, Tiverton, EX16 7DP, EX16 — £490,000 • 7 bed • 1 bath • 1766 ft²
Commercial development for sale in EX16 — £490,000 • 1 bed • 1 bath
Pub for sale in Bullen Street, EX5 — £335,000 • 4 bed • 1 bath • 18090 ft²
Pub for sale in The Blacksmith's Arms, Plymtree, Cullompton, Devon EX15 2JU, EX15 — £462,000 • 3 bed • 1 bath • 2423 ft²
Pub for sale in The Quarryman's Rest, Briton Street, Bampton, Tiverton, Devon EX16 9LN, EX16 — £450,000 • 7 bed • 1 bath • 5382 ft²










































































