Spacious family home with large garden and excellent commuter links.
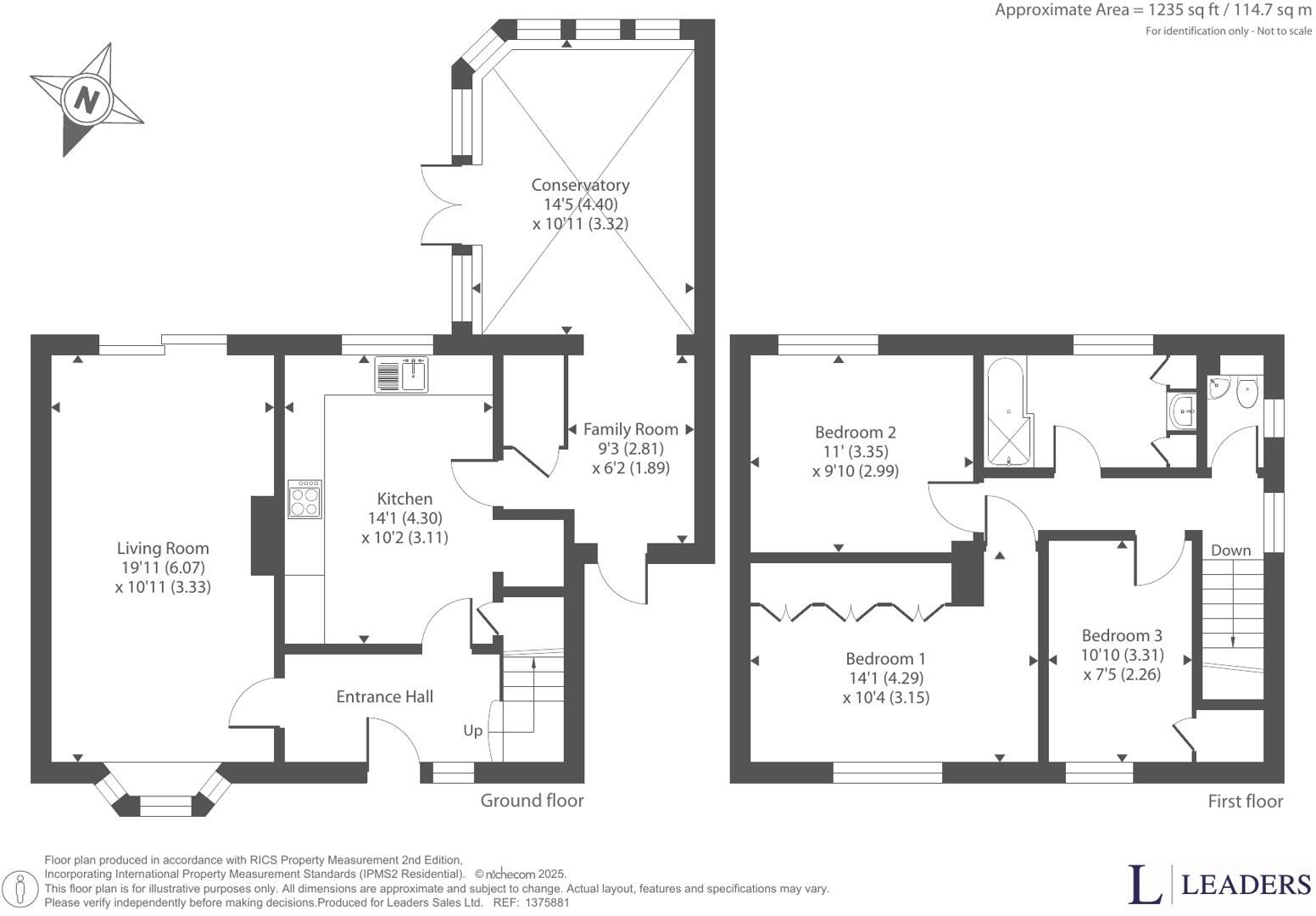
- Three bedrooms with family-friendly layout
- Large private rear garden with mature trees
- Conservatory adds extra living space and light
- Freehold tenure; garage potential on plot
- About 1,235 sq ft across two storeys
- Single bathroom only; one bath/shower facility
- Area records above-average crime rates
- Close to Stevenage station and good schools
Set in Old Town Stevenage, this three-bedroom semi-detached home offers a generous rear garden and well-proportioned living space across two floors. The conservatory brings extra light and a pleasant view over the private, mature garden — ideal for children or weekend entertaining. At about 1,235 sq ft, the layout suits a growing family seeking space close to town amenities.
Practical benefits include freehold tenure, a decent plot with garage potential, and fast broadband plus excellent mobile signal for working from home. Local schools rank highly (including an Outstanding infant school and several Good-rated primaries and secondaries), and Stevenage railway station is within easy reach for commuter links.
Notable points to consider: the house has a single bathroom, and the area records above-average crime levels compared with national figures. The property reflects post‑war suburban construction; while functional, interiors could be modernised to suit contemporary tastes. Flood risk is low. These factors make the home suitable for families wanting space and location with straightforward improvement potential.
3 bedroom semi-detached house for sale in Walkern Road, STEVENAGE, Hertfordshire, SG1 — £500,000 • 3 bed • 1 bath • 1217 ft²
3 bedroom semi-detached house for sale in Walkern Road, Stevenage, SG1 — £500,000 • 3 bed • 1 bath • 1400 ft²
2 bedroom semi-detached house for sale in Orchard Crescent, Stevenage, SG1 — £475,000 • 2 bed • 1 bath • 1259 ft²
3 bedroom semi-detached house for sale in Ellis Avenue, Stevenage, SG1 — £350,000 • 3 bed • 1 bath • 780 ft²
3 bedroom end of terrace house for sale in Ellis Avenue, Stevenage, SG1 — £325,000 • 3 bed • 1 bath • 714 ft²
4 bedroom detached house for sale in Fresson Road, Stevenage, Hertfordshire, SG1 — £595,000 • 4 bed • 3 bath • 1325 ft²


































































































