Compact, ready-to-move property ideal for first purchases or rental income..
- Newly renovated interior with modern kitchen fittings
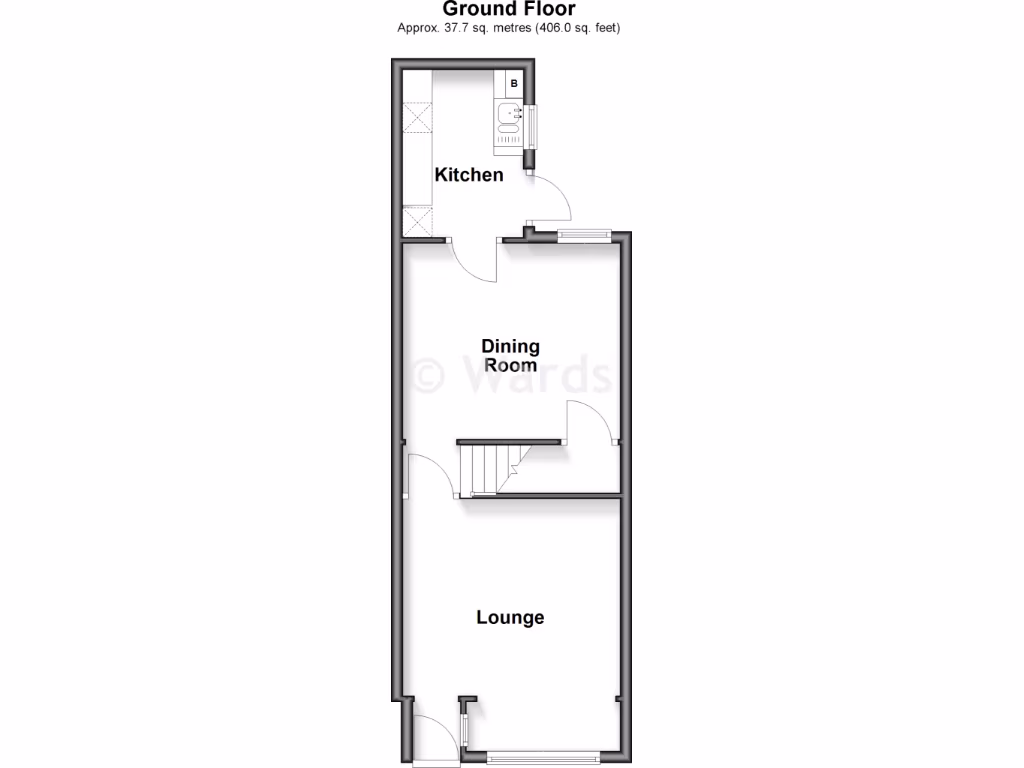
- Two bedrooms, one bathroom; approx 743 sq ft total
- Chain free and low council tax band
- Small private rear garden
- Solid brick construction; likely no cavity insulation
- Area classified as deprived; local crime levels are high
- Double glazing installed before 2002
- Excellent mobile signal and fast broadband speeds
This newly presented two-bedroom Victorian mid-terrace on Harold Road offers a compact, move-in-ready layout suited to first-time buyers or buy-to-let investors. The property has been recently renovated inside with a modern kitchen and refreshed finishes, while retaining period brick character to the exterior. Chain free sale and low council tax make it straightforward and economical to occupy or let.
Practical benefits include double glazing (installed before 2002), mains gas boiler with radiators, excellent mobile signal and fast broadband — useful for remote working or tenants. There is a small private garden and the house sits in a convenient urban location with nearby shops, Tesco Express, pubs and regular bus links.
Buyers should note the wider area is classified as deprived with higher local crime levels and constrained renting demographics; this influences resale and rental profiles. The property’s solid brick walls are likely uninsulated and it has a small footprint (approximately 743 sq ft), so further insulation or energy-efficiency improvements could be considered. No flood risk is recorded.
Local schooling includes several well-rated primary and secondary options, such as Canterbury Road Primary and Highsted Grammar nearby. Overall this is a practical, affordable home for a first move or a compact rental asset for investors willing to accept local area considerations.
2 bedroom terraced house for sale in Harold Road, Sittingbourne, ME10 — £240,000 • 2 bed • 1 bath • 678 ft²
3 bedroom terraced house for sale in Harold Road, Sittingbourne, Kent, ME10 — £190,000 • 3 bed • 1 bath • 795 ft²
2 bedroom terraced house for sale in Castle Road, Chatham, Kent, ME4 — £180,000 • 2 bed • 1 bath • 610 ft²
2 bedroom terraced house for sale in Goodnestone Road, Sittingbourne, Kent, ME10 — £165,000 • 2 bed • 1 bath • 732 ft²
2 bedroom terraced house for sale in Castle Road, Chatham, ME4 — £190,000 • 2 bed • 1 bath • 560 ft²
2 bedroom terraced house for sale in North Street, Sittingbourne, Kent, ME10 — £240,000 • 2 bed • 1 bath • 636 ft²










































