Striking historic shell with planning consent — convert to a unique one-bed home.
Full planning permission approved for one-bedroom conversion (ref 24/01372/FUL)
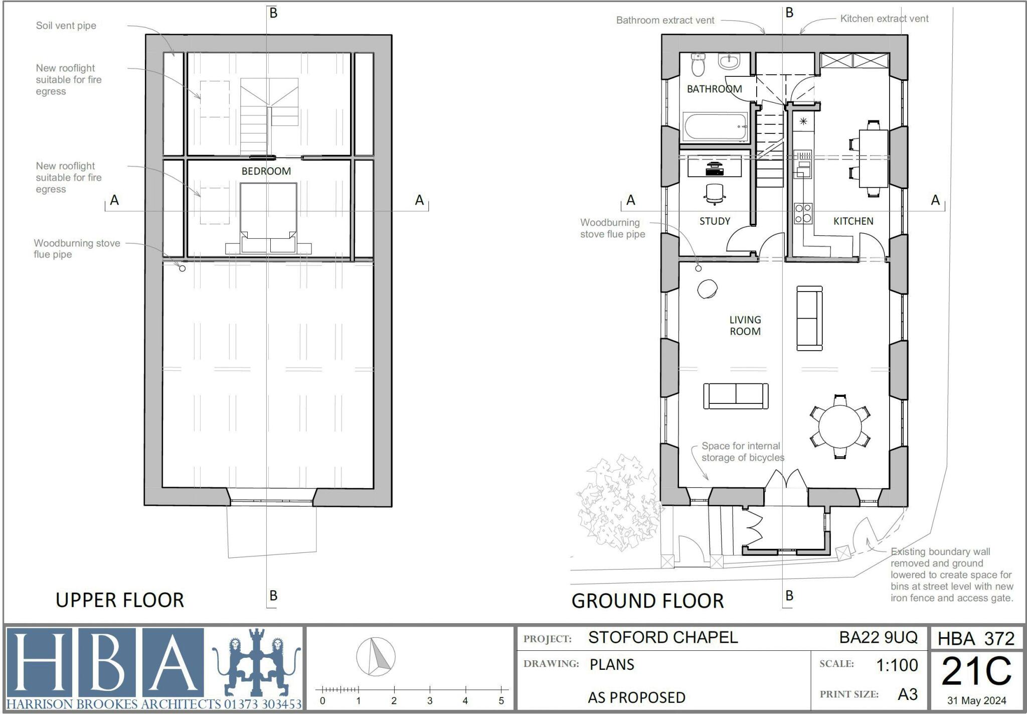
A rare conversion opportunity: a Gothic Revival former Methodist chapel with full planning permission (24/01372/FUL) to create a one-bedroom home. The approved scheme keeps the building’s dramatic vaulted space, adds two rooflights and a flue, and defines a layout with living room (wood-burning stove), kitchen/dining, study, ground-floor bathroom and first-floor bedroom with roof windows. This makes the property straightforward to develop to a finished residence or let-ready unit.
The stone construction, arched stained-glass windows and high ceilings are the main selling points, offering strong character and visual appeal once converted. Practical details are already resolved on paper, but the building will require conversion works, likely insulation upgrades (walls assumed uninsulated) and fit-out to modern standards. Heating is oil-fired via boiler and radiators; double glazing is present but install date is unknown.
Important risks and costs are clear: the lot is sold FREEHOLD at auction, so purchasers should review the legal pack before bidding. The site is in an area with medium flood risk and local area deprivation indicators, which can affect insurance and resale. The plot is recorded as small, and the property predates 1900, so expect older construction maintenance and possible specialist masonry or roof work.
For investors or a DIY-focused buyer, this chapel offers distinctive curb appeal and approved planning that reduces pre-application uncertainty. Before bidding, obtain quotes for conversion, check flood/insurance implications, and review the legal pack for any constraints. The auction process means completion timetables and sale terms differ from standard private treaty sales.
Commercial property for sale in Court Lane, Yeovil, BA22 — £115,000 • 1 bed • 1 bath
3 bedroom detached house for sale in Higher Street, West Chinnock, Crewkerne, TA18 — £625,000 • 3 bed • 2 bath • 1951 ft²
2 bedroom semi-detached house for sale in Chapel Lane, South Barrow, Yeovil, Somerset, BA22 — £375,000 • 2 bed • 2 bath • 1056 ft²
Office for sale in Kingdom Hall, Eastland Road, Yeovil, Somerset, BA21 4EY, BA21 — £140,000 • 1 bed • 1 bath • 2115 ft²
4 bedroom detached house for sale in Main Street, Babcary, Somerton, Somerset, TA11 — £475,000 • 4 bed • 2 bath • 2700 ft²
Detached house for sale in Church Street, Martock, Somerset, TA12 — £250,000 • 1 bed • 1 bath • 2407 ft²


























































