KT8 1QS - 4 bed spacious family detached in Hurst Road, KT8 1QS

View on Property Piper

4 bedroom detached house for sale in Hurst Road, West Molesey, KT8

Summary - 432 HURST ROAD WEST MOLESEY KT8 1QS

4 bed 2 bath Detached

Moments from the Thames with garage, conservatory and easy-care garden.
Four double and single bedrooms, including en-suite
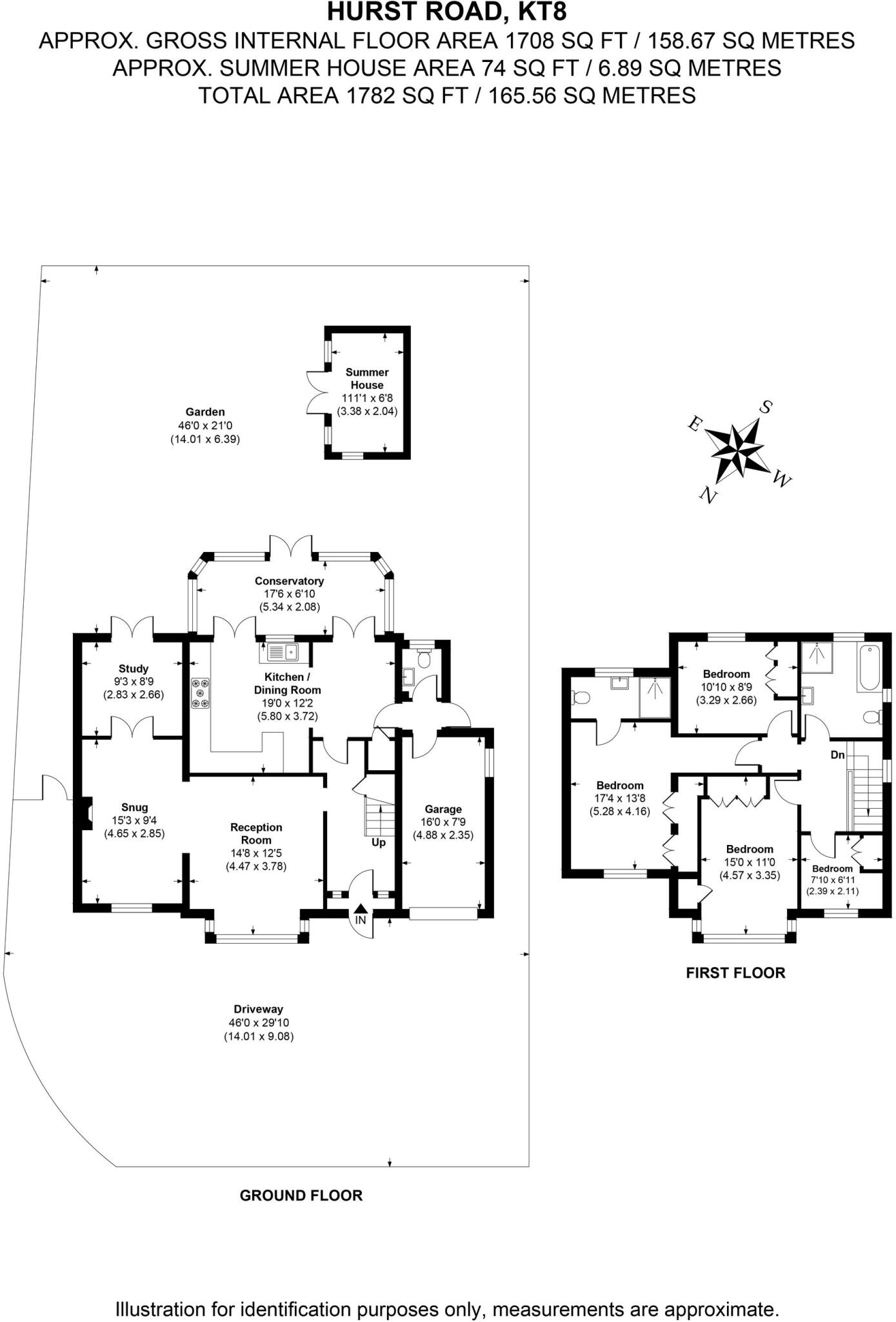
This well-proportioned four-bedroom detached home on Hurst Road suits a growing family seeking space, convenience and riverside proximity. The ground floor features a 19' kitchen/breakfast room that flows through a light-filled conservatory to a low-maintenance garden, plus an open-plan lounge/family room for everyday living and entertaining. Practical outside space includes a driveway, integral garage and artificial-grass patio ideal for children and barbecues.

Upstairs are three double bedrooms (one with en-suite) and a single bedroom that works as a nursery, guest room or home office. A four-piece family bathroom keeps mornings moving. The house totals about 1,782 sq ft, is freehold and sits in a very affluent area with excellent local schools and fast broadband — handy for homeworking and family life.

Notable practical points: the property dates from c.1930–49 with solid-brick walls and no known cavity insulation, the double glazing installation date is unknown, and the EPC is D. Council tax is described as expensive. These factors indicate scope for energy-performance improvements and modernisation to reduce running costs and add value.

Overall this is a comfortable, characterful family home in a strong KT8 location close to shops, transport and the Thames. Buyers wanting turn-key, highly efficient accommodation should budget for insulation and energy upgrades; those looking to add value will find clear potential.

Property Details

Image Descriptions

Floorplan Description

Rooms

Textual Property Features

Target Audience

AI Tags

Detected Visual Features

EPC Details

Nearby Schools

Nearest Bars And Restaurants

,,,,}

Nearest General Shops

,,}

Nearest Grocery shops

,,}

Nearest Supermarkets

,,}

Nearest Religious buildings

,,}

Nearest Medical buildings

,,,}

Nearest Airports

,}

Nearest Leisure Facilities

,,,,}

Nearest Tourist attractions

,,}

Nearest Train stations

,,,,}

Nearest Bus stations and stops

,,,,}

Nearest Hotels

,,}

Tags

Local Market Stats

AirBnB Data

Similar Properties

Meta

High Res Images

Compatible Images

Low res Images

Thumbnails

Raw Images

High Res Floorplan Images

Compatible Floorplan Images

Low res Floorplan Images

FloorplanImages Thumbnail

Raw Floorplan Images