Turnkey, furnished flat with parking and long lease ideal for buyers and investors.
South/Southwest-facing living room with abundant natural light
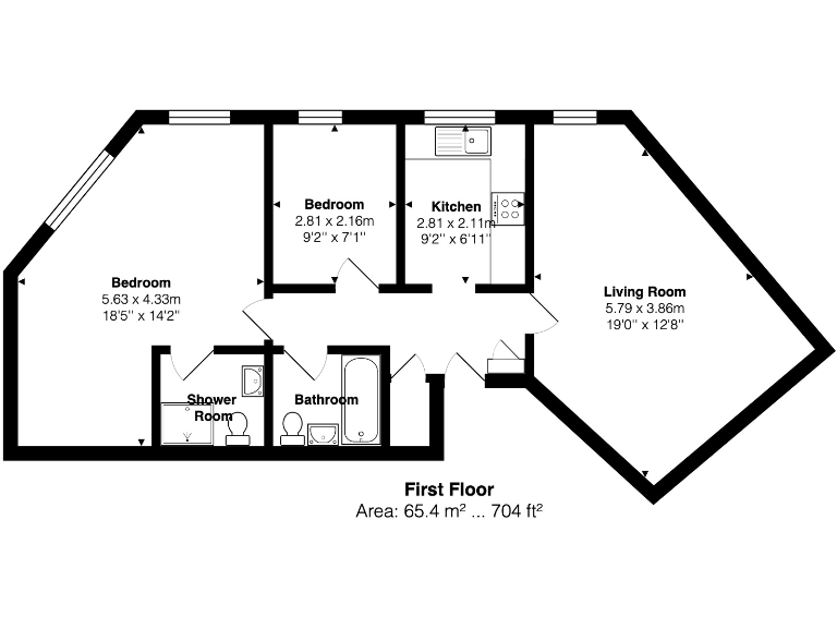
Bright, turnkey two-bedroom apartment in Brighton Marina Village, offered completely furnished and ready to move into. The flat has a generous living/dining room with south/southwest aspects that flood the main spaces with daylight, a modern fitted kitchen and a large master bedroom with en-suite. An allocated off-street parking space adds practical convenience for car owners.
The building benefits from 24-hour marina security, onsite management and a busy waterfront setting with cafés, shops, cinema and regular bus links into the city and mainline station. The 130-year lease provides long-term tenure, and the apartment’s compact, efficient layout suits first-time buyers, city commuters or those seeking a low-fuss second home.
Buyers should note the property uses individual electric heating and room heaters rather than gas central heating, which can affect running costs. The service charge (circa £3,780.48 p.a.) and a small ground rent (£150) cover communal maintenance, insurance and a reserve fund; factor these into budget calculations. Crime levels in the wider area are reported as high, so consider security and insurance needs.
Overall this is a well-presented, low-maintenance marina apartment with strong local amenities and good transport links. It offers immediate occupation potential or straightforward rental appeal, but prospective purchasers should weigh ongoing service charges and electric heating against the lifestyle benefits of a secure, central marina location.
2 bedroom flat for sale in Portside, Brighton Marina Village, Brighton, BN2 — £250,000 • 2 bed • 1 bath • 681 ft²
2 bedroom apartment for sale in Merton Court, Brighton Marina Village, Brighton, BN2 — £415,000 • 2 bed • 2 bath • 718 ft²
2 bedroom apartment for sale in Starboard Court, Brighton Marina Village, Brighton, BN2 — £335,000 • 2 bed • 2 bath • 756 ft²
1 bedroom apartment for sale in The Octagon, Brighton Marina Village, Brighton, BN2 — £285,000 • 1 bed • 1 bath • 519 ft²
3 bedroom apartment for sale in Neptune Court, Brighton Marina Village, Brighton, BN2 — £610,000 • 3 bed • 3 bath • 1183 ft²
2 bedroom apartment for sale in Merton Court, Brighton Marina Village, Brighton, BN2 — £365,000 • 2 bed • 2 bath • 736 ft²


































































