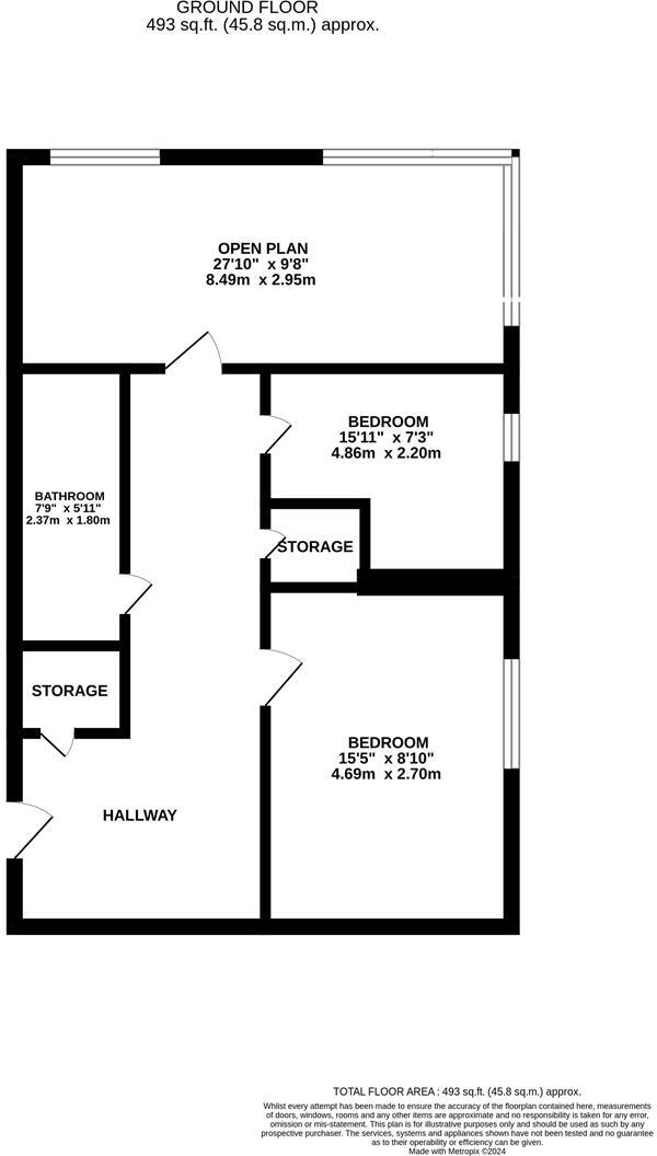
**Standout Features:**
- Spacious 2-bedroom apartment located on the 2nd floor with lift access
- Fully fitted kitchen and open-plan reception area
- Long 230-year lease providing peace of mind
- Allocated parking space for added convenience
- Nearby excellent transport links and local amenities
**Potential Concerns:**
- Located in a high-crime area; ongoing vigilance may be necessary
- Service charge of £1,250 may affect monthly budgeting
Discover an exceptional opportunity with this spacious 2-bedroom apartment in Gary Court, Croydon, perfect for first-time buyers or savvy investors. This well-maintained residence features a bright, modern open-plan living space, complemented by a fully fitted kitchen—ideal for entertaining or daily living. Enjoy the comfort of an allocated parking space and the benefits of a lengthy 230-year lease, ensuring minimal hassle for years to come.
Situated on bustling London Road, this apartment provides easy access to West Croydon train station and a wealth of local amenities, making it a highly desirable location for young families and students seeking connectivity and convenience. While the area has a notable crime rate, the urban views and dynamic neighborhood atmosphere may appeal to those wishing to immerse themselves in city life. Don't miss out on this fantastic property; schedule your viewing today to explore the lifestyle this apartment has to offer!
1 bedroom apartment for sale in London Road, Croydon, CR0 — £195,000 • 1 bed • 1 bath • 442 ft²
1 bedroom flat for sale in London Road, Croydon, CR0 — £190,000 • 1 bed • 1 bath • 504 ft²
1 bedroom flat for sale in London Road, Croydon, CR0 — £190,000 • 1 bed • 1 bath • 490 ft²
2 bedroom ground floor flat for sale in Scarbrook Road, Croydon, CR0 — £270,000 • 2 bed • 1 bath • 604 ft²
2 bedroom flat for sale in London Road, Croydon, CR0 — £230,000 • 2 bed • 1 bath • 699 ft²
2 bedroom flat for sale in London Road, Croydon, CR0 — £220,000 • 2 bed • 1 bath • 614 ft²










































