Extended family house with garden, parking and loft bedroom close to schools.
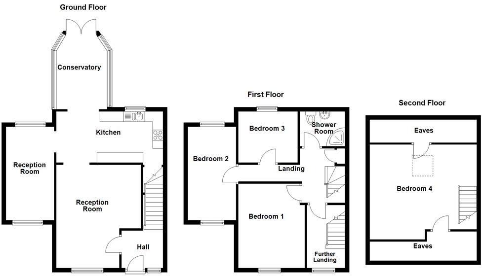
Four bedrooms including loft conversion with eaves storage
Single modern shower room for four bedrooms (may need a second)
Contemporary kitchen, conservatory and dual-aspect reception rooms
Multiple air conditioning units provide heating and cooling flexibility
Enclosed rear garden with lawn, decking and mature shrubs
Tarmac drive offers off-street parking for multiple vehicles
EPC rating E; 1970s cavity walls likely need insulation upgrade
Tenure: Leasehold (buyers should confirm lease details)
This extended four-bedroom semi-detached house on Hameldon Road offers practical family living across three floors. The ground floor provides two reception rooms, a contemporary fitted kitchen and a conservatory, while the converted loft creates a spacious fourth bedroom. The enclosed rear garden and tarmac drive with space for multiple vehicles suit busy households.
The property is well presented with several modern comforts: air conditioning units in multiple rooms, a modern kitchen and a useful eaves-storage area. The single three-piece shower room serves four bedrooms, so families should expect peak-time queuing or consider adding a second bathroom in future. The layout and size suit growing families wanting separate living and dining areas.
Energy performance is moderate (E) and the house dates from the 1970s with cavity walls that may lack insulation. This presents a clear upgrade opportunity to improve thermal efficiency and running costs. Tenure is leasehold and council tax band is affordable (Band C), which are practical advantages for budget planning.
Overall this is a comfortable family home in a semi-rural pocket of Rossendale with good digital connectivity, low local crime and nearby schools. It will appeal to buyers seeking immediate-liveable accommodation with sensible scope for energy improvements and minor modernisation to increase long-term value.
4 bedroom semi-detached house for sale in Goodshaw Cottage, Burnley Road, Crawshawbooth, Rossendale, BB4 — £450,000 • 4 bed • 2 bath • 2121 ft²
5 bedroom semi-detached house for sale in Helmshore Road, Helmshore, Rossendale, BB4 — £550,000 • 5 bed • 3 bath • 2390 ft²
4 bedroom detached house for sale in Greave Close, Constable Lee, Rossendale, BB4 — £425,000 • 4 bed • 1 bath • 929 ft²
4 bedroom detached house for sale in Kirkhill Avenue, Haslingden, Rossendale, BB4 — £375,000 • 4 bed • 2 bath • 1152 ft²
4 bedroom detached house for sale in Park View Close, Rossendale, BB4 — £449,950 • 4 bed • 3 bath • 1780 ft²
4 bedroom semi-detached house for sale in Martin Croft Road, Haslingden, Rossendale, BB4 — £525,000 • 4 bed • 3 bath • 3452 ft²






































































































































