Large two-bedroom ground-floor flat with private courtyard and tube access..
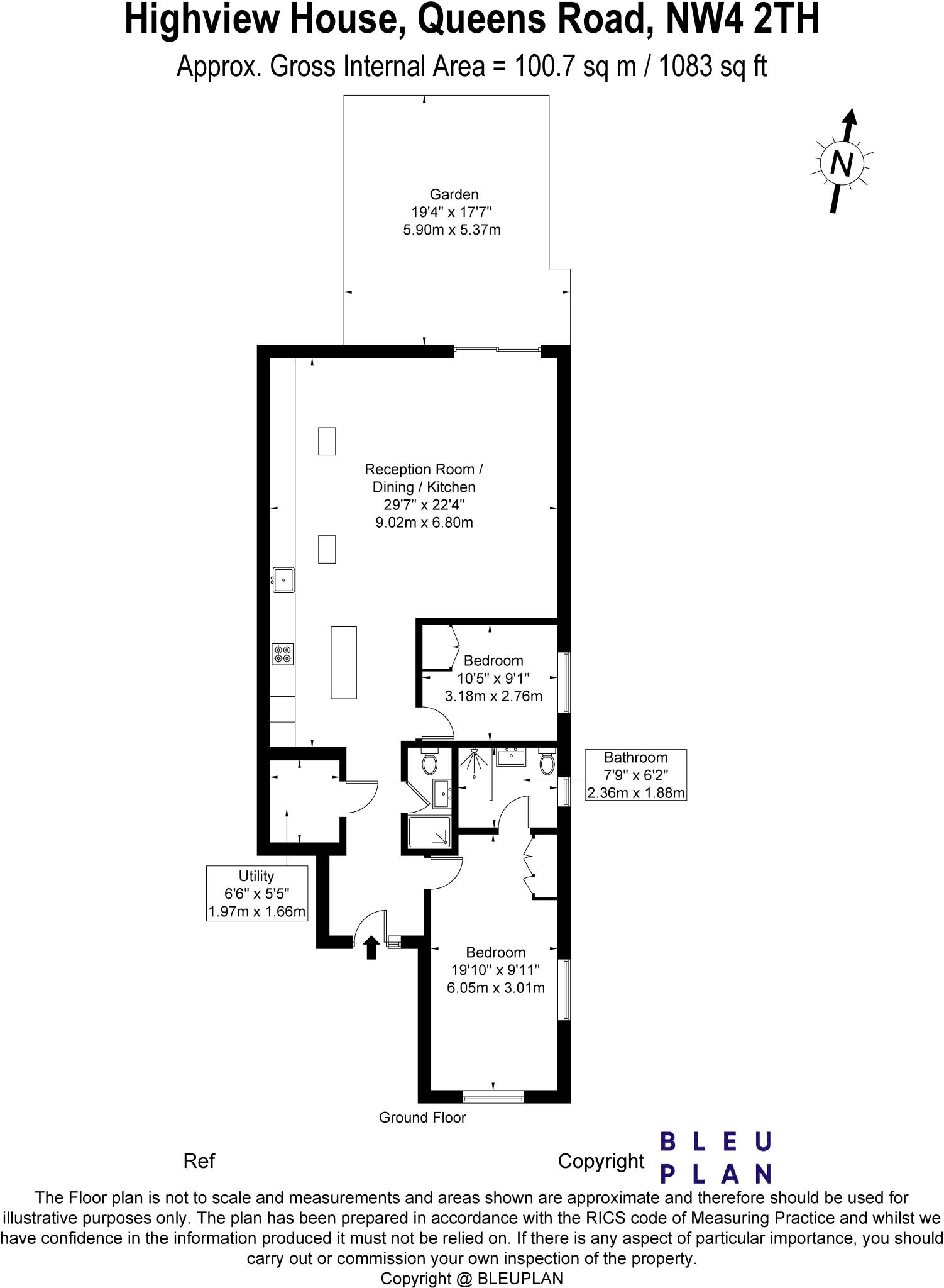
1083 sq ft (100 sq m) spacious ground-floor, two-bedroom flat
Private courtyard with direct street access and communal gardens
Open-plan lounge and contemporary kitchen; good natural light
Brand-new 150-year lease to be granted on purchase
Chain-free sale; quick completion possible
Service charge approximately £3,033 per year
Council tax in a high band; budget accordingly
Local crime level above average — consider security measures
This bright, self-contained ground-floor apartment offers a generous 1083 sq ft (100 sq m) layout with two bedrooms and an open-plan living/kitchen. A private courtyard with direct street access and communal gardens extend the living space outdoors, while large reception and contemporary finishes create an immediately comfortable home.
Location is a strong selling point: the flat sits opposite Hendon Park and is about a five-minute walk to Hendon Central Underground, with fast Central Line links into central London. The apartment benefits from gas central heating, double glazing and a brand new 150-year lease to be granted on purchase—sold chain free for a quicker completion.
Costs and practicalities to note: service charges are currently £3,033 per year, council tax is in a high band, and ground rent details are to be confirmed. Crime in the area registers above average, so buyers should factor local safety measures and insurance into their plans.
This property suits first-time buyers or those seeking a buy-to-let opportunity who want a spacious home ready to occupy with scope to personalise. The size, private outdoor space and transport links create genuine long-term value, while the service charge and local crime statistics are important considerations for budgeting and security planning.
2 bedroom flat for sale in St Anns Court, Sunningfields Road, Hendon NW4 — £400,000 • 2 bed • 1 bath • 861 ft²
2 bedroom flat for sale in Queens Road, Hendon, London, NW4 — £459,000 • 2 bed • 1 bath • 755 ft²
2 bedroom flat for sale in Great North Way, London, NW4 — £500,000 • 2 bed • 2 bath • 855 ft²
2 bedroom apartment for sale in Spencer House, 156 Station Road, London, NW4 — £400,000 • 2 bed • 1 bath • 708 ft²
2 bedroom flat for sale in High Mount, London, NW4 — £325,000 • 2 bed • 1 bath • 856 ft²
2 bedroom apartment for sale in Brent Street, Hendon NW4 — £460,000 • 2 bed • 2 bath • 824 ft²














































