Three-bedroom Victorian semi in Shanklin town centre — character, convenience and a small garden.
Short walk to beach, town centre and train station
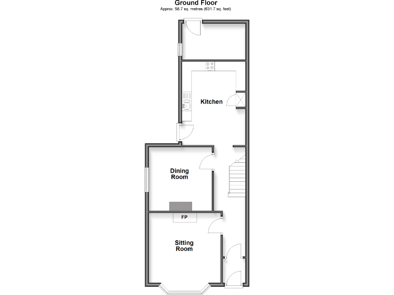
This Victorian semi-detached house sits on a quiet back street in the heart of Shanklin, an easy stroll from the town centre, beach and train station. The house offers three well-proportioned bedrooms, generous reception rooms and a practical kitchen — all presented in good, move-in condition with recent double glazing and gas central heating.
The outside space is a low-maintenance rear garden and a useful brick-built store/workshop, ideal for outdoor entertaining or storage. Room sizes are generous for the overall footprint (approx. 909 sq ft), so the layout will suit families or buyers wanting a central coastal base with space to spread out.
Notable points to check: the property is a period build (pre-1900) and there are references to potential damp and the need for some modernisation in places; buyers should commission a survey. The plot is small and the property sits within an area classed as ageing urban communities with above-average crime and wider area deprivation indicators.
Overall, this freehold home offers character, central convenience and ready-to-live-in accommodation for buyers seeking a town-centre, seaside location — provided you factor in survey findings and local area considerations before purchase.
4 bedroom semi-detached house for sale in Avenue Road, Shanklin, Isle of Wight, PO37 — £460,000 • 4 bed • 3 bath • 2369 ft²
3 bedroom semi-detached house for sale in Landguard Manor Road, Shanklin, Isle of Wight, PO37 — £268,000 • 3 bed • 1 bath • 776 ft²
3 bedroom semi-detached house for sale in Short Walk To Town * Shanklin, PO37 — £285,000 • 3 bed • 1 bath • 969 ft²
4 bedroom semi-detached house for sale in Central Location * Shanklin, PO37 — £325,000 • 4 bed • 2 bath • 1357 ft²
3 bedroom detached house for sale in Short Walk To Beach * Shanklin, PO37 — £350,000 • 3 bed • 2 bath • 1271 ft²
4 bedroom semi-detached house for sale in St. Boniface Cliff Road, Shanklin, Isle of Wight, PO37 — £500,000 • 4 bed • 2 bath • 1303 ft²


























































