Charming three-bed family home near schools, station and generous rear garden..
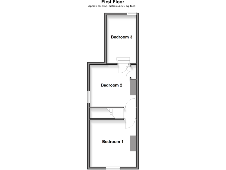
Three bedrooms with two separate reception rooms for flexible family living
Good-sized rear garden and garden chalet; garage and driveway parking
Short walk to town centre, primary schools and the train station
Mains gas central heating; double glazing installed before 2002
Modest overall size (776 sq ft) and only one shower room
Built 1930–1949 — may need modernization and checking of older systems
Fast broadband and excellent mobile signal for home working
Freehold tenure; no flood risk, low local crime
This three-bedroom Victorian semi-detached house on Landguard Manor Road offers a well-proportioned layout ideal for a growing family. The property features two separate reception rooms, a practical kitchen, and a good-sized rear garden – a welcome outdoor space for children and pets. The garage and driveway provide useful off-street parking in a convenient town location.
The home sits within easy walking distance of the town centre, local primary schools and the train station, making daily life and commutes straightforward. Heating is by mains gas boiler and radiators, glazing is double (installed before 2002), and broadband and mobile signals are strong — beneficial for working from home and connectivity.
Buyers should note the house is modest in overall size (approx. 776 sq ft) and has a single shower room, which may feel limiting for larger families. The property dates from the 1930s–1940s and will benefit from targeted updating to kitchens, bathrooms and possibly windows to suit contemporary tastes. Freehold tenure, low local crime and no flood risk add to the practical appeal.
 3 bedroom semi-detached house for sale in Spring Gardens, Shanklin, Isle of Wight, PO37 — £250,000 • 3 bed • 1 bath • 909 ft²
 3 bedroom semi-detached house for sale in Spring Gardens, Shanklin, Isle of Wight, PO37 — £250,000 • 3 bed • 1 bath • 909 ft² 3 bedroom semi-detached house for sale in Short Walk To Town * Shanklin, PO37 — £285,000 • 3 bed • 1 bath • 969 ft²
 3 bedroom semi-detached house for sale in Short Walk To Town * Shanklin, PO37 — £285,000 • 3 bed • 1 bath • 969 ft² 3 bedroom semi-detached house for sale in Avenue Road, Shanklin, PO37 — £285,000 • 3 bed • 3 bath • 808 ft²
 3 bedroom semi-detached house for sale in Avenue Road, Shanklin, PO37 — £285,000 • 3 bed • 3 bath • 808 ft² 4 bedroom semi-detached house for sale in Avenue Road, Shanklin, Isle of Wight, PO37 — £460,000 • 4 bed • 3 bath • 2369 ft²
 4 bedroom semi-detached house for sale in Avenue Road, Shanklin, Isle of Wight, PO37 — £460,000 • 4 bed • 3 bath • 2369 ft² 3 bedroom end of terrace house for sale in Shanklin, Isle of Wight, PO37 — £235,000 • 3 bed • 1 bath • 892 ft²
 3 bedroom end of terrace house for sale in Shanklin, Isle of Wight, PO37 — £235,000 • 3 bed • 1 bath • 892 ft² 3 bedroom semi-detached house for sale in Short Walk To Old Village * Shanklin, PO37 — £380,000 • 3 bed • 1 bath • 1201 ft²
 3 bedroom semi-detached house for sale in Short Walk To Old Village * Shanklin, PO37 — £380,000 • 3 bed • 1 bath • 1201 ft²


























































