Luxury seaside living with large balcony and resort facilities.
Allocated private off-street parking space
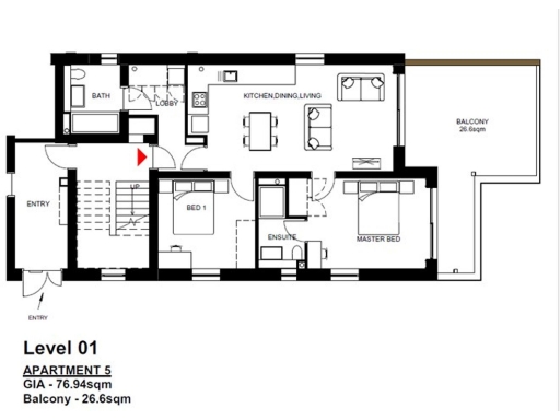
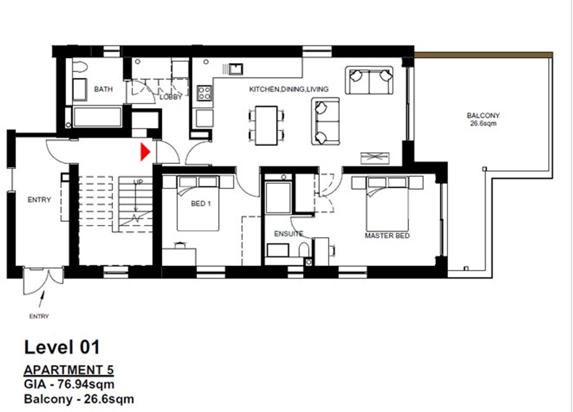
Large southerly 26.6 sqm balcony with glass balustrade
Underfloor heating fitted throughout (confirm controls)
999-year leasehold with share of freehold ownership
10-year structural build warranty included
High-spec German kitchen and stylish bathrooms
Local broadband speeds reported as very slow
Granite external walls likely uninsulated — possible heat loss
A bright two-bedroom ground-floor apartment in The Captain’s Apartments offers turnkey coastal living moments from Gyllyngvase Beach. The open-plan living area flows onto a generous southerly 26.6 sqm balcony, ideal for sunny mornings and sea views. High-spec German kitchens, stylish bathrooms and solid oak finishes create a refined, low-maintenance home.
Owners benefit from an unusually long 999-year lease with a share of freehold and a 10-year structural warranty for added peace of mind. The development sits within St Michael’s Resort, giving easy access to spa, dining and leisure facilities and strong holiday-let potential for supplemental income.
Practical points are straightforward: heating and services are electric, and the building’s granite walls are assumed uninsulated, which could affect running costs and comfort in colder months. Broadband performance is reported as very slow locally — check provider availability if fast internet is essential.
This apartment suits downsizers or buyers seeking a low-upkeep coastal base with generous outdoor space and resort conveniences. The development’s communal management is owner-controlled, with an annual service charge for communal upkeep and insurance.
2 bedroom penthouse for sale in 5 Stracey Road, Falmouth, TR11 — £495,000 • 2 bed • 2 bath • 768 ft²
3 bedroom flat for sale in Cliff Road, Falmouth, Cornwall, TR11 — £750,000 • 3 bed • 2 bath • 669 ft²
3 bedroom apartment for sale in Cliff Road, Falmouth, TR11 — £615,000 • 3 bed • 2 bath • 961 ft²
3 bedroom apartment for sale in Cliff Road, Falmouth, Cornwall, TR11 — £645,000 • 3 bed • 3 bath • 1309 ft²
1 bedroom apartment for sale in Falmouth, TR11 — £400,000 • 1 bed • 1 bath • 570 ft²
2 bedroom apartment for sale in Falmouth, TR11 — £445,000 • 2 bed • 2 bath • 872 ft²






























































