Ready-to-live, high-spec home with permitted expansion for substantial value uplift.
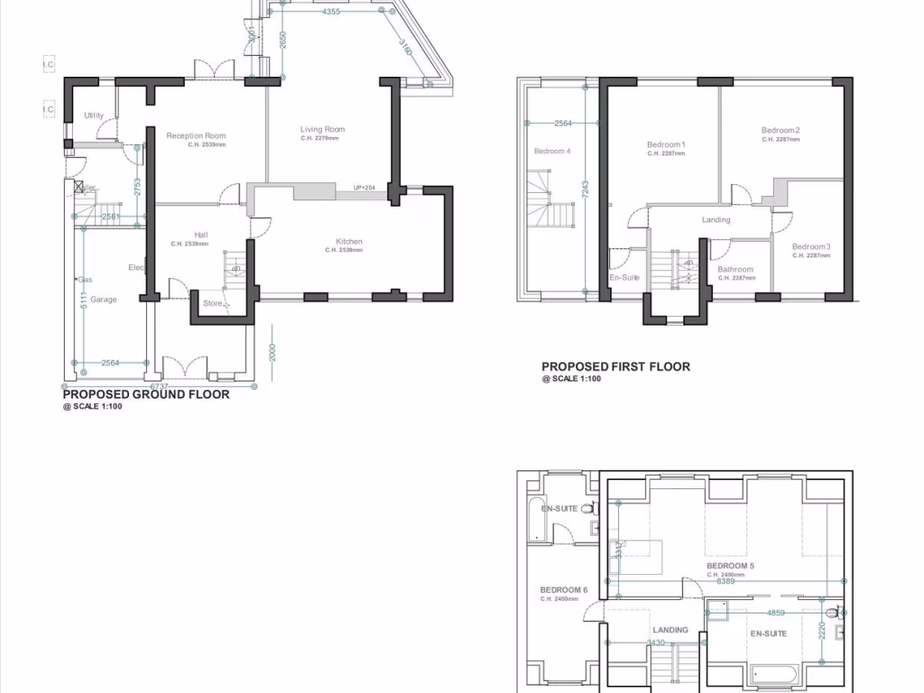
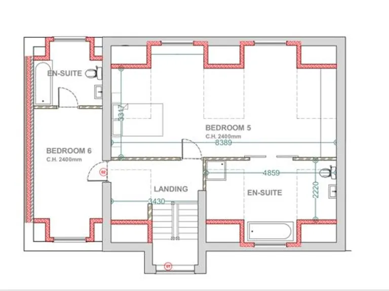
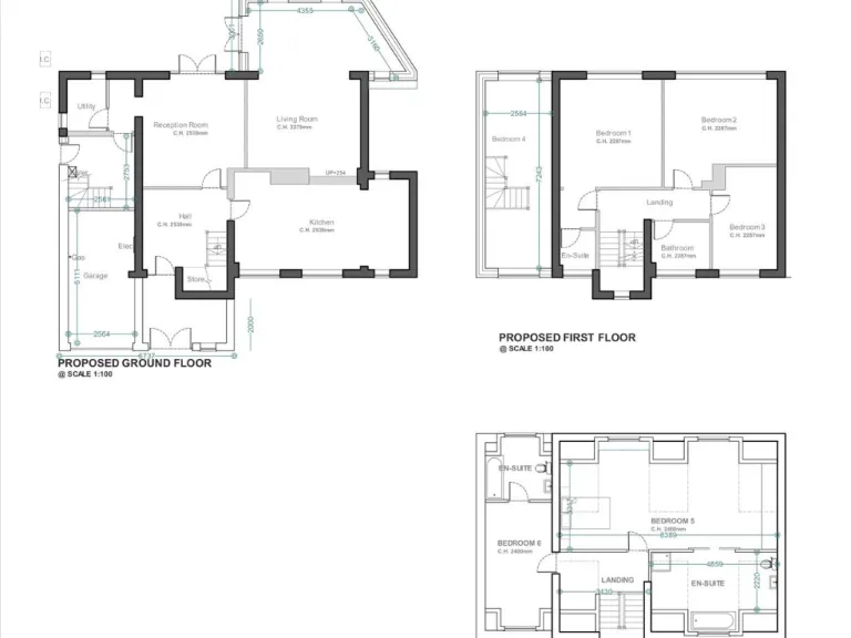
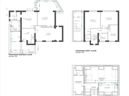
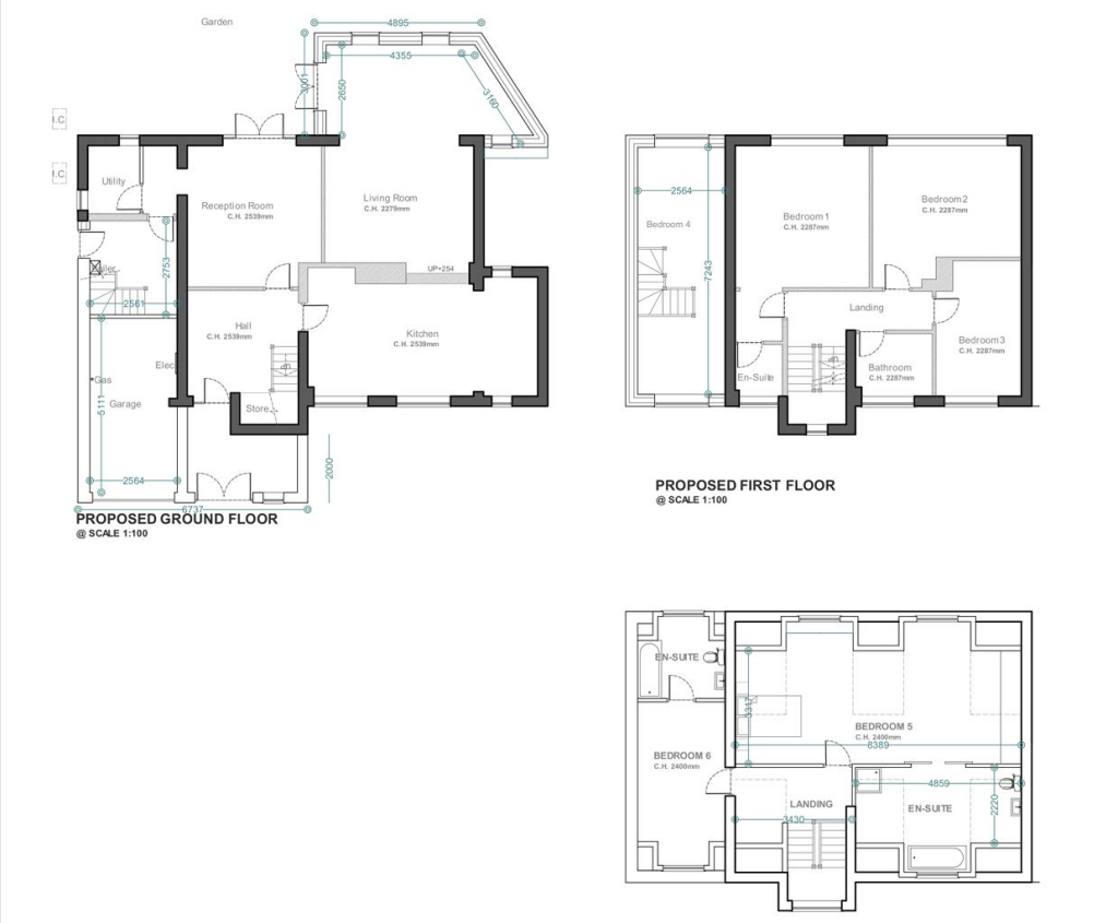
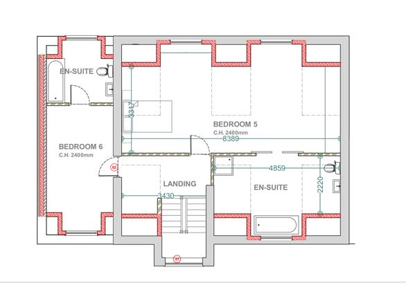
Full planning permission to extend to six bedrooms and four bathrooms
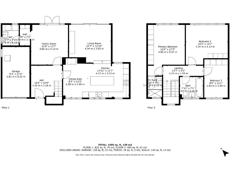
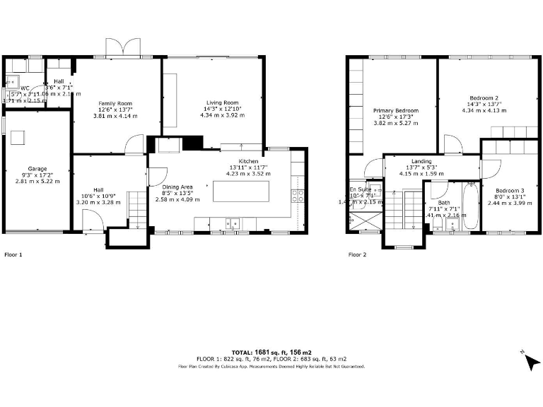
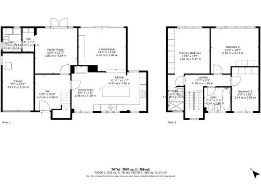
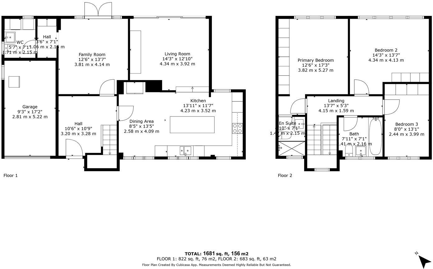
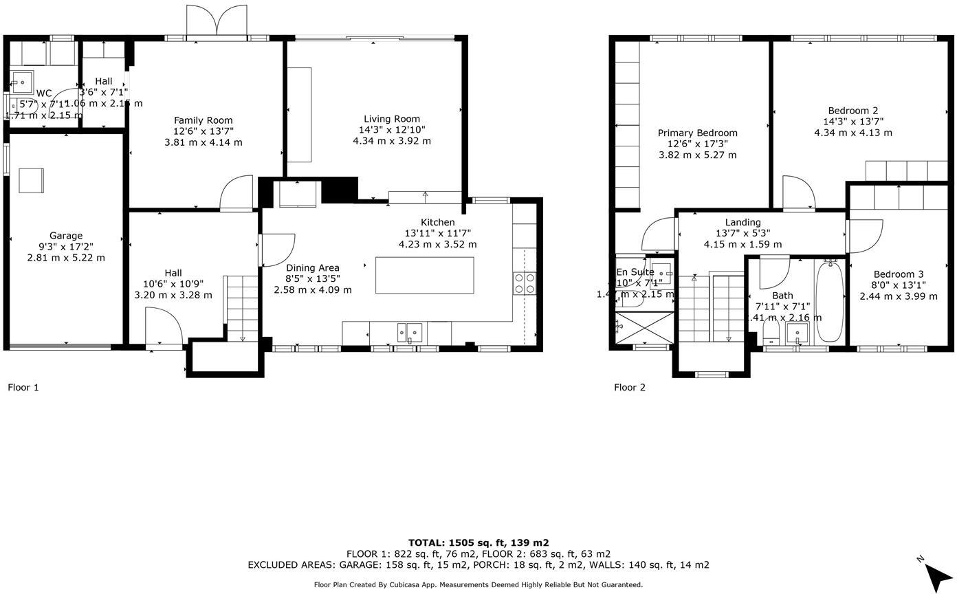
This detached three-bedroom home on Ack Lane East is newly renovated and presented to a high standard, ready for immediate family occupation. The current layout includes a large open-plan bespoke kitchen, separate reception room, utility and two modern bathrooms, plus generous living space across two floors and an integral garage. The wide 275m² frontage provides extensive off-street parking for multiple vehicles.
A major value driver is the full planning permission to extend the property into a six-bedroom, four-bathroom executive residence; architectural drawings are available. That permission offers clear scope to create substantial extra accommodation and increase long-term value while you benefit from the high-spec present condition now.
The garden is private, well maintained and features a large tiered deck plus a 2.4m x 6m gazebo — excellent for outdoor entertaining. Practical local strengths include fast broadband, excellent mobile signal, very low crime, proximity to highly regarded state and independent schools, and a short walk into Bramhall village and its amenities.
Notable facts to consider: the home was built in the late 1970s–early 1980s with cavity walls and partial insulation assumed; double glazing install date is unknown. Council tax is above average. The property is offered freehold and has no flood risk, but the approved six-bedroom scheme would require construction work and associated costs to realise that potential.
4 bedroom detached house for sale in Northcote Road, Bramhall, SK7 — £850,000 • 4 bed • 1 bath • 1994 ft²
4 bedroom detached house for sale in Ack Lane East, Bramhall, SK7 — £769,000 • 4 bed • 1 bath • 1800 ft²
4 bedroom detached house for sale in Bramley Road, Bramhall, SK7 — £800,000 • 4 bed • 2 bath • 1862 ft²
4 bedroom detached house for sale in Moor Lane, Woodford, SK7 — £900,000 • 4 bed • 3 bath • 2239 ft²
4 bedroom detached house for sale in Ogden Road, Bramhall, Stockport, Greater Manchester, SK7 — £525,000 • 4 bed • 2 bath • 870 ft²
6 bedroom detached house for sale in Moss Bank, Bramhall, SK7 — £700,000 • 6 bed • 2 bath • 1784 ft²










































































































































































































